Inwestycja w Ursusie – 72 6 m² z potencjałem

Warszawa , 21 Pułku Piechoty Dzieci Warszawy

Komercyjne
72 m2

945 000 zł

Treść ogłoszenia

Nasza agencja prezentuje wyjątkową ofertę - lokal użytkowy w jednej z najbardziej atrakcyjnych części Ursusa - osiedle Skorosze.



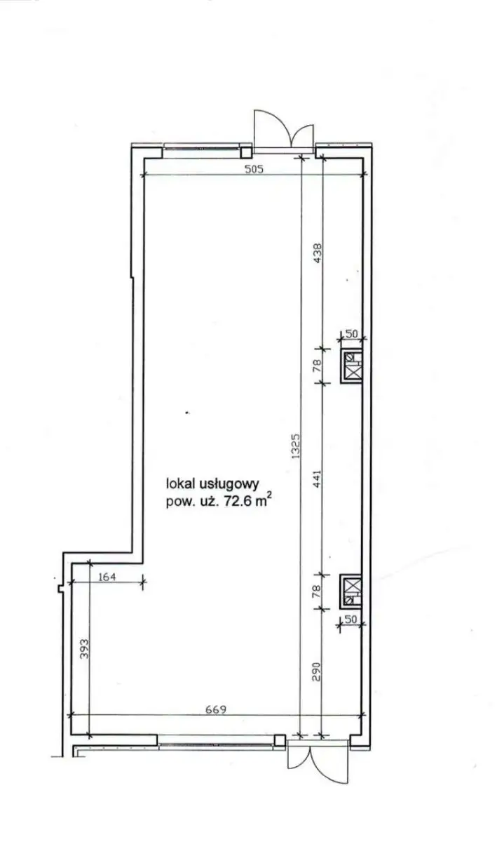
  •  Powierzchnia: 72,6 m²

  •  Lokalizacja: ul. Dzieci Warszawy

  •  Wejścia: frontowe od ulicy oraz dodatkowe od zaplecza


Aktualnie lokal funkcjonuje jako restauracja z kuchnią polską - z dużą bazą stałych klientów, stylowym wystrojem, świetnie zorganizowanym zapleczem i ogródkiem sezonowym.

Możliwości zakupu:



  • Pusty lokal - cena: 945 000 zł

  • Restauracja z pełnym wyposażeniem i przejęciem działalności - cena do uzgodnienia



 Atuty lokalizacji:



  • serce osiedla Skorosze - gęsta zabudowa mieszkaniowa i duży ruch pieszych

  • w pobliżu Centrum Handlowe Skorosze, Lidl, Biedronka, Rossmann, szkoły, przedszkola i liczne punkty usługowe

  • bardzo dobra komunikacja z centrum Warszawy i szybki dojazd do obwodnicy




Uniwersalne przeznaczenie lokalu:
Nieruchomość idealnie nadaje się nie tylko pod gastronomię, ale również pod inne rodzaje działalności


To doskonała propozycja zarówno dla inwestorów, jak i przedsiębiorców poszukujących dobrze położonego lokalu z ogromnym potencjałem.



Lokalizacja
Warszawa
mazowieckie
Informacje
Powierzchnia: 72 m2
Rok budowy: 2003
Numer oferty: 911767
Kontakt
Preston Nieruchomości Sp. z o.o.
Tetiana Mazhuha
798085343

Podobne oferty

 Warszawa   Sokratesa

Bielany Sokratesa lok usług 62m² z najemcą

Warszawa, Sokratesa

Na sprzedaż lokal usługowy przy ulicy Sokratesa, kilkaset metrów od Metra Młociny, z dużym ruchem pieszych i kołowym oraz licznymi...

70 m2
1 450 000 zł
20 714 zł/m2
 Warszawa   Marconich

Lokal

Warszawa, Marconich

L O K A L : Powierzchnia 189 m2 z MP naziemnymi do wyłącznego korzystania – 3 szt. Parter z...

189 m2
8 pokoi
2 853 900 zł
15 100 zł/m2
 Warszawa   Mała

Lokale

Warszawa, Mała

Na sprzedaż lokal handlowo-usługowy na ul. Mała na Pradze-Północ. Głównym atutem nieruchomości jest jej lokalizacja przy ruchliwej ulicy. Gwarantuje to...

97 m2
1 550 000 zł
15 979 zł/m2