Nowoczesne biuro - Lublin Bronowice

Lublin

Komercyjne
360 m2

17 280 zł

Treść ogłoszenia

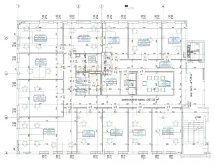
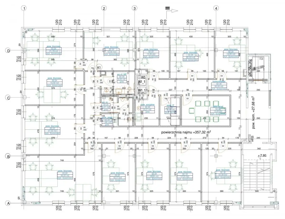
Zapraszam do wynajęcia lokalu o powierzchni ok.360 m² zlokalizowanego na pierwszym piętrze w 4-kondygnacyjnym budynku biurowym w Lublinie. Budynek o wysokim standardzie technicznym, klasa: B+/A-.

Budynek oferuje:
- centralne ogrzewanie, klimatyzację, wentylację,
- czujniki ruchu, czujniki dymu, łącze światłowodowe,
- okablowanie: elektryczne, komputerowe i telefoniczne,
- otwierane okna, podwieszane sufity, podniesione podłogi, wykładziny,
- kontrolę dostępu, monitoring wizyjny, windę, ochronę całodobową.


Informacje ogólne:
- Całkowita powierzchnia budynku: 2.830 m²
- Powierzchnia piętra (2 moduły x 360 m²) = 720 m²
- Liczba kondygnacji naziemnych: 4
- Liczba miejsc postojowych podziemnych: 28
- Liczba miejsc postojowych naziemnych: 74

Główne zalety:
- nowoczesny i funkcjonalny biurowiec, spełniający większość wymogów  budynków klasy A,
- wysoki standard pomieszczeń biurowych i część wspólnych, z dużą ilością miejsc postojowych,
- położenie blisko węzłów komunikacyjnych, w odległości ok. 3,5 km od historycznego centrum, Lublina (plac Łokietka), pozwalające na dojazd z każdej dzielnicy w czasie nie dłuższym niż 15 - 20 min,
- korzystne otoczenie; w najbliższym sąsiedztwie dwa duże centra handlowe, zapewniające dostęp do wielu sklepów, restauracji, punktów usługowych oraz atrakcji kulturalnych i sportowych,
- komfortowe warunki pracy: znakomite doświetlenie, wydajna klimatyzacja, możliwość korzystania z okien uchylnych, układ funkcjonalny, pozwalający na indywidualną aranżację powierzchni.


Stawki ofertowe wynajmu (netto/miesięcznie):
- czynsz najmu: 48zł/m² netto
- koszty eksploatacji i zarządu: 18 zł m²
- miejsca postojowe podziemne: 220 zł miejsce
- miejsca postojowe naziemne: 140 zł miejsce

Ofertę przygotował i prezentuje: Marek Kiciński
Franczewska Nieruchomości

Pomagamy przy uzyskaniu finansowania komercyjnego oraz preferencyjnych funduszy unijnych. Zapewniamy kontakty do projektantów, architektów, geodetów, doradców podatkowych, notariuszy, ekip remontowych i wielu innych sprawdzonych specjalistów.

Zapraszam do kontaktu i na prezentację nieruchomości!

Treść niniejszego ogłoszenia nie stanowi oferty handlowej w rozumieniu Kodeksu Cywilnego, ale jest zaproszeniem do współpracy. Zespół ekspertów z Franczewska Nieruchomości dokłada starań, aby każda z ofert była rzetelnie sprawdzona oraz aktualna. Jako agencja nieruchomości pobieramy za usługę pośrednictwa wynagrodzenie. Usługa jest wykonywana w profesjonalny sposób i zapewnia Państwu pełne bezpieczeństwo. Więcej unikalnych ofert w podobnych kryteriach znajdą Państwo na naszej stronie.


Lokalizacja
Lublin
dzielnica Bronowice
lubelskie
Informacje
Powierzchnia: 360 m2
4 piętra w budynku
Numer oferty: 887454167
Przeznaczenie
biurowy
Kontakt
FRANCZEWSKA NIERUCHOMOŚCI ADRIANNA FRANCZEWSKA-KRUPA SPÓŁKA KOMANDYTOWA
Marek Kiciński
511 887 886

Podobne oferty

 Lublin   Agatowa

Lokal z toaletą osobne wejście 63m² Lublin Czuby

Lublin, Agatowa

Szukasz miejsca dla swojej firmy, zespołu w nowoczesnym i komfortowym budynku? Na wynajem lokal biurowo-usługowy, na I piętrze z windą ...

63 m2
6 300 zł
100 zł/m2
 Lublin

Hala magazyn z rampą 90m² - Lublin Wrotków

Lublin

Do wynajęcia przestronne powierzchnie magazynowe w kompleksie budynków położonym w strategicznej lokalizacji na Wrotkowie w Lublinie. Kompleks składa się z...

90 m2
1 575 zł
18 zł/m2
 Lublin

Komfortowe biuro lokal 350m² w Lublinie

Lublin

Do wynajęcia lokal na potrzeby biura lub usług o powierzchni 350m2 w wysokiej klasy budynku biurowym w Lublinie. Lokal położony...

350 m2
18 588 zł
53 zł/m2