Nikielkowo dom 189 7 m² z działką 1335 m²

Nikielkowo , Bazyliowa

Dom
189 m2
5 pokoi

799 000 zł

Treść ogłoszenia

Szukasz domu pod Olsztynem, który wykończysz dokładnie tak, jak chcesz? Ten wolnostojący projekt w Nikielkowie łączy spokojną, zieloną lokalizację z funkcjonalnym, rodzinnym układem i solidną konstrukcją. Kupując tę nieruchomość, otrzymujesz nie tylko budynek w stanie surowym zamkniętym, lecz także realne wsparcie w wejściu w etap wykończenia — od planu i wycen, po sprawdzone ekipy i koordynację. To bezpieczny start do stworzenia domu skrojonego pod Twoje potrzeby.

LOKALIZACJA:
Nikielkowo, ul. Bazyliowa - kameralna zabudowa jednorodzinna, zieleń i spokój, a jednocześnie szybki dojazd do Olsztyna. Działka z ekspozycją południe–wschód–północ zapewnia dobre doświetlenie części dziennej i komfortową strefę ogrodu.

NIERUCHOMOŚĆ:
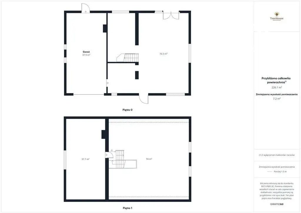
Dom zaprojektowano dla 4–5-osobowej rodziny. Zwarta, proporcjonalna bryła na planie prostokąta przykryta jest dwuspadowym dachem. Parter tworzy wygodną strefę dzienną z wyjściem do ogrodu i miejscem na częściowo zadaszony taras, obok zaplanowano pokój gościnny/gabinet (można zrezygnować i powiększyć salon) oraz praktyczną spiżarnię. Na poddaszu znajduje się w pełni rozkładowa strefa nocna z trzema sypialniami i łazienką. Nad garażem i kotłownią przewidziano strych użytkowy, który możesz zaadaptować na dodatkowy pokój lub strefę rekreacji. W cenie uwzględniono wykonanie ścianek działowych zgodnie z potrzebami nabywcy, co ułatwia dopasowanie układu do stylu życia domowników.

UKŁAD POMIESZCZEŃ:
Parter:
-salon z aneksem kuchennym i wyjściem do ogrodu,
-pokój (sypialnia/gabinet),
-łazienka, garderoba,
-wiatrołap,
-kotłownia/pomieszczenie techniczne,
-garaż w bryle.
Poddasze:
-trzy ustawne sypialnie,
-łazienka,
-komunikacja,
-pomieszczenie użytkowe nad garażem z potencjałem adaptacji na dodatkowy pokój lub strefę rekreacji.

TECHNOLOGIA:
Dom w tradycyjnej technologii murowanej. Ściany zewnętrzne z pustaka ceramicznego typu Porotherm, ocieplenie ścian zewnętrznych styropianem 15 cm (λ 0,031). Strop gęstożebrowy Teriva 24cm, dach o konstrukcji drewnianej pokryty wysokiej jakości dachówką ceramiczną z kompletnym orynnowaniem. Okna PCV trzyszybowe, zapewniająca bardzo dobrą izolację cieplną i akustyczną. Elewacja wykończona tynkiem silikonowym o podwyższonej odporności na zabrudzenia. W projekcie przewidziano wentylację mechaniczną z rekuperacją. Do budynku doprowadzone są przyłącza prądu, wody, kanalizacji i gazu — instalacje wewnętrzne gotowe do rozprowadzenia zgodnie z Twoim projektem funkcjonalnym. Garaż w bryle budynku z automatyczną bramą.

DZIAŁKA I OTOCZENIE:
Działka o powierzchni 1 335 m² jest ustawna i daje szerokie możliwości aranżacji ogrodu, dodatkowych miejsc postojowych czy małej architektury. Dojazd drogą asfaltową z chodnikami i oświetleniem.

Aktualna szacunkowa wycena doprowadzenia do stanu deweloperskiego wynosi około 160 000 zł.
Dysponuję kontaktami do firm, które przygotowały kalkulacje i podejmą się realizacji. Zapewniam wsparcie w rozplanowaniu etapów, doborze materiałów, znalezieniu ekip i koordynacji od A do Z, tak aby cały proces wykończenia przebiegł sprawnie i bezpiecznie.

Zapraszamy do kontaktu i umówienia się na prezentację!
Z przyjemnością odpowiemy na wszystkie pytania i pomożemy w przeprowadzeniu procesu zakupu.
Pomagamy w uzyskaniu bezpiecznego kredytu na zakup nieruchomości.

Oferta dostępna wyłącznie w naszym biurze – TreeHouse Nieruchomości.
Współpracujemy również z innymi agencjami.

Opiekun oferty:
Adrian Gazda
Tel. 668 490 115
E-mail: [Email protected]




TreeHouse Nieruchomości - Skuteczna Sprzedaż Nieruchomości
ul. Kotańskiego 1, lok. 102, 10-166 Olsztyn
[Email protected]
www.treehouse-nieruchomosci.pl

TreeHouse Nieruchomości - nr 1 w województwie warmińsko-mazurskim w konkursie Lider Otodom 2022


"Niniejsze ogłoszenie nie stanowi oferty w rozumieniu art. 66 par. 1 Kodeksu Cywilnego i ma jedynie charakter informacyjny.
Właścicielem ogłoszenia oraz poszczególnych jego elementów jest TreeHouse Nieruchomości oraz podmioty z nim współpracujące. Wszelkie prawa są zastrzeżone. Kopiowanie, rozpowszechnianie oraz korzystanie z niniejszych materiałów w jakikolwiek inny sposób wykraczający poza dozwolony użytek określony przepisami ustawy z 4 lutego 1994 r. o prawie autorskim i prawach pokrewnych (Dz. U. 1994, nr 24 poz. 83 z późn. zm.) bez pisemnej zgody TreeHouse Nieruchomości lub podmiotów współpracujących jest zabronione i może stanowić podstawę odpowiedzialności cywilnej oraz karnej."

Ogłoszenie wysłane z programu dla biur nieruchomości ASARI CRM (asaricrm.com)



Lokalizacja
Nikielkowo
warmińsko-mazurskie
Informacje
Powierzchnia: 189 m2
5 pokoje
2 piętra w budynku
Rok budowy: 2025
Numer oferty: 178/12272/ODS
Okolica
przedszkole
plac zabaw
szkoła podstawowa
restauracja
las
kościół
Ogrzewanie
CO gazowe
pompa ciepła
Instalacje
elektryczna
gazowa
wodna
Kontakt
TreeHouse Nieruchomości Spółka z ograniczoną odpowiedzialnością
Adrian Gazda
668490115

Podobne oferty

 Nikielkowo   Flaminga

Nikielkowo połowa bliźniaka stan deweloperski

Nikielkowo, Flaminga

Nieruchomość w stanie deweloperskim z pięknym widokiem na naturę - idealna dla miłośników przyrody oraz osób chcących zaaranżować przestrzeń wg...

125 m2
5 pokoi
799 000 zł
6 392 zł/m2
 Nikielkowo   Flaminga

Nikielkowo lewa połowa bliźniaka stan dewelop.

Nikielkowo, Flaminga

Nieruchomość w stanie deweloperskim z pięknym widokiem na naturę - idealna dla miłośników przyrody oraz osób chcących zaaranżować przestrzeń wg...

125 m2
5 pokoi
780 000 zł
6 240 zł/m2
 Nikielkowo   Flaminga

Nikielkowo lewa połowa bliźniaka stan dewelop.

Nikielkowo, Flaminga

Nieruchomość w stanie deweloperskim z pięknym widokiem na naturę - idealna dla miłośników przyrody oraz osób chcących zaaranżować przestrzeń wg...

125 m2
5 pokoi
749 000 zł
5 992 zł/m2