Jasne komfortowe biuro 142m² Lublin Mełgiewska

Lublin

Komercyjne
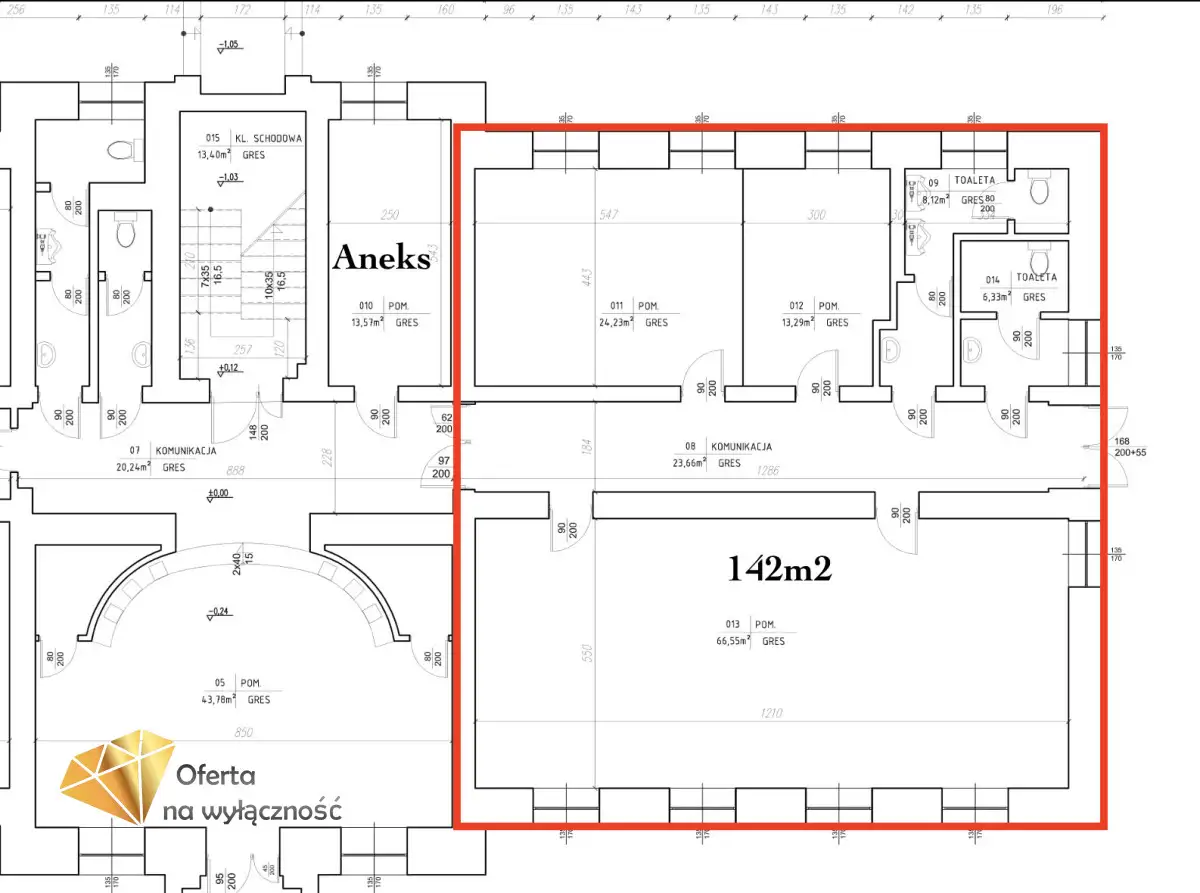
142 m2

6 598 zł

Treść ogłoszenia

Oferta dostępna wyłącznie za pośrednictwem Franczewska Nieruchomości.

Do wynajęcia
lokal na potrzeby biura lub usług o powierzchni 142m² w budynku przy ulicy Gospodarczej 23d w Lublinie. Jeżeli szukasz przestronnego, jasnego biura w spokojnym miejscu, blisko lubelskiej strefy ekonomicznej i niedaleko od centrum miasta to będzie dla Ciebie świetna lokalizacja. Dodatkowym atutem jest duży parking przed budynkiem pomieści nawet 40 aut i jest bezpłatny dla najemców.



Dwupiętrowy budynek z poddaszem użytkowym i podpiwniczeniem został wybudowany w 1930 roku. Budynek ma całkowicie odnowioną elewację i prezentuje się bardzo atrakcyjnie. W 2013r. został wykonany generalny remont, w 2021r. odświeżenie pomieszczeń. Budynek spełnia wszystkie wymogi sanitarne i przeciwpożarowe. Łączna powierzchnia to 1.512 m², na działce o powierzchni 3.120 m². Budynek posiada system kart dostępowych do wejścia głównego - zapewnia to bezpieczeństwo i komfort pracowników znajdujących się w biurze.

Idealna propozycja dla firm z branży:
BPO - outsorcing procesów biznesowych
SSC - centra usług wspólnych (m.in. księgowość, IT, obsługa klienta, logistyka, finanse, HR)
ICT - rozwiązania informatyczne i tworzenie oprogramowania lub inne.

STANDARD LOKALU:
- niezależne wyjście z lokalu oraz wejście z klatki,
- dwustronna ekspozycja okien,
- klimatyzacja,
- otwierane okna
- internet światłowodowy
- podwieszane sufity
- system alarmowy
- podłogi gres,

UKŁAD LOKALU:
- konferencyjny,
- większy gabinet,
- open space,
- open space,
- toaleta męska i damska.

STANDARD BUDYNKU:
- aneks kuchenny,
- monitoring wizyjny,
- wysoki standard części wspólnych,
- ochrona,
- karty z kontrolą dostępu,
- domofon.

Uwaga istnieje możliwość wynajęcia dodatkowej powierzchni magazynowej na poziomie -1:
- 32m²,
- 55m²

MEDIA: 13,5 zł/m² serwis (woda, ogrzewanie, gaz, kanalizacja, światłowód, monitoring, alarm) plus prąd ok. 5 zł/m².
LOKALIZACJA: ul. Gospodarcza, boczna ul. Mełgiewskiej w Lublinie.
Do centrum: 2,6km (6 minut), do Lotniska 11km (16 minut), do Obwodnicy 5km (7 min).

FINANSE I DODATKOWE WARUNKI:
- czynsz najmu 46 zł/m² netto,
- opłata eksploatacyjna 13,5 zł/m² netto,
- miejsca parkingowe naziemne ogólnodostępne
- okres najmu - do uzgodnienia
- kaucja - do uzgodnienia

Ofertę przygotował i prezentuje: Daniel Bondarenko
Licencjonowany Pośrednik Nieruchomości PFRN i Certyfikowany Negocjator

Pomagamy przy uzyskaniu finansowania komercyjnego oraz preferencyjnych funduszy unijnych. Zapewniamy kontakty do projektantów, architektów, geodetów, doradców podatkowych, notariuszy, ekip remontowych i wielu innych sprawdzonych specjalistów.

Treść niniejszego ogłoszenia nie stanowi oferty handlowej w rozumieniu Kodeksu Cywilnego, ale jest zaproszeniem do współpracy. Zespół ekspertów z Franczewska Nieruchomości dokłada starań, aby każda z ofert była rzetelnie sprawdzona oraz aktualna. Jako agencja nieruchomości pobieramy za usługę pośrednictwa wynagrodzenie. Usługa jest wykonywana w profesjonalny sposób i zapewnia Państwu pełne bezpieczeństwo. Więcej unikalnych ofert w podobnych kryteriach znajdą Państwo na naszej stronie.

Lokalizacja
Lublin
dzielnica Tatary
lubelskie
Informacje
Powierzchnia: 142 m2
2 piętra w budynku
Rok budowy: 1930
Numer oferty: 343587
Przeznaczenie
biurowy
Kontakt
FRANCZEWSKA NIERUCHOMOŚCI ADRIANNA FRANCZEWSKA-KRUPA SPÓŁKA KOMANDYTOWA
Daniel Bondarenko
530350726

Podobne oferty

 Lublin

Hala magazyn z rampą 180m² - Lublin Wrotków

Lublin

Oferujemy do wynajęcia przestronne powierzchnie magazynowe w nowoczesnym kompleksie budynków położonym w strategicznej lokalizacji na Wrotkowie w Lublinie. Kompleks składa...

180 m2
3 150 zł
18 zł/m2
 Lublin

Lokal parter z witryna 500m² - Lublin Wrotków

Lublin

Oferowany lokal z witryną o powierzchni około 500m2 znajduje się na wysokim parterze z rampą. W budynku oferujemy do wynajęcia...

500 m2
11 750 zł
24 zł/m2
 Lublin

Jasny lokal z witrynami w centrum 226m² - Lublin

Lublin

Do wynajęcia dwupoziomowy lokal handlowo-usługowy o łącznej powierzchni 226 m², położony na parterze budynku mieszkalnego w ścisłym centrum Lublina. To...

225 m2
9 890 zł
44 zł/m2