Widokowy apartament 10 piętro z dużym tarasem

Kraków , Mogilska

Mieszkanie
113 m2
4 pokoje

3 072 900 zł

Treść ogłoszenia

Harmonogram 20/80, brak pcc i prowizji

Mam przyjemność zaoferować do sprzedaży wyjątkowy, widokowy apartament 4-pokojowy ulokowany w 14-piętrowym budynku przy uli. Mogilskiej - w samym sercu dynamicznie rozwijającej się części Krakowa (dzielnica Prądnik Czerwony, tuż przy granicy ze Śródmieściem).

Ta prestiżowa inwestycja z segmentu premium to nowoczesny, kaskadowy budynek z loftowym charakterem, inspirowane postindustrialnym klimatem Krakowa. Inwestycja wyrożnia się oryginalną fasadą i wysokimi oknami, a dzięki zróżnicowanej wysokości zapewniają piękne widoki na panoramę miasta, w tym Wawel i Park Lotników.
Inwestycja zostanie oddana do użytkowania w II kwartale 2028 roku.


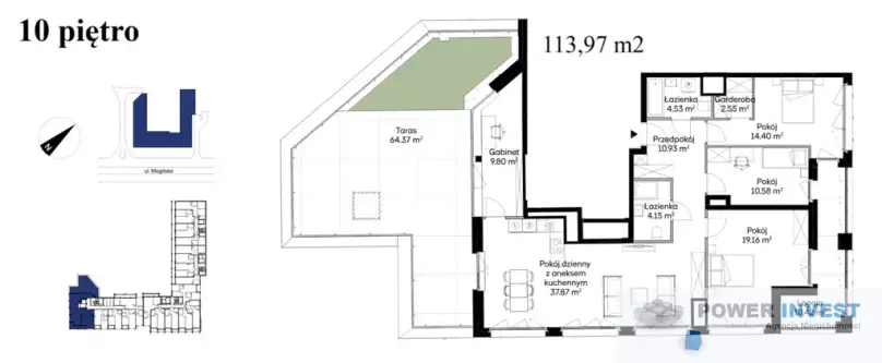
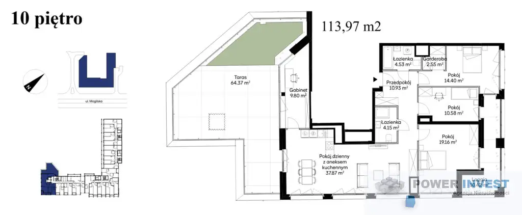
Oferowane mieszkanie znajduje się na 10 piętrze. Lokal ma powierzchnię 113,97 m² powierzchni użytkowej i składa się z:

- przestronnego salonu z aneksem kuchennym
- 3 sypialni ( w tym jednej z garderobą), każda z wyjściem na przeszkloną loggię
- 2 łazienek
- przedpokoju
- gabinetu
- loggi
- otwartego tarasu 64,37 m²


Mieszkanie jest w stanie deweloperskim, do własnej aranżacji*
*Współpracujemy z renomowanymi firmami wykończeniowymi, do każdego mieszkania oferujemy bezpłatną wycenę wykończenia "pod klucz".
Przedstawione wizualizacje stanowią jedynie pogląd jak poszczególne pomieszczenia mogą wyglądać.


Dodatkowe informacje:
- wyjątkowa ekspozycja okienna - widok na 3 strony świata
- inteligentny system Smart Home z dedykowaną aplikacją
- eleganckie lobby na parterze
- w dziedzińcu osiedla zielone patio
- ekologiczne rozwiązania: panele fotowoltaiczne, ładowarki do pojazdów elektrycznych
- monitoring, widoedomofon, kontrola dostępu
- rowerownie z miejscem na hulajnogi
- wysokie okna (do 240 cm) i nowoczesna fasada z elementami cegły i metalu
- wysokości mieszkań to 275 cm
- nowoczesne części wspólne wykończone z dbałością o detale


Lokalizacja:
- ul. Mogilska – główna arteria Krakowa, z szybkim dojazdem do centrum i Nowej Huty
- 10 minut tramwajem do Dworca Głównego i Galerii Krakowskiej
- Park Lotników Polskich - największy miejski park w Krakowie w zasięgu 7-minutowego spaceru
- centra handlowe M1, Serenada, Designer Outlet od 10 do 15 minut jazdy samochodem
- Lidl, Rossmann, lokalne sklepy spożywcze, punkty usługowe, kawiarnie, restauracje, siłownia– wszystko w najbliższym sąsiedztwie
- bogate zaplecze dydaktyczne w najbliższej okolicy


W budynku znajduje się się 3-poziomowy garaż podziemnym. Ceny miejsc postojowych zaczynają się od 75 000 zł.


Nasi eksperci finansowi z Power Finance chętnie pomogą w uzyskaniu najlepszego kredytu na rynku.


Przedstawiona oferta ma charakter informacyjny i nie stanowi oferty handlowej w rozumieniu Art.66 par.1 Kodeksu Cywilnego.


Zapraszam na prezentację inwestycji,
Angelina Rojkowicz



Ogłoszenie wysłane z programu dla biur nieruchomości ASARI CRM (asaricrm.com)



Lokalizacja
Kraków
dzielnica Prądnik czerwony
małopolskie
Informacje
Powierzchnia: 113 m2
4 pokoje
14 pięter w budynku
Rok budowy: 2028
Numer oferty: 27533/7649/OMS
Garaż
miejsce parkingowe
Zalety
domofon
Okolica
fitness
centrum handlowe
przedszkole
plac zabaw
szkoła podstawowa
restauracja
park
kościół
Kuchnia
w aneksie
Przeznaczenie
mieszkalny
Dodatkowe zalety
alarm
monitoring
Kontakt
POWER HOLDING Sp. z o.o.
Angelina Rojkowicz
+48 575 222 841

Podobne oferty

 Kraków   Grzegórzecka

Mieszkanie

Kraków, Grzegórzecka

Bez podatku PCC i prowizji. Termin odbiory IV kwartał 2023  Sprzedaż bezpośrednio od dewelopera, w ofercie posiadamy również inne mieszkania...

194 m2
5 pokoi
5 052 320 zł
26 043 zł/m2
 Kraków

ENGLISH\GERMAN 3 ROOM APARTMENT IN CRACOV

Kraków

I SPEAK ENGLISH/GERMAN. PLEASE CONTACT ME FOR MORE INFORMATION. Kupujący nie płaci prowizji dla pośrednika, brak umów z agencją itp,...

56 m2
3 pokoje
1 129 400 zł
20 168 zł/m2
 Kraków   Wita Stwosza

Mieszkanie z balkonem nieopodal centrum

Kraków, Wita Stwosza

Kupujący nie płaci prowizji ani podatku PCC 2%Mam przyjemność zaproponować Państwu mieszkanie w nowej inwestycji w dzielnicy Śródmieście. Ta kawalerka...

34 m2
1 pokój
713 966 zł
20 999 zł/m2