♦️CH M1♦️Balkon♦️Piwnica♦️Parking♦️Zalew Borki♦️Ob

Radom , 1905 Roku

Mieszkanie
45 m2
2 pokoje

250 000 zł

Treść ogłoszenia

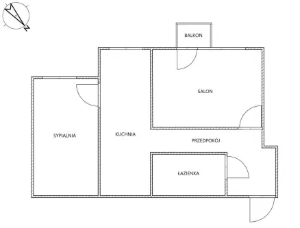
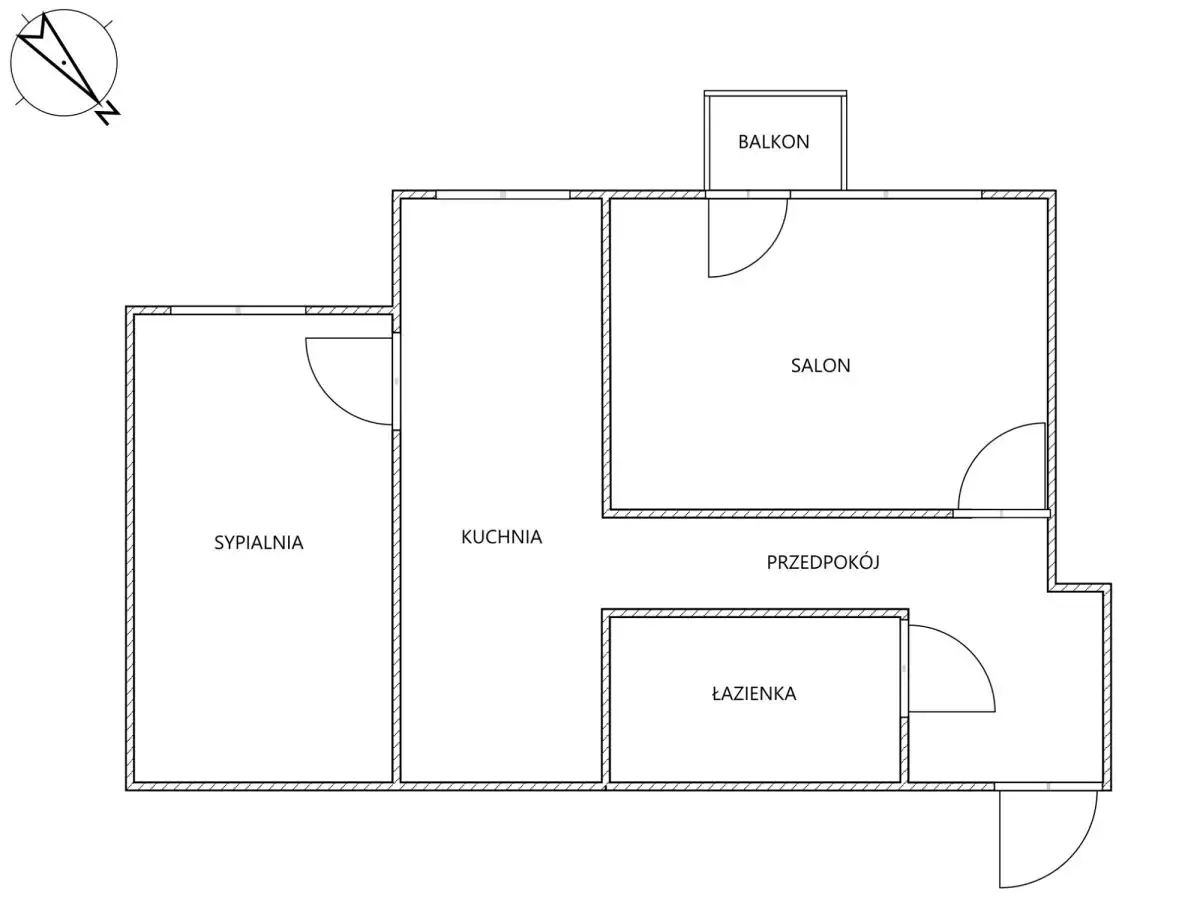
Na sprzedaż: 2-pokojowe mieszkanie z balkonem - ul. 1905 Roku, os. Borki, Radom
Mieszkanie o powierzchni 45,02 m², położone na 3. piętrze z 4 w niskim bloku po termomodernizacji.
To doskonała propozycja dla osób szukających mieszkania w spokojnej, zielonej okolicy, z szybkim dostępem do centrum miasta.


Funkcjonalny układ z potencjałem
W skład mieszkania wchodzą:
salon z wyjściem na balkon (ekspozycja południowo-zachodnia),
sypialnia,
oddzielna kuchnia,
przedpokój,
łazienka z WC.
Do mieszkania przynależy piwnica o powierzchni ok. 6 m².
Dla mieszkańców dostępny jest również duży parking osiedlowy.



Stan techniczny
Mieszkanie wymaga remontu, co daje możliwość dowolnej aranżacji i dopasowania wnętrza do własnych potrzeb.



Opłaty
Czynsz: 490 zł (w tym ogrzewanie, woda, śmieci, fundusz remontowy)
Dodatkowe opłaty: prąd według zużycia
Forma własności: pełna własność
Ogrzewanie i ciepła woda: miejskie



Lokalizacja
Osiedle Żakowice to spokojna, dobrze skomunikowana część Radomia - zaledwie kilka minut od centrum.
W pobliżu znajdują się:
szkoły i uczelnie: SP nr 12 i 14, ZSZ, Zespół Szkół Plastycznych, UTH Radom, Uniwersytet Radomski,
sklepy i centra handlowe: M1, Lidl, Biedronka, Aldi, Leclerc, Kaufland, OBI,
gastronomia: McDonald’s, KFC, bary orientalne, lokale azjatyckie, pizzerie,
obiekty rekreacyjne: MOSiR, Aquapark, Kino Helios, Lodowisko, Dom Kultury, Park Rozrywki, klub bilardowy, siłownie, kluby sportowe, Centrum Zabaw,
placówki medyczne, apteki, szpital, dworzec kolejowy



Zielone otoczenie
W najbliższej okolicy znajdują się:
Zalew Borki,
Park Planty,
Park Ustronie,
Park Kościuszki,
Park im. J. Ruzika,
Staw Godowski,
Ogród Republika Wośniki.


Dlaczego warto?
Doskonała lokalizacja - blisko centrum i komunikacji,
Niski opłaty eksploatacyjne,
Budynek po termomodernizacji,
Funkcjonalny układ z potencjałem,
Balkon z ekspozycją południowo-zachodnią,
Duży parking dla mieszkańców,
Piwnica ok. 6 m²,
Otoczenie pełne zieleni i terenów rekreacyjnych.


Zadzwoń i umów się na prezentację - to mieszkanie z ogromnym potencjałem!

Lokalizacja
Radom
mazowieckie
Informacje
Powierzchnia: 45 m2
2 pokoje
4 piętra w budynku
Rok budowy: 1960
Numer oferty: 676883
Dodatkowe zalety
piwnica
Wyposażenie
balkon/taras
Kontakt
Pozysk Nieruchomości
Adam Brzeziński
791276207

Podobne oferty

 Radom   11 Listopada

Mieszkanie

Radom, 11 Listopada

Sprzedam mieszkanie, 2 pokoje z aneksem kuchennym, 48 metrów, osiedle XV-lecie , ul. 11listopada, wieżowiec z monitoringiem domofonem i 2...

48 m2
2 pokoje
349 000 zł
7 271 zł/m2

Wyjątkowe 2 poziomowe mieszkanie w centrum miasta

Radom, Witolda

Poszukujesz idealnego miejsca dla swojej rodziny w sercu Radomia? To wyjątkowe, dwupoziomowe mieszkanie przy ul. Witolda z pewnością spełni Twoje...

108 m2
4 pokoje
580 000 zł
5 370 zł/m2
 Radom   Janusza Kusocińskiego

Loggia Piwnica Po termomodernizacji G. Słone

Radom, Janusza Kusocińskiego

Na sprzedaż: 2-pokojowe mieszkanie z dużą loggią - ul. Janusza Kusocińskiego, os. XV-lecia, RadomMieszkanie o powierzchni 35,15 m², położone na...

36 m2
2 pokoje
235 000 zł
6 528 zł/m2