2 pokoje z ogródkiem

Poznań , Jasielska

Mieszkanie
35 m2
2 pokoje

426 122 zł

Treść ogłoszenia

Ogłoszenie sprzedaży 2 pokojowego mieszkania z ogródkiem w Poznaniu.
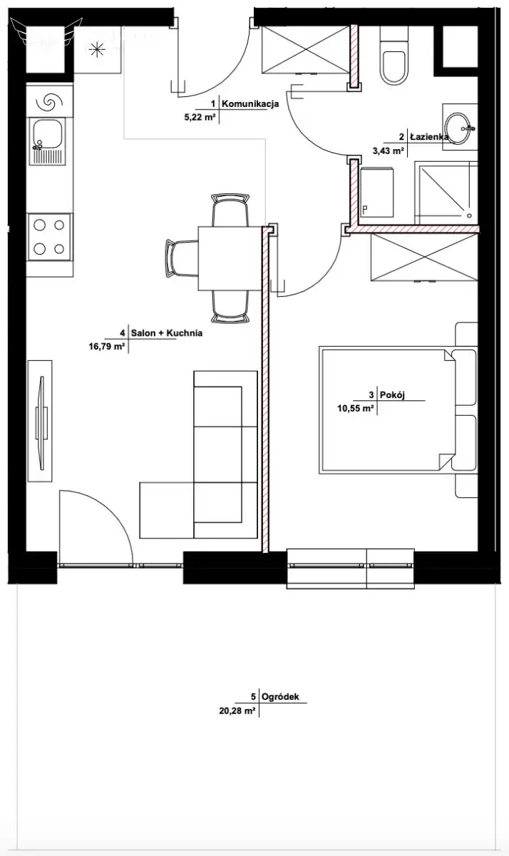
Wyjście na ogródek z salonu i sypialni


Zadzwoń i umów się na obejrzenie inwestycji +48798601102




  • Bezpośrednio od dewelopera

  • Brak PCC

  • Bez prowizji





Lokalizacja

Podolany, to lokalizacja zapewniająca bliskość terenów zielonych, a jednocześnie jest dobrze skomunikowana z centrum.



  • autobus - 1 minuta

  • przychodnia - 5 minut

  • tereny zielone - 5 minut

  • szkoła - 5 minut

  • sklepy - 1 minuta




Układ mieszkania




  • Salon + Kuchnia 16,75 m²

  • Pokój 10,55 m²

  • Przedpokój 5,22 m²

  • Łazienka 3,43 m²

  • Ogródek 20,28 m²







w inwestycji



  • windy

  • domofon

  • monitoring

  • wewnętrzny plac zabaw

  • CO miejskie






Mieszkanie będzie oddane do użytku w IV kwartale 2025
To miejsce, które daje Ci spokój, komfort i codzienną wygodę.

Do ceny należy doliczyć miejsce postojowe w hali garażowej.




Spełnij marzenia o nowym mieszkaniu.
Zainteresowany? Zadzwoń , napisz

Monika Skotarczak. +48798601102

ZERO prowizji, brak PCC

...
Oferta wystawiona przez Biuro nieruchomości Falcon Estate.
Prezentowane w serwisie oferty nie stanowią oferty handlowej w rozumieniu art. 66 Kodeksu Cywilnego i mogą być nieaktualne.
Lokalizacja
Poznań
dzielnica Podolany
wielkopolskie
Informacje
Powierzchnia: 35 m2
2 pokoje
4 piętra w budynku
Rok budowy: 2025
Numer oferty: FE347628
Zalety
domofon
Media
kanalizacja
Kontakt
Falcon Estate
Monika Skotarczak
798601102

Podobne oferty

 Poznań   Hawelańska

Dwupokojowe funkcjonalne mieszkanie w Poznaniu

Poznań, Hawelańska

Dwupokojowe, funkcjonalne mieszkanie w świetnej lokalizacji na Winogradach, łączącej bliskość natury i centrum miasta, to teraz realna możliwość dzięki tej...

41 m2
2 pokoje
559 980 zł
13 658 zł/m2

APARTAMENT 3 Pokoje OSTATNIE PIĘTRO z TarasEM

Poznań

APARTAMENT, 3 POKOJE, OSTATNIE PIĘTRO Z TARASEM, PIĄTKOWO, BEZ PROWIZJI Zapraszam do zapoznania się z ofertą sprzedaży nowego, 3-pokojowego mieszkania...

58 m2
3 pokoje
750 000 zł
12 931 zł/m2
 Poznań   Polanka

Mieszkanie

Poznań, Polanka

Mieszkanie 2 pokojowe na parterze 3 piętrowego bloku z aneksem kuchennym + łazienka z wc + loggia - metraż 59,68...

59 m2
2 pokoje
762 000 zł
12 915 zł/m2