Lokal biurowy Pruszcz Gdański

Pruszcz Gdański

Komercyjne
130 m2

4 000 zł

Treść ogłoszenia

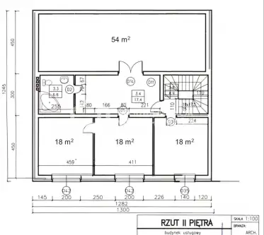
Lokal usługowo - biurowy o powierzchni 130 m², położony w centrum Pruszcza Gdańskiego.

Lokal położony jest na 2-piętrze budynku biurowego. 
Ściany gładzone i malowane, na podłodze terakota i wykładzina.
Centralne ogrzewanie własne gazowe.
Bardzo dobra lokalizacja przy głównej ulicy Pruszcza i przy dojeździe na obwodnicę gdańską.
Przed budynkiem znajduje się parking. 

Miesięczny czynsz  najmu 4.500 zł. netto + media.
Kaucja jednomiesięczny czynsz 4.500 zł. netto.

Więcej informacji u agenta prowadzącego
Anna Rachoń
tel. 668 862 853
Zapraszam na prezentację.

Lokalizacja
Pruszcz Gdański
pomorskie
Informacje
Powierzchnia: 130 m2
2 piętra w budynku
Numer oferty: DJ594184
Umiejscowienie
centrum handlowe
Kontakt
SIECIOWA AGENCJA NIERUCHOMOŚCI DJ Renoma
Anna Rachoń
668862853

Podobne oferty

 Pruszcz Gdański   Feliksa Nowowiejskiego

Lokal biurowy w PRUSZCZU GDAŃSKIM

Pruszcz Gdański, Feliksa Nowowiejskiego

DziałkaDziałka o powierzchni ok. 5000 m2. Teren ogrodzony i uzbrojony. Część działki niezabudowana została zagospodarowana na drogi wewnętrzne, parkingi, plac...

330 m2
16 000 zł
48 zł/m2
 Pruszcz Gdański

Lokal biurowy Pruszcz Gdański

Pruszcz Gdański

Lokal usługowo- biurowy o pow.320 m2, położony w centrum Pruszcza Gdańskiego.Lokal dwu poziomowy z przeznaczeniem na działalność, biurową, usługowąpołożony jest...

320 m2
7 000 zł
22 zł/m2
 Pruszcz Gdański

magazyn z biurami na wynajem.

Pruszcz Gdański

Do wynajęcia Obiekt magazynowo - biurowy o powierzchni 773 m2.Budynek znajduje się w Pruszczu gdańskim, przy ul. Batalionów chłopskich. Obiekt...

773 m2
30 000 zł
39 zł/m2