Wprowadź Się Od Zaraz Nowy wykończony dom

Motycz

Dom
124 m2
4 pokoje

1 199 000 zł

Treść ogłoszenia

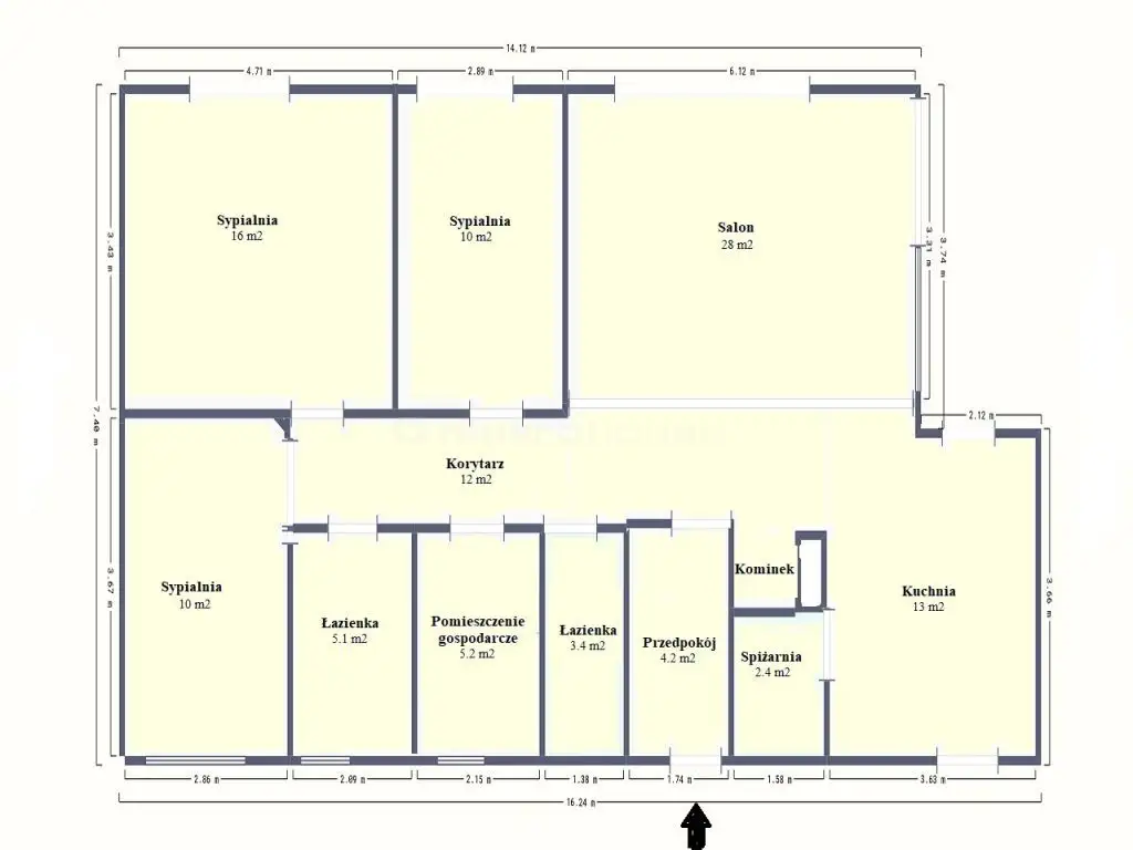
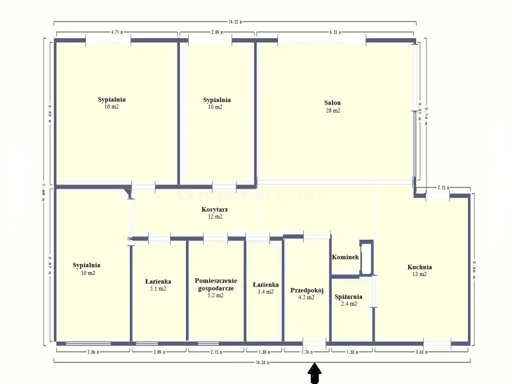
Nowoczesny, jednopoziomowy dom o powierzchni 124 m² jest idealnym wyborem dla osób, które cenią sobie przestrzeń, światło i innowacyjność.
Wnętrze domu zaprojektowane zostało z najwyższą starannością, oferując przyszłym właścicielom trzy przytulne sypialnie, przestronny salon z kominkiem, funkcjonalną kuchnię ze spiżarnią oraz dwie łazienki. Dodatkowo, z myślą o codziennej wygodzie, w domu znajduje się praktyczne pomieszczenie gospodarcze oraz garaż. Jednym z wyjątkowych atutów tej nieruchomości jest innowacyjny system drzwi przesuwanych oraz imponujące przeszklenia, które zapewniają mnóstwo naturalnego światła. Dopełnieniem tego intrygującego projektu jest przestronny taras, doskonały do odpoczynku w otoczeniu natury.  Zewnętrzne elewacyjne lampy pięknie oświetlają dom, tworząc magiczną atmosferę po zmroku. Dom został zaprojektowany z najwyższą starannością, a jego precyzyjne wykonanie to gwarancja satysfakcji na lata.
Ponadto dodatkowe zalety:

* brak opłaty PCC (oszczędzasz 2%)

* bliskość szkoły (ok. 1 km)

* dogodny dostęp do Lublina ( ok. 8 km)

* dostępność do obwodnicy ( ok. 4 km)

* w pobliżu sklepy i punkty usługowe ( ok 1 km)

* spokój i bliskość natury

* teren atrakcyjny pod względem gospodarczym



Jeśli szukasz miejsca, które pozwoli Ci na własną aranżację i dostosowanie przestrzeni do Twojego stylu życia, ten dom jest dla Ciebie. Oferuje pełną funkcjonalność i komfort w nowoczesnym wydaniu.


Czy wiesz, że możemy przygotować dla Ciebie prezentację on-line nieruchomości? Skontaktuj się z naszym Agentem i zapytaj o szczegóły.

Pomimo, iż Doradcy Metrohouse przykładają szczególną staranność do rzetelnego prezentowania informacji o nieruchomości, nie zawsze jest możliwa weryfikacja wszystkich danych przekazanych od osób trzecich. Niniejsza prezentacja oferty nie jest ofertą w rozumieniu Kodeksu Cywilnego i ma charakter wyłącznie informacyjny.
Lokalizacja
Motycz
lubelskie
Informacje
Powierzchnia: 124 m2
4 pokoje
Rok budowy: 2024
Numer oferty: SDFAMO390
Ogrzewanie
pompa ciepła
Dojazd
utwardzony
Kontakt
METROHOUSE
Paula Frańczak
+48699585423

Podobne oferty

 Motycz

Dom wolnostojący st. deweloperski 7 pokoi Motycz

Motycz

Sprzedam dom wolnostojący w stanie deweloperskim o powierzchni 180,94 m2 w Motyczu. Dom znajduje się na działce o powierzchni 1096m2,...

180 m2
7 pokoi
1 100 000 zł
6 111 zł/m2
 Motycz

Dom wolnostojący blisko Lublina

Motycz

Polecam Państwu dom wolnostojący z komfortowym rozkładem pomieszczeń i garażem. Nieruchomość o powierzchni całkowitej 160 m2, na działce o pow....

160 m2
5 pokoi
990 000 zł
6 188 zł/m2
 Motycz

Dom wolnostojący st. deweloperski 7 pokoi Motycz

Motycz

Sprzedam dom wolnostojący w stanie deweloperskim o powierzchni 180,94 m2 w Motyczu. Dom znajduje się na działce o powierzchni 1096m2,...

180 m2
7 pokoi
1 000 000 zł
5 556 zł/m2