3 pokojowe mieszkanie loggia blisko centrum

Poznań , Wagrowska

Mieszkanie
65 m2
3 pokoje

755 000 zł

Treść ogłoszenia

Ogłoszenie sprzedaży 3 pokojowego mieszkania w stanie deweloperskim, Poznań


Zadzwoń i umów się na obejrzenie inwestycji +48798601102

Bezpośrednio od dewelopera
Brak PCC
Bez prowizji

Lokalizacja

Starołęka, to ceniona przez mieszkańców okolica, blisko centrum i terenów zielonych.


  • tramwaj - 1 minuta

  • przychodnia - 5 minut

  • tereny zielone - 5 minut

  • szkoła - 5 minut

  • sklepy - 5 minut










Szukasz miejsca w którym poczujesz się naprawdę u siebie? Ten budynek został stworzony z myślą o Tobie i Twoich najbliższych.

Na dachu czeka na Ciebie taras widokowy - idealny, by odpocząć po ciężkim dniu pracy i nacieszyć się widokiem miasta. Jeśli masz dzieci, z pewnością docenisz plac zabaw tuż obok budynku - bezpieczny i pełen przestrzeni do zabawy.

Na co dzień możesz liczyć na wygodę dzięki windom obsługującym wszystkie piętra.
Do dyspozycji masz także rowerownię i wózkownię. Mamy także dla Ciebie podziemne i naziemne miejsca postojowe.

Twoje bezpieczeństwo to dla nas priorytet. W budynku znajduje się wideodomofon, drzwi antywłamaniowe, a całości dopełnia ochrona, która czuwa 24/7.

To miejsce, które daje Ci spokój, komfort i codzienną wygodę.


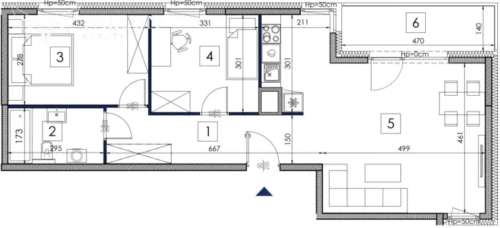
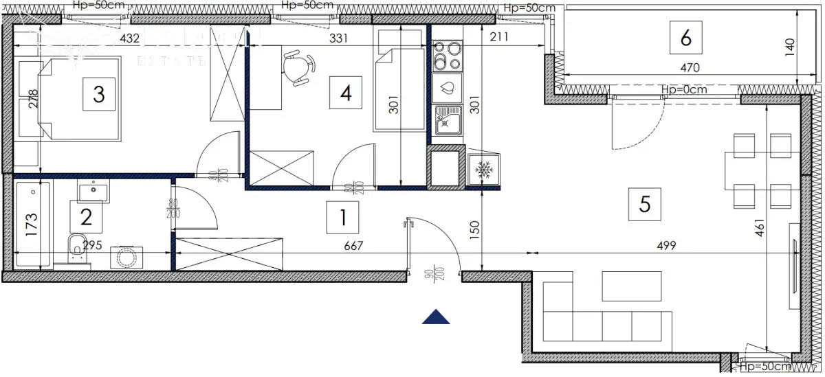
Układ mieszkania



  • salon z aneksem kuchennym - 29,49 m²

  • sypialnia - 11,97 m²

  • sypialnia 9,96 m²

  • łazienka - 5,10 m²

  • hol - 9,40 m²

  • loggia 6,28 m²








Mieszkania są już gotowe. Dostępne są jeszcze mieszkania 2 i 3 pokojowe.

Dla wybranych mieszkań 3 pokojowych miejsce postojowe gratis do końca sierpnia.


Spełnij marzenia o nowym mieszkaniu.
Nie czekaj, zarezerwuj mieszkanie do końca sierpnia.

Dodatkowo

pomagamy bezpłatnie w uzyskaniu najkorzystniejszej oferty kredytu hipotecznego,
możliwość wykończenia mieszkania pod klucz.

Monika Skotarczak. +48798601102

ZERO prowizji, brak PCC.

...
Oferta wystawiona przez Biuro nieruchomości Falcon Estate.
Prezentowane w serwisie oferty nie stanowią oferty handlowej w rozumieniu art. 66 Kodeksu Cywilnego i mogą być nieaktualne.
Lokalizacja
Poznań
dzielnica Starołęka
wielkopolskie
Informacje
Powierzchnia: 65 m2
3 pokoje
9 pięter w budynku
Rok budowy: 2025
Numer oferty: FE387776
Zalety
domofon
Media
kanalizacja
Kontakt
Falcon Estate
Monika Skotarczak
798601102

Podobne oferty

 Poznań   Maków Polnych

3 pokoje z balkonem niska zabudowa w Poznaniu

Poznań, Maków Polnych

Ogłoszenie sprzedaży 3 pokojowego apartamentu z balkonem w stanie deweloperskimBezpośrednio od deweloperaBrak PCCBez prowizjiLokalizacja:Poznań Umultowo - to doskonałe połączenie życia...

41 m2
3 pokoje
467 742 zł
11 408 zł/m2
 Poznań   Józefa Wrońskiego

ustawna kawalerka z balkonem zieleń tramwaj

Poznań, Józefa Wrońskiego

Przytulne mieszkanie w dzielnicy, która zapewnia dostęp do zieleni i jednocześnie dobrą komunikację z centrum, oraz innymi częściami Poznania.Układ mieszkania:...

28 m2
1 pokój
425 218 zł
15 186 zł/m2
 Poznań   Błażeja

Mieszkanie

Poznań, Błażeja

Mieszkanie znajduje się w Poznaniu w dzielnicy Naramowice przy ul. Błażeja 6E w rzędzie 4 bloków, od strony wschodniej. Jest...

45 m2
2 pokoje
460 000 zł
10 222 zł/m2