Mieszkania

Poznań , Starołęcka

Mieszkanie
69 m2
3 pokoje

885 000 zł

Treść ogłoszenia

Oferta sprzedaży - 3-pokojowe mieszkanie

**Kupujący nie płaci prowizji dla biura**


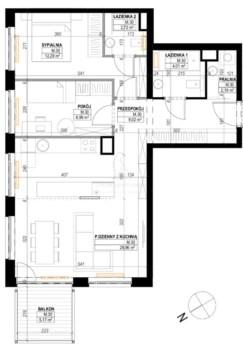
Na sprzedaż wyjątkowe 3-pokojowe mieszkanie o powierzchni 69,07 m², zlokalizowane na nowo powstałym osiedlu przy ul. Starołęckiej. Mieszkanie znajduje się w rozbudowującym się kompleksie mieszkaniowym, w otoczeniu zieleni, tuż nad rzeką Wartą, co zapewnia zarówno dostęp do natury i obecność zielonych obszarów, jak i szybki dostęp do centrum miasta.


Szczegóły mieszkania:



  • Powierzchnia: 69,07 m²

  • Liczba pokoi: 3

  • Kuchnia: otwarta, z możliwością zamknięcia

  • Łazienki: 2

  • Dodatkowe pomieszczenia: pralnia

  • Balkon: tak



 

Atuty osiedla:



  • Zielona, spokojna okolica nad rzeką Wartą, doskonała do odpoczynku i aktywnego spędzania czasu.

  • Bliskość centrum miasta - połączenie wygody miejskiego życia z urokami natury, w pobliżu przystanek tramwajowy oraz stacja PKP "Starołęcka", z której dojedziemy do centrum w 6 minut

  • Miejsca parkingowe - dostępne w podziemnej hali garażowej oraz na parkingu naziemnym, dodatkowo miejsca ogólnodostępne wzdłuż ulicy Starołęcka - brak płatnej strefy parkowania

  • Komórka lokatorska - możliwość wykupienia dodatkowego miejsca do przechowywania.

  • Pomieszczenie dla rowerów i wózków 



To mieszkanie to idealna propozycja dla osób ceniących nowoczesny styl, funkcjonalność oraz kontakt z naturą. Nie przegap okazji, by zamieszkać w jednym z najatrakcyjniejszych i rozwijających się miejsc w okolicy.


Zapraszamy do kontaktu w celu uzyskania szczegółowych informacji i umówienia się na prezentację.

ETALON ESTATE GROUP
+48 531 448 559
www.etalon-estate.pl
Lokalizacja
Poznań
dzielnica Starołęka
wielkopolskie
Informacje
Powierzchnia: 69 m2
3 pokoje
7 pięter w budynku
Rok budowy: 2023
Numer oferty: 544671
Wyposażenie
balkon/taras
Kontakt
Etalon Estate Group
Natalia Zaitseva
+48 602 280 084

Podobne oferty

 Poznań   Katowicka

Stylowe mieszkanie 2-pok przy Malcie w Poznaniu

Poznań, Katowicka

Zapraszamy do zapoznania się z ofertą mieszkania zlokalizowanego w prestiżowej dzielnicy Poznania, blisko jeziora Maltańskiego. Jest to idealne miejsce dla...

39 m2
2 pokoje
870 000 zł
22 308 zł/m2
 Poznań   Jana Matejki

90m² taras na Łazarzu na najwyższym piętrze

Poznań, Jana Matejki

Spiesz się! - to ostatnie duże mieszkania w tej elitarnej lokalizacji# centrum# Górny Łazarz# optymalnie wykorzystana przestrzeń# 2 duże tarasy...

116 m2
4 pokoje
1 851 078 zł
15 958 zł/m2
 Poznań   Jana Henryka Dąbrowskiego

3-pokojowe Nowe Jeżyce 2 sypialnie duży salon

Poznań, Jana Henryka Dąbrowskiego

Świetny widok na dzielnicę!# loggia 4.34m²# wysokość 278cm# wszystkie okna na południe# realizacja kwiecień 2026# Jeżyce# centrum# kompletne mieszkanie# miejsce...

50 m2
3 pokoje
692 057 zł
13 841 zł/m2