Ogłoszenie którego szukasz jest już nieaktualne. Zapraszamy do zapoznania się z podobnymi ofertami.

 Kraków   Zygmunta Glogera

Słoneczne mieszkanie z ogródkiem dla pary singla

Kraków, Zygmunta Glogera

Oferuję do sprzedaży mieszkanie 2-pokojowe w stanie deweloperskim* w kameralnym budynku 3-piętrowym zlokalizowanym w Prądniku Białym, przy ul. Glogera. Mieszkanie...

33 m2
2 pokoje
465 093 zł
14 094 zł/m2
 Kraków   Rybałtowska

Mieszkanie na 1 piętrze 2 pok. z balkonem

Kraków, Rybałtowska

Nowa inwestycja mieszkaniowa – zakończenie budowy w 2027 roku Zakup bez prowizji i podatku PCC Mam przyjemność zaprezentować nową inwestycję...

37 m2
2 pokoje
569 848 zł
15 401 zł/m2
 Kraków   Litewska

Przytulne 3-pokojowe mieszkanie po remoncie

Kraków, Litewska

Przytulne 3-pokojowe mieszkanie po remoncie, Kraków, Krowodrza Na sprzedaż przytulne i bardzo ustawne mieszkanie o powierzchni 46,12 m², położone przy...

46 m2
3 pokoje
759 000 zł
16 500 zł/m2
Kraków
Kraków   2
Kraków   3
Kraków   4
Kraków   5

Nowe mieszkanie Prądnik Czerwony Kraków

Kraków

Mieszkanie
42 m2
2 pokoje

693 495 zł

Treść ogłoszenia

Inwestycja oddana do użytku, bez PCC, bez prowizji.

English below

Oferuję do sprzedaży mieszkanie 2-pokojowe w budynku 6-piętrowym zlokalizowanym na Prądniku Czerwonym przy ul.Strzelców
Okolica jest świetnie skomunikowana, zajezdnia autobusowa zaraz obok.
W pobliżu znajdują się tereny zielone, szkoła podstawowa, przedszkole. Okolica jest bardzo spokojna.

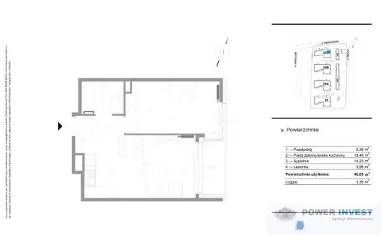
Mieszkanie znajduje się na 5 piętrze, ma powierzchnię 42.03 m² i składa się z:
- sypialni
- łazienki
- salonu z aneksem
- balkonu

Dodatkowe informacje inwestycji:
- winda
- nowoczesna architektura, zielona przestrzeń
- pierwszorzędny standard wykończenia części wspólnych z użyciem wysokiej jakości materiałów budowlanych
- monitoring

Parking podziemny, miejsce postojowe można zakupić w cenie od 32 000 PLN
Możliwość zakupu komórki lokatorskiej w garażu od 6 000 PLN/m²

Lokalizacja:

Przystanek autobusowy (1 minuta spacerem)Galeria Serenada, park wodny (8 minut samochodem)Blisko kawiarnia, przedszkole, żłobek, szkoław najbliższej przyszłości będzie przystanek kolei miejskiej zaraz obok
Mogę zaprezentować również inne mieszkania z tej inwestycji, zapraszam.

Zapraszam na prezentację
Aleksandra Janik
+48 537 973 360

Nasi eksperci finansowi z Power Finance chętnie pomogą w uzyskaniu najlepszego kredytu na rynku.
Również mamy w ofercie pakiety wykończeniowe.

Przedstawiona oferta ma charakter informacyjny i nie stanowi oferty handlowej w rozumieniu Art.66 par.1 Kodeksu Cywilnego.


ENG

The investment has been completed — no PCC tax, no commission

I am offering a 2-room apartment for sale in a 6-story building located in Prądnik Czerwony, on Strzelców Street.
The area is very well connected — a bus depot is located right next door.
There are green areas, a primary school, and a kindergarten nearby.

The apartment is situated on the 5th floor, has an area of 42.03 m², and consists of:
a bedroom,
a bathroom,
a living room with a kitchenette,
a balcony


Additional investment details:
elevator,
modern architecture and green surroundings,
high standard of common areas finished with top-quality materials,
CCTV monitoring.


Underground parking:
Parking spaces available for purchase starting from PLN 32,000.
Storage rooms available in the garage from PLN 6,000/m².

Location:
Bus stop – 1 minute walk,
Galeria Serenada shopping center and Water Park – 8 minutes by car,
Nearby café, kindergarten, nursery, and school,
In the near future, a city railway station will be located right next to the development.


I can also present other apartments available in this investment — feel free to contact me.

Contact:
Aleksandra Janik
+48 537 973 360

Our financial experts at Power Finance will gladly help you obtain the best mortgage available on the market.
We also offer apartment finishing packages.

This offer is for informational purposes only and does not constitute a commercial offer as defined by Article 66, paragraph 1 of the Civil Code.




Ogłoszenie wysłane z programu dla biur nieruchomości ASARI CRM (asaricrm.com)



Lokalizacja
Kraków
dzielnica Prądnik czerwony
małopolskie
Informacje
Powierzchnia: 42 m2
2 pokoje
6 pięter w budynku
Rok budowy: 2025
Numer oferty: 27507/7649/OMS
Garaż
miejsce parkingowe
Zalety
domofon
Okolica
przedszkole
plac zabaw
szkoła podstawowa
restauracja
park
las
Kuchnia
w aneksie
Przeznaczenie
mieszkalny
Dodatkowe zalety
monitoring