Ogłoszenie którego szukasz jest już nieaktualne. Zapraszamy do zapoznania się z podobnymi ofertami.

 Kraków   Mała Góra

Nowa inwestycja4 pok2 Balkony0% prowizji i PCC

Kraków, Mała Góra

Nowa, kameralna inwestycja na Bieżanowie w sąsiedztwie Parku Aleksandry.Bezpośrednio od dewelopera - bez prowizji i podatku PCC 2%INWESTYCJA:W inwestycji zaprojektowano...

63 m2
3 pokoje
820 430 zł
13 023 zł/m2
 Kraków   Rydlówka

Apartament 4 pokoje przy Rondzie Matecznego

Kraków, Rydlówka

English below  BEZ PROWIZJI,  KUPUJĄCY ZWOLNIONY JEST Z PODATKU PCC Odbiór IV kwartał 2025  W ofercie posiadamy inne apartamenty w...

102 m2
4 pokoje
1 933 092 zł
18 952 zł/m2
 Kraków   Kątowa

Kawalerka z potencjałem inwestycyjnym-20 99 m²

Kraków, Kątowa

Wyjątkowa lokalizacja, gwarancja zysku i klimat prawdziwego Krakowa! Na sprzedaż urokliwa, w pełni funkcjonalna kawalerka w samym sercu miasta —...

20 m2
1 pokój
479 000 zł
23 950 zł/m2
Kraków
Kraków   2
Kraków   3
Kraków   4
Kraków   5
Kraków   6
Kraków   7
Kraków   8

Ruczaj 3-pokojowe z klimatyzacją i ogródkiem 90m²

Kraków

Mieszkanie
54 m2
3 pokoje

834 024 zł

Treść ogłoszenia

Zakup mieszkania bez prowizji i podatku pcc.
Inwestycja jest gotowa, zapraszam na prezentację.


Oferuję do sprzedaży gotowe mieszkanie 3-pokojowe w 2-piętrowym budynku z windą zlokalizowanym na Ruczaju.
Inwestycja ulokowana jest na kameralnym i cichym osiedlu z wygodnym dojazdem do pozostałych dzielnic Krakowa. Budynki cechują się przemyślanym i spójnym projektem z zadbaną zielenią w częściach wspólnych.


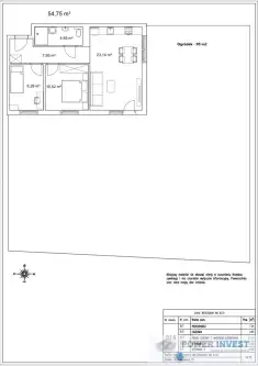
Mieszkanie znajduje się na parterze. Lokal ma powierzchnię 54,75 m i składa się z:

- salonu z aneksem kuchennym
- sypialni
- sypialni
- łazienki
- przedpokoju
- ogródka 90 m²


Mieszkanie jest w stanie deweloperskim, do własnej aranżacji*
*Współpracujemy z renomowanymi firmami wykończeniowymi. Zachęcamy do skorzystania z bezpłatnej konsultacji.


Dodatkowe informacje dotyczące mieszkania oraz całej inwestycji:

- w każdym mieszkaniu ogrzewanie podłogowe, brak grzejników
- klimatyzacja wraz z jednostkami zewnętrzną oraz wewnętrzną w salonie
- cichobieżna winda w budynku
- okna 3-szybowe z filtrami antysmogowymi
- plac zabaw na terenie osiedla
- pierwszorzędny standard wykończenia części wspólnych z użyciem wysokiej jakości materiałów budowlanych
- w garażu podziemnym nie ma platform, wszystkie miejsca są wyznaczone na płycie garażowej


Lokalizacja:

- doskonały dostęp do komunikacji miejskiej (200 m do przystanku autobusowego "Bunscha", 1 przystanek autobusowy do zajezdni tramwajowo-autobusowej "Czerwone Maki")
- w pobliżu liczne supermarkety - Lidl, Market Point, kompleks handlowy Atut Czerwone Maki, siłownia a także restauracje,
- 4 przystanki komunikacją miejską do Kampusu UJ
- w okolicy bogate zaplecze dydaktyczne - żłobki i przedszkola, szkoła podstawowa
- w sąsiedztwie tereny zielone oraz rekreacyjne
- cicha i spokojna okolica, w sąsiedztwie niska zabudowa mieszkalna



Do każdego mieszkania przynależy miejsce postojowe w garażu podziemnym - zakup obligatoryjny (ceny od 40 000 zł).
Istnieje możliwość zakupu komórki lokatorskiej.


Nasi eksperci finansowi z Power Finance chętnie pomogą w uzyskaniu najlepszego kredytu na rynku.


Przedstawiona oferta ma charakter informacyjny i nie stanowi oferty handlowej w rozumieniu Art.66 par.1 Kodeksu Cywilnego.


W razie dodatkowych pytań pozostaję do dyspozycji.
Angelina Rojkowicz





Ogłoszenie wysłane z programu dla biur nieruchomości ASARI CRM (asaricrm.com)



Lokalizacja
Kraków
dzielnica Ruczaj
małopolskie
Informacje
Powierzchnia: 54 m2
3 pokoje
2 piętra w budynku
Rok budowy: 2024
Numer oferty: 27197/7649/OMS
Garaż
miejsce parkingowe
Zalety
domofon
teren ogrodzony
Okolica
centrum handlowe
przedszkole
plac zabaw
szkoła podstawowa
restauracja
kościół
Kuchnia
w aneksie
Przeznaczenie
mieszkalny
Dodatkowe zalety
monitoring