4 pokoje z tarasem na Czechowie

Lublin

Mieszkanie
71 m2
4 pokoje

653 660 zł

Treść ogłoszenia

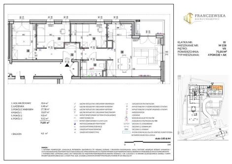
Czteropokojowe mieszkanie o powierzchni 71,05 m² na 7 piętrze w 7-piętrowym budynku na nowoczesnym osiedlu na Czechowie w Lublinie.
To idealna propozycja dla osób szukających komfortowego mieszkania w spokojnej, zielonej okolicy z doskonałym dostępem do miejskiej infrastruktury.

OPIS MIESZKANIA:
Pokój dzienny o powierzchni 27,38,00 m² z wyjściem na przestronny balkon/taras o pow. 4m²,
Pokój o powierzchni 10,07 m²,
Pokój o powierzchni 9 m² 
Pokój o powierzchni 9,52m²
Łazienka 4,48 m²,
Hol 10,60 m²

DODATKOWE INFORMACJE:
Cena miejsca postojowego w garażu podziemnym: 40 000 zł
Cena komórki lokatorskiej: 3 500 zł/m²

MEDIA:
pełne uzbrojenie - prąd, woda, kanalizacja, światłowód, kotłownia własna dla budynku

TERMIN REALIZACJI:
IV kwartał 2026 r.

DODATKOWE INFORMACJE:
- nowoczesny design, wysoką jakość wykonania
- cichobieżne windy, podziemny garaż dwupoziomowy, komórki lokatorskie,
- panele fotowoltaiczne, stacja ładowania pojazdów elektrycznych,
- monitoring, wideodomofon, światłowód,
- plac zabaw, strefa rekreacji i rowerownia,
- przestronne balkony nawet do 27 m².

LOKALIZACJA:
W pobliżu znajdują się sklepy, szkoły i nowy park handlowy, a także przystanki autobusowe linii 17, 18, 42, 57 i 904, zapewniające szybki dojazd do centrum. Lokalizacja umożliwia również bardzo szybki wyjazd na obwodnicę Lublina, co czyni to miejsce wyjątkowo praktycznym dla osób pracujących w różnych częściach miasta.
Jeśli potrzebujesz pomocy eksperta w dobraniu finansowania zakupu nieruchomości, skontaktuj się z opiekunem oferty.

Ofertę przygotował i prezentuje:
Piotr Ryl: 604 711 517
Licencjonowany pośrednik nieruchomości
Franczewska Nieruchomości
Zapraszam do kontaktu oraz na prezentację nieruchomości!

Treść niniejszego ogłoszenia nie stanowi oferty handlowej w rozumieniu Kodeksu Cywilnego, ale jest zaproszeniem do współpracy. Dokładamy wszelkich starań, aby każda z ofert była rzetelnie sprawdzona oraz aktualna. W ofercie nie są przedstawione koszty obsługi transakcji, która wykonywana jest w profesjonalny sposób i zapewnia Państwu pełne bezpieczeństwo. Więcej unikalnych ofert w podobnych kryteriach znajdą Państwo na naszej stronie.
Lokalizacja
Lublin
dzielnica Czechów
lubelskie
Informacje
Powierzchnia: 71 m2
4 pokoje
7 pięter w budynku
Rok budowy: 2026
Numer oferty: 710519
Zalety
domofon
Media
kanalizacja
Wyposażenie
balkon/taras
Kontakt
FRANCZEWSKA NIERUCHOMOŚCI ADRIANNA FRANCZEWSKA-KRUPA SPÓŁKA KOMANDYTOWA
Piotr Ryl
604711517

Podobne oferty

 Lublin

3 pokojowe 47.30 m² ul. Tumidajskiego .

Lublin

Sprzedam trzypokojowe mieszkanie przy ul.Tumidajskiego 47.30m2 Mieszkanie znajduje się na czwartym piętrze dziesięciopiętrowego bloku. Na powierzchni 47.3m2 znajdują się: -...

47 m2
3 pokoje
369 000 zł
7 851 zł/m2
 Lublin   Legionowa

Mieszkanie na sprzedaż

Lublin, Legionowa

Piękne, wysokie mieszkanie 3-pokojowe po generalnym remoncie, w doskonałej lokalizacji! Wieniawa os. Unia - bardzo blisko centrum miasta i lubelskich...

56 m2
3 pokoje
624 000 zł
11 143 zł/m2
 Lublin   Wieniawska

Mieszkanie

Lublin, Wieniawska

Myślisz o zakupie mieszkania w celach inwestycyjnych lub chcesz zamieszkać w centrum miasta? Zapraszam do zapoznania się z naszą ofertą....

46 m2
2 pokoje
639 678 zł
13 906 zł/m2