4 pokoje 64 68m² Kapuściska

Bydgoszcz

Mieszkanie
64 m2
4 pokoje

590 000 zł

Treść ogłoszenia

Mam przyjemność zaprezentować 4-pokojowe mieszkanie na sprzedaż, usytuowane na trzecim piętrze 5-piętrowego kameralnego budynku z windą. Składajacego sie z 35 mieszkań, w spokojnej okolicy blisko lasu na bydgoskim osiedlu Kapuściska.

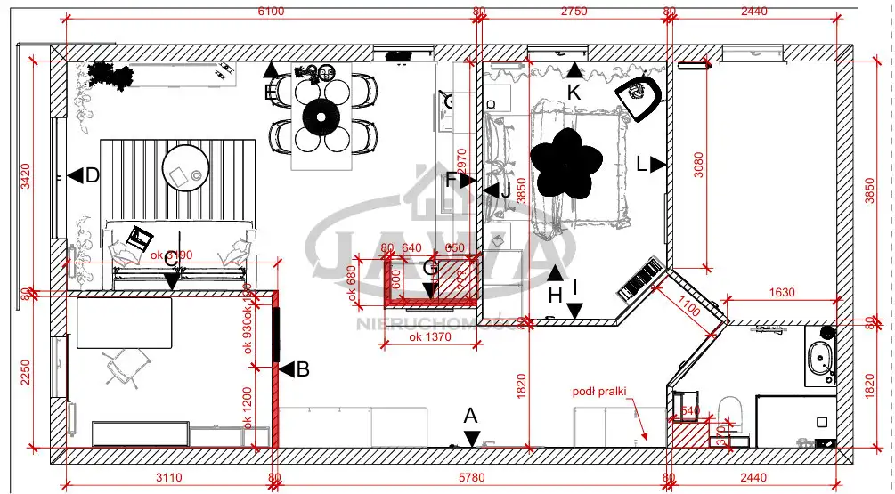
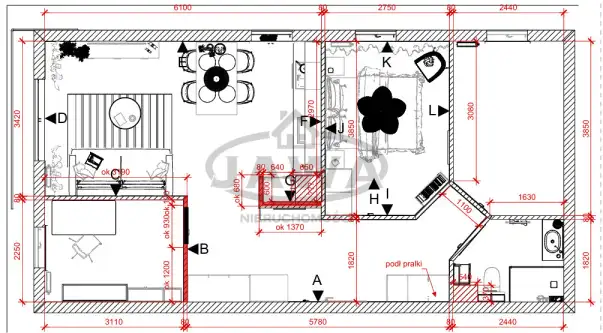
Lokal mieszkalny składa się z poniżej opisanych pomieszczeń:
- pokój z aneksem kuchennym 20,55 m²
- pokój 9,98 m²
- pokój 8,92 m²
- pokój 10,72 m²
- łazienka 3,81 m²
- korytarz 8,35 m²

Poglądowy rzut znajduje się na końcu galerii.

Standard wykończenia:
Mieszkanie zostało przearanżowane zgodnie z projektem przygotowanym przez architekta wnętrz. Zmieniony został układ ścian działowych, rozkład hydrauliki oraz elektryki. W mieszkaniu zostały wykonane gładzie gipsowe oraz pomalowane na biało.

Lokalizacja:
Mieszkanie znajduje się na osiedlu Kapuściska, i jest świetnie zlokalizowane. W promieniu kilkuset metrów znajdują wszystkie niezbędne do życia punkty usługowe, sklepy, szkoły, przedszkola.

Dodatkowe informacje:
Instalacja pod wideodomofon, światłowód, klimatyzację.
Ogrzewanie miejskie

Możliwość dokupienia:
Miejsce postojowe w hali garażowej (40tys.zł) 
Komórki lokatorskiej (8 tys.zł).

Nie przegap tej okazji i skontaktuj się z mną już dziś, by dowiedzieć się więcej i zrealizować swoje marzenia o własnym mieszkaniu w doskonałej lokalizacji!

Jeśli zainteresowała Cię ta oferta, zapraszam na prezentację.

Zadzwoń 571 510 306
Do usłyszenia,
Agnieszka Noga

USŁUGA PROJEKTOWA:
Współpracujemy z renomowaną pracownią architektury wnętrz APA Trojanowscy, posiadającą ponad 10-letnie doświadczenie w branży. Dzięki temu możesz spełnić swoje marzenia o pięknie i ergonomicznie zaprojektowanej przestrzeni.

USŁUGA WYKOŃCZENIA WNĘTRZ:
Zapewniamy kompleksową obsługę dzięki współpracy ze sprawdzonymi ekipami remontowymi, które realizują prace pod stałym nadzorem.
Pełen wachlarz usług - od bezpiecznej obsługi zakupu nieruchomości po wykończenie według projektu koncepcyjnego przez dobór materiałów. Doświadczona ekipa wykończeniowa oraz 2-letnia gwarancja na wykonane prace.

USŁUGA ZARZĄDZANIA NAJMEM:
Dla inwestorów oferujemy profesjonalne zarządzanie najmem, umożliwiające bezobsługową opiekę nad nieruchomością.
Dedykowany specjalista zajmie się całością procesu wynajmu. Od poszukiwania odpowiedniego najemcy po formalności i przekazanie kluczy.

DORADZTWO FINANSOWE:
Pomagamy w uzyskaniu kredytu hipotecznego, oferując wsparcie doświadczonych doradców finansowych.

INFORMACJE PRAWNE:
Niniejszy opis sporządzono na podstawie oględzin nieruchomości oraz informacji dostarczonych przez właściciela. Może on ulec zmianie i nie stanowi oferty handlowej w rozumieniu art. 66 §1 Kodeksu Cywilnego.
Lokalizacja
Bydgoszcz
kujawsko-pomorskie
Informacje
Powierzchnia: 64 m2
4 pokoje
5 pięter w budynku
Rok budowy: 2023
Numer oferty: JAW121549
Media
kanalizacja
Kontakt
JAWA Nieruchomości
Agnieszka Noga
571 510 306

Podobne oferty

 Bydgoszcz

Duże mieszkanie w rewelacyjnej lokalizacji

Bydgoszcz

Świetna lokalizacja, powierzchnia oraz potencjał.Nowa oferta dostępna z dnia na dzień- wyłącznie w naszym biurze.   Mieszkanie wymaga nakładów, jednak ma...

72 m2
4 pokoje
396 000 zł
5 500 zł/m2
 Bydgoszcz   Plac Piastowski

Lokal niemieszkalny 3 pok do przekształcenia

Bydgoszcz, Plac Piastowski

Bardzo dobra lokalizacja, bardzo duży potencjał i bardzo dobra cena - to główne zalety tej nieruchomości.Jedyne 2946 zł/m2Na sprzedaż lokal...

67 m2
3 pokoje
199 000 zł
2 970 zł/m2
 Bydgoszcz   al. kard. Stefana Wyszyńskiego

Mieszkanie

Bydgoszcz, al. kard. Stefana Wyszyńskiego

Na sprzedaż mieszkanie dwupokojowe o powierzchni 48,50 metrów2 w bloku z lat 60tych.. Składa się z dwóch pokoi, kuchni, łazienki...

48 m2
2 pokoje
379 900 zł
7 915 zł/m2