kawalerka z balkonem na Podolanach

Poznań , Jasielska

Mieszkanie
28 m2
1 pokój

359 647 zł

Treść ogłoszenia

Ogłoszenie sprzedaży kawalerki z balkonem w Poznaniu


Zadzwoń i umów się na obejrzenie inwestycji +48798601102




  • Bezpośrednio od dewelopera

  • Brak PCC

  • Bez prowizji



Lokalizacja

Podolany, to lokalizacja zapewniająca bliskość terenów zielonych, a jednocześnie jest dobrze skomunikowana z centrum.



  • autobus - 1 minuta

  • przychodnia - 5 minut

  • tereny zielone - 5 minut

  • szkoła - 5 minut

  • sklepy - 1 minuta




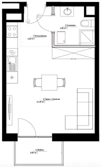
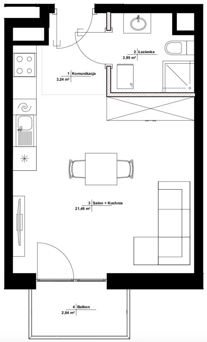
Układ mieszkania




  • Salon + Kuchnia 21,49 m²

  • Przedpokój 3,24 m²

  • Łazienka 3,95 m²

  • Balkon 2,84 m²





w inwestycji



  • windy

  • domofon

  • monitoring

  • wewnętrzny plac zabaw

  • CO miejskie





To miejsce, które daje Ci spokój, komfort i codzienną wygodę.
Do ceny należy doliczyć miejsce postojowe w hali garażowej.




Spełnij marzenia o nowym mieszkaniu.
Zainteresowany? Zadzwoń , napisz

Monika Skotarczak. +48798601102

ZERO prowizji, brak PCC

...
Oferta wystawiona przez Biuro nieruchomości Falcon Estate.
Prezentowane w serwisie oferty nie stanowią oferty handlowej w rozumieniu art. 66 Kodeksu Cywilnego i mogą być nieaktualne.
Lokalizacja
Poznań
dzielnica Podolany
wielkopolskie
Informacje
Powierzchnia: 28 m2
1 pokoje
5 pięter w budynku
Rok budowy: 2026
Numer oferty: FE259466
Zalety
domofon
Media
kanalizacja
Wyposażenie
balkon/taras
Kontakt
Falcon Estate
Monika Skotarczak
798601102

Podobne oferty

 Poznań   Głuszyna

Mieszkanie

Poznań, Głuszyna

Mieszkanie zarządzane przez Wspólnotę mieszkaniową,do której wpłacany jest czynsz-media oraz fundusz remontowy.Mieszkanie z układem dwustronnym z osobną łazienką i toaletą,...

63 m2
3 pokoje
520 000 zł
8 254 zł/m2
 Poznań   Jana Henryka Dąbrowskiego

Kawalerka na Jeżycach

Poznań, Jana Henryka Dąbrowskiego

Szczegóły Mieszkania metraż 30.02 m2 balkon 4.34 m2 wysokość 2.58 m położenie Północ realizacja 2026-04 Szukasz idealnego miejsca do życia...

30 m2
1 pokój
449 207 zł
14 974 zł/m2
 Poznań   Jasielska

4 pokoje z dużym ogródkiem na Podolanach

Poznań, Jasielska

Ogłoszenie sprzedaży 4 pokojowego mieszkania z ogródkiem w PoznaniuZadzwoń i umów się na obejrzenie inwestycji +48798601102Bezpośrednio od deweloperaBrak PCCBez prowizjiLokalizacjaPodolany,...

73 m2
4 pokoje
765 016 zł
10 480 zł/m2