Apartament z Loggią i Tarasem Śródmieście

Gdańsk , Stępkarska

Mieszkanie
102 m2
4 pokoje

2 765 340 zł

Treść ogłoszenia

Stylowe apartamenty nad Motławą, z technologią Smart House w standardzie, w świetnie skomunikowanej lokalizacji blisko Długiej i Wyspy Spichrzów.
Zakup od dewelopera, bez 2% podatku PCC i prowizji.

Atuty inwestycji:
- Architektura inspirowana stoczniową historią Gdańska z wysokimi przeszkleniami i tarasami widokowymi.
- Prestiżowa lokalizacja 1 km od Głównego Miasta z nadwodnym charakterem.
- Inteligentne sterowanie światłem i bezpieczeństwem w każdym mieszkaniu.
- Standard inwestycji obejmuje strefę fitness i saunę oraz proekologiczne rozwiązania LED i fotowoltaikę.

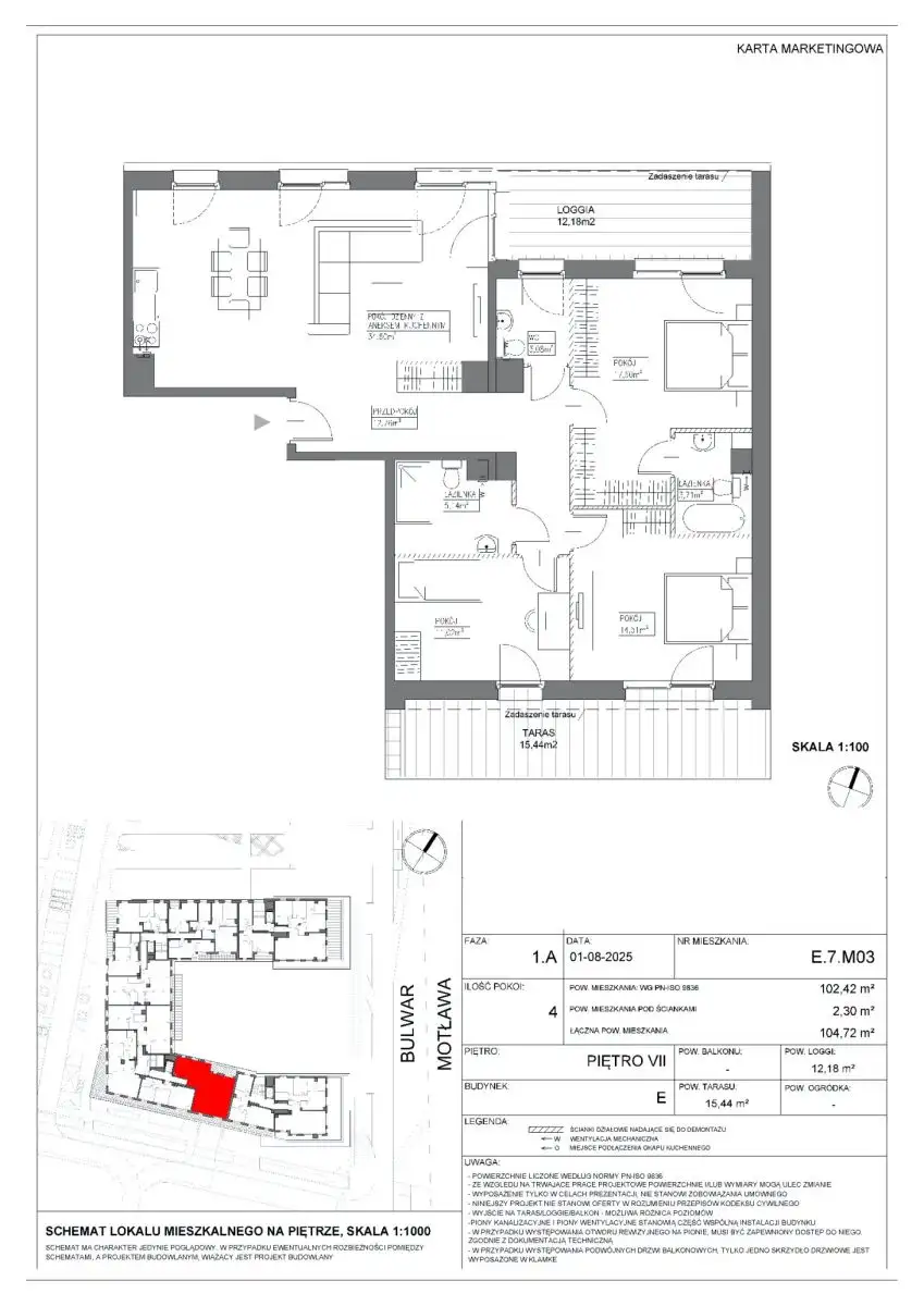
Układ mieszkania:
- pokój dzienny z aneksem kuchennym,
- 3 sypialnie,
- 2 łazienki,
- toaleta,
- przedpokój,
- loggia,
- taras 15,44 m².

Dodatkowe informacje:
Miejsce postojowe w hali garażowej: 55 000 zł
Komórka lokatorska: 5 500 zł/m²

Piętro: 7/7
Liczba pokoi: 4
Termin realizacji inwestycji: 1Q2027

W razie jakichkolwiek pytań zachęcamy do kontaktu pod podany niżej numer.
Serdecznie zapraszamy na prezentacje inwestycji!

Osoba do kontaktu: Dawid Dragan
Tel. +48 733 266 466

Powyższa oferta ma charakter informacyjny i nie stanowi oferty handlowej w rozumieniu art. 66 §1 Kodeksu Cywilnego.
Lokalizacja
Gdańsk
dzielnica śródmieście
pomorskie
Informacje
Powierzchnia: 102 m2
4 pokoje
7 pięter w budynku
Rok budowy: 2027
Numer oferty: 373036
Kontakt
Dayton Nieruchomości
Dawid Dragan
733 266 466

Podobne oferty

 Gdańsk   Wielkopolska

Inwestycja 2 Pokoje z Balkonem Łostowice

Gdańsk, Wielkopolska

Miejsce to zostało zaprojektowane z myślą o osobach, które marzą o własnym mieszkaniu dopasowanym do swoich potrzeb, cenią mądre rozwiązania...

43 m2
2 pokoje
486 982 zł
11 325 zł/m2
 Gdańsk   Storczykowa

Mieszkanie 55m² 3 pokoje Gdańsk Kokoszki

Gdańsk, Storczykowa

Na sprzedaż oferujemy mieszkanie trzypokojowe o powierzchni 55m2, na parterze w budynku z 2003roku przy ulicy Storczykowej.Lokal składa się z:-...

55 m2
3 pokoje
629 000 zł
11 436 zł/m2
 Gdańsk   Aleja Gen. Józefa Hallera

Nowa Osiedle Premium Bliska odległość od Morza

Gdańsk, Aleja Gen. Józefa Hallera

Nowoczesna inwestycja wyróżnia się nowoczesnym designem, inspirowanym nadmorskim klimatem, oraz wysoką jakością wykończenia.Zakup od dewelopera, bez 2% podatku PCC i...

69 m2
3 pokoje
1 465 485 zł
21 239 zł/m2