mieszkanie z ogrodem dobre połączenie z centrum

Poznań

Mieszkanie
46 m2
3 pokoje

571 640 zł

Treść ogłoszenia

Ogłoszenie sprzedaży 3 pokojowego mieszkania z ogródkiem w stanie deweloperskim


Bezpośrednio od dewelopera
Brak PCC
Bez prowizji


Lokalizacja:

Poznań Umultowo - to doskonałe połączenie życia w zielonej okolicy z dobrą komunikacją miejską.



  • przystanki autobusowe 4 min

  • sklepy spożywcze 4 min

  • Poznański Szybki Tramwaj - ok. 10 min

  • Rezerwat Przyrody Żurawiniec - 3 min

  • UAM - 5 min

  • paczkomat - 3 min





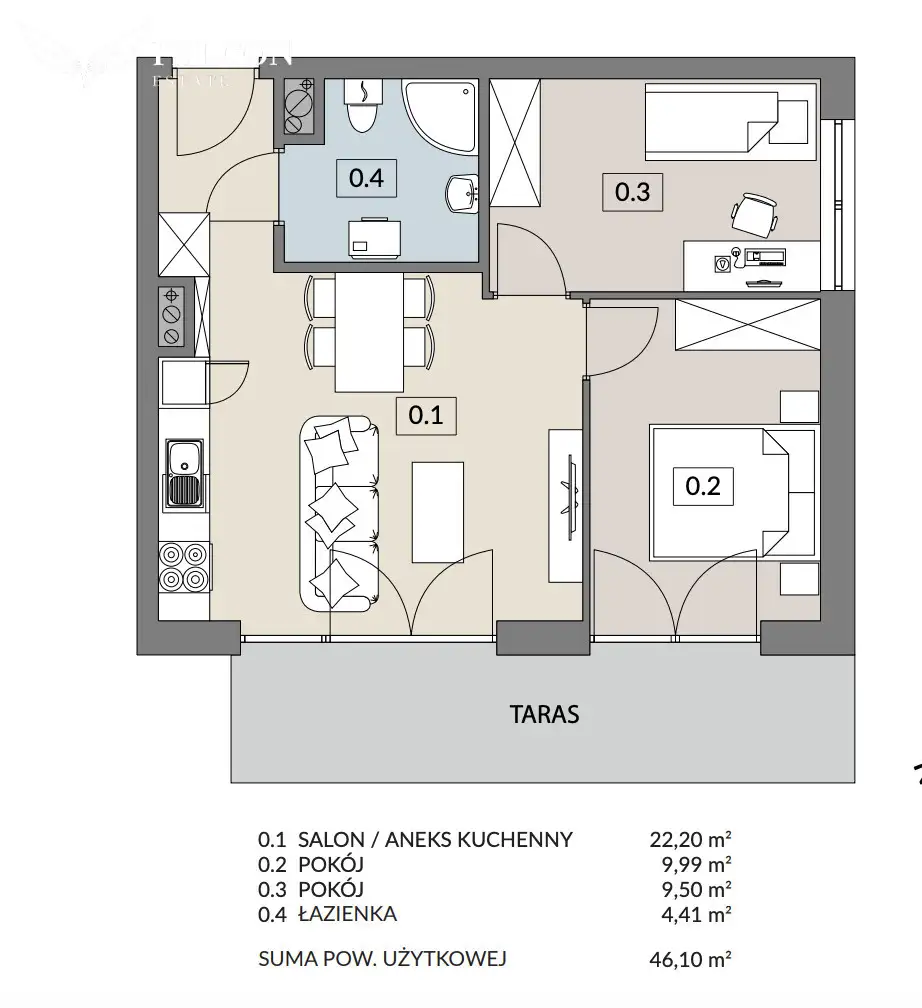
Układ mieszkania:


  • salon z aneksem kuchennym - 22,20 m²

  • sypialnia  - 9,99 m²

  • sypialnia - 9,50 m²

  • łazienka - 4,41 m²


dostęp do prywatnego ogródka


Dodatkowo



  • rowerownia

  • stacje ładowania pojazdów

  • windy




Przygotowana instalacja pod klimatyzację oraz elektryczne rolety. Mieszkania są bardzo jasne dzięki panoramicznym oknom balkonowym.

Obowiązek dokupienia miejsca postojowego w hali garażowej lub naziemnego.


Termin oddania: 01.12.2026


Zainteresowany? Nie czekaj, zarezerwuj swoje wymarzone mieszkanie

Monika Skotarczak +48798601102

Dodatkowo



  • pomagamy bezpłatnie w uzyskaniu najkorzystniejszej oferty kredytu hipotecznego

  • możliwość wykończenia mieszkania pod klucz




ZERO prowizji, brak PCC



...
Oferta wystawiona przez Biuro nieruchomości Falcon Estate.
Prezentowane w serwisie oferty nie stanowią oferty handlowej w rozumieniu art. 66 Kodeksu Cywilnego i mogą być nieaktualne.
Lokalizacja
Poznań
dzielnica Umultowo
wielkopolskie
Informacje
Powierzchnia: 46 m2
3 pokoje
3 piętra w budynku
Rok budowy: 2026
Numer oferty: FE857163
Zalety
domofon
Media
kanalizacja
Kontakt
Falcon Estate
Monika Skotarczak
798601102

Podobne oferty

 Poznań   Łozowa

Mieszkanie

Poznań, Łozowa

Sprzedam przestronne, dwupokojowe mieszkanie 48,6 m2 na świeżo po generalnym remoncie wraz z wymianą instalacji. Remont zakończony w lutym 2024r....

48 m2
2 pokoje
535 000 zł
11 146 zł/m2
 Poznań

Mieszkanie na najwyższym piętrze w nowym wieżowcu

Poznań

Zakochasz się w widoku z okna! Zapraszam do oglądania gotowego przestronnego mieszkania na ostatnim 17 piętrze. Cechy mieszkania:# loggia 5,4m2...

45 m2
2 pokoje
600 000 zł
13 333 zł/m2
 Poznań   Naramowicka

Naramowice widok na zieleń balkon tramwaj

Poznań, Naramowicka

Ogłoszenie sprzedaży 1 pokojowego mieszkania w PoznaniuLokalizacjaNaramowice, to doskonale miejsce, jeśli cenisz sobie bliskość przyrody i dostęp do miejskich udogodnień.Zakola...

27 m2
1 pokój
327 900 zł
12 144 zł/m2