Duże 2 pokoje 1 piętro parking. Możliwa zamiana

Kłodzko , H. Sienkiewicza

Mieszkanie
64 m2
2 pokoje

350 000 zł

Treść ogłoszenia

Mieszkanie na sprzedaż

Lokalizacja: Kłodzko, ul. Sienkiewicza
Powierzchnia: 64,55 m²
Liczba pokoi: 2
Piętro: 1 z 2
Media: CO gazowe, woda, prąd, gaz
Czynsz: 320,52 zł
Cena: 350 000 zł

Opis:

Na sprzedaż przestronne mieszkanie położone w kamienicy przy ul. Sienkiewicza w Kłodzku.
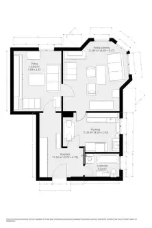
Lokal znajduje się na 1 piętrze, a jego powierzchnia wynosi 64,55 m².

W skład mieszkania wchodzą:
dwa duże, ustawne pokoje,
kuchnia,
łazienka,
korytarz.

Mieszkanie jest w stanie do zamieszkania – zostały wykonane instalacje elektryczne oraz ogrzewanie.
W lokalu dostępne są wszystkie niezbędne media: prąd, gaz, woda, kanalizacja, a ogrzewanie i ciepła woda pochodzą z pieca gazowego.

Wysokie pomieszczenia (ponad 2,8 m) potęgują wrażenie przestrzeni, dając jednocześnie duże możliwości aranżacyjne.
Do mieszkania przynależy piwnica, idealna jako dodatkowe miejsce do przechowywania.

Budynek jest w bardzo dobrym stanie technicznym – niedawno przeszedł remont dachu oraz elewacji.
Ważnym atutem są również miejsca parkingowe pod budynkiem wyłącznie dla właścicieli – do lokalu przypisane jest jedno miejsce postojowe.

Możliwa zamiana! Właściciel rozważy zamianę na mniejsze mieszkanie bliżej centrum miasta – na osiedlu, na maksymalnie 1 piętrze lub w bloku z windą.
To idealna propozycja zarówno dla osób poszukujących przestronnego mieszkania dla siebie, jak i dla inwestorów chcących ulokować środki w nieruchomość o dużym potencjale.

BIURO NIE POBIERA PROWIZJI OD KUPUJĄCYCH.




Staramy się aby nasze opisy były jak najbardziej rzetelne. Jednak większość informacji uzyskujemy na podstawie oświadczeń sprzedających, dlatego też nie mogą być one podstawą do ewentualnych roszczeń. Przedstawiona propozycja nie jest ofertą handlową w rozumieniu przepisów prawa, lecz ma charakter informacyjny.

Ogłoszenie wysłane z programu dla biur nieruchomości ASARI CRM (asaricrm.com)



Lokalizacja
Kłodzko
dolnośląskie
Informacje
Powierzchnia: 64 m2
2 pokoje
2 piętra w budynku
Rok budowy: 1900
Numer oferty: 198/14464/OMS
Garaż
miejsce parkingowe
Powierzchnia dodatkowa
komórka lokatorska
Zalety
domofon
teren ogrodzony
Okolica
szkoła podstawowa
Kuchnia
oddzielna
Ogrzewanie
CO gazowe
Dodatkowe zalety
piwnica
Kontakt
AZ Nieruchomości Kamil Draczyński
Katarzyna Szpilarewicz
511 947 535

Podobne oferty

 Kłodzko   Zamiejska

Apartament 3 pokojowy Kłodzko

Kłodzko, Zamiejska

Mieszkanie na sprzedaż   LOKALIZACJA: Kłodzko, ul. Zamiejska POWIERZCHNIA:  59,27 m.kw. LICZBA POKOI: 3 PIĘTRO: 2 z 2 CZYNSZ: 130 zł...

59 m2
3 pokoje
650 000 zł
11 017 zł/m2
 Kłodzko   H. Sienkiewicza

Mieszkanie w Kłodzku na Zaciszu

Kłodzko, H. Sienkiewicza

Mieszkanie na sprzedaż LOKALIZACJA: Kłodzko, ul. Henryka Sienkiewicza POWIERZCHNIA:  38,99 m.kw. LICZBA POKOI: 2 PIĘTRO: 1 z 2 MEDIA: C.O...

38 m2
2 pokoje
235 000 zł
6 184 zł/m2
 Kłodzko   Rodzinna

Mieszkanie 3 pokojowe z loggią

Kłodzko, Rodzinna

Mieszkanie na sprzedaż   Lokalizacja: Kłodzko, ul. Rodzinna  Powierzchnia:  58,71 m.kw. Liczba pokoi: 3 Piętro: 2 z 4 Media: CO miejskie,...

58 m2
3 pokoje
350 000 zł
6 034 zł/m2