Sprzedaż z wolnej ręki - ul. Szkolna 8

Sońsk , Szkolna

Dom
127 m2
4 pokoje

1 006 800 zł

Treść ogłoszenia

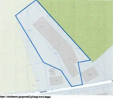
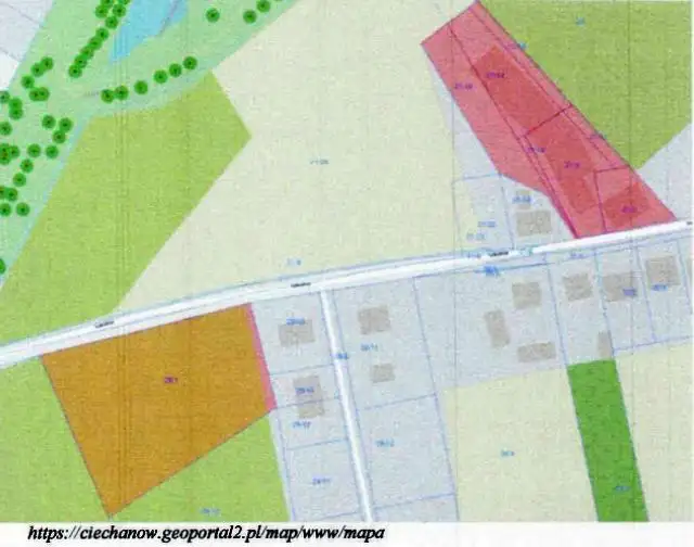
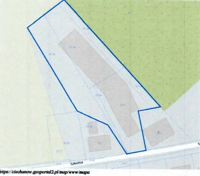
Syndyk masy upadłości Cezarego Rulkowskiego – osoby fizycznej nieprowadzącej działalności gospodarczej w postępowaniu upadłościowym, sygn. akt PL1P/GUp-s/33/2024 ogłasza konkurs na sprzedaż z wolnej ręki prawa własności zabudowanych działek rolnych o łącznej powierzchni 0,9777 ha (działki nr 21/2; 21/4; 21/14; 28/1; 21/10; 21/11; 21/16; 21/19) położonych w miejscowości Sońsk przy ulicy Szkolnej 8, dla której Sąd Rejonowy w Ciechanowie, VI Wydział Ksiąg Wieczystych prowadzi księgę wieczystą o numerze KW PL1C/00021484/1.

Cena wywoławcza sprzedaży nieruchomości wynosi 1.006.800,00 zł (jeden milion sześć tysięcy osiemset złotych).

Zainteresowani winni dokonać wpłaty wadium w wysokości 100.000,00 zł (sto tysięcy złotych) na rachunek masy upadłości o numerze 53 1940 1076 3166 5546 0000 0000 prowadzony przez Credit Agricole Bank Polska S.A. w nieprzekraczalnym terminie do dnia 24 czerwca 2025 r. oraz złożyć w tym terminie ofertę osobiście w Biurze Syndyka w Płocku, Plac Dąbrowskiego 7 lub przesłać je listami poleconymi na adres Kancelarii Syndyka ul. Lipowa 14, 09-408 Płock (decyduje data wpływu oferty).

Otwarcie ofert nastąpi w dniu 26 czerwca 2025 r. w Biurze Syndyka w Płocku, Plac Dąbrowskiego 7, 09-402 Płock, o godz. 13.45. Oferty będą otwierane i rozpoznawane przez syndyka w obecności oferentów.

Warunki konkursu oraz operat szacunkowy sprzedawanej nieruchomości dostępne są w Biurze Syndyka w Płocku przy Placu Dąbrowskiego 7. Warunki konkursu dostępne są również na stronie internetowej www.syndykplock.pl. Informacje można uzyskać również pod numerem telefonu 24 235 63 41.



Kontakt:
Syndyk Anna Kubera
tel: 24 235 63 41
[Email protected]


Ogłoszenie wysłane z programu dla biur nieruchomości ASARI CRM (asaricrm.com)



Lokalizacja
Sońsk
mazowieckie
Informacje
Powierzchnia: 127 m2
4 pokoje
Numer oferty: 8702/3186/ODS
Kontakt
AMK Portal Sp. z o.o.
Syndyk Anna Kubera
24 235 63 41