2 pokojowe mieszkanie Czechów

Lublin

Mieszkanie
39 m2
2 pokoje

553 724 zł

Treść ogłoszenia

W inwestycji dostępne mieszkania od 39 m² - 121 m².
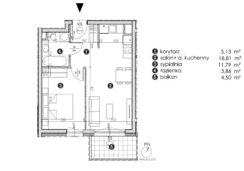
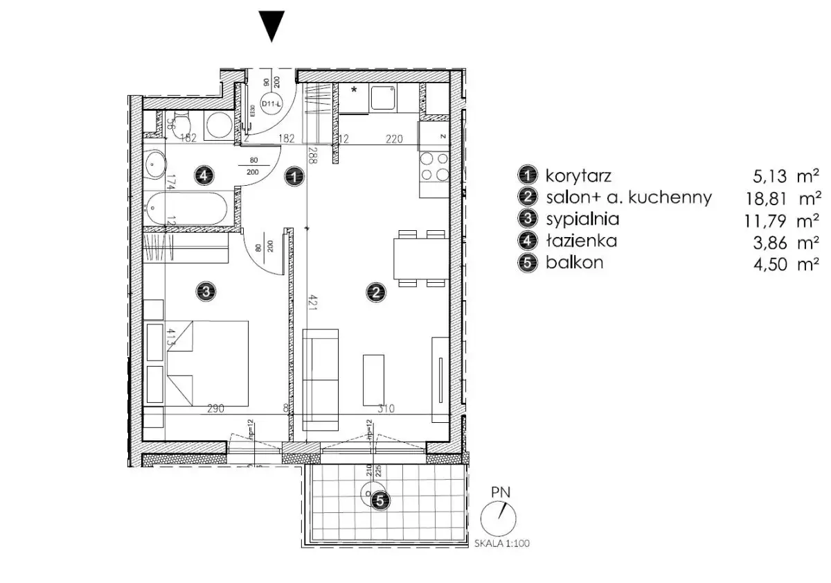
Wybrana oferta dotyczy dwupokojowego mieszkania o powierzchni projektowej 39,58 m² na 6 piętrze w 10 piętrowym bloku na Czechowie.

Opis mieszkania:
-Pokój dzienny z aneksem kuchennym o pow. 18,81 m² z wyjściem na balkon o pow. 4,50 m²
-Sypialnia o pow. 11,79 m²
-Łazienka o pow. 3,86 m²
-Przedpokój o pow. 5,13 m²

Dodatkowe informacje:
Miejsce postojowego w garażu podziemnym w cenie 50 000 zł, miejsce podwójne 80 000 zł

MEDIA:
ogrzewanie sieć miejska, woda, prąd

Termin realizacji: kwiecień 2026

Atuty inwestycji:
- nowoczesna architektura, technologia i ergonomiczne rozwiązanie,
- certyfikat BREEAM - wiodące na świecie pakiet systemów oceny i ceryfikacji budynków. Zapewnia spójną weryfikację wszystkich typów aktywów pod kątem zrównoważonego rozwoju i wpływu na środowisko.
- inteligentne mieszkania SMART HOME: oświetlenie, czujki, ruchu, dymu, zalania,
- zaplecze handlowo - usługowe.
- 1 hektar parku
- lobby z recepcją
- obiekt monitorowany

Lokalizacja:
Bardzo dobrze rozwinięta infrastruktura osiedla, w pobliżu uczelnie wyższe, szkoły, przedszkola, żłobki, sklepy spożywcze, galerie handlowe, przychodnie lekarskie, przystanki autobusowe oraz tereny zielone

*jeśli potrzebujesz pomocy eksperta w dobraniu finansowania zakupu nieruchomości, skontaktuj się z opiekunem oferty.

Ofertę przygotowała i prezentuje:
Patrycja Czarnik 791689906
Licencjonowany pośrednik nieruchomości
Franczewska Nieruchomości

Zapraszam do kontaktu oraz na prezentację nieruchomości!

Treść niniejszego ogłoszenia nie stanowi oferty handlowej w rozumieniu Kodeksu Cywilnego, ale jest zaproszeniem do współpracy. Dokładamy wszelkich starań, aby każda z ofert była rzetelnie sprawdzona oraz aktualna.
Więcej unikalnych ofert w podobnych kryteriach znajdą Państwo na naszej stronie.
Lokalizacja
Lublin
lubelskie
Informacje
Powierzchnia: 39 m2
2 pokoje
10 pięter w budynku
Rok budowy: 2026
Numer oferty: 189891030
Wyposażenie
balkon/taras
Kontakt
FRANCZEWSKA NIERUCHOMOŚCI ADRIANNA FRANCZEWSKA-KRUPA SPÓŁKA KOMANDYTOWA
Patrycja Czarnik
791 689 906

Podobne oferty

 Lublin

Mieszkanie w Centrum o wysokim standardzie

Lublin

Przytulne mieszkanie o podwyższonym standardzie w centrum.Przedstawiam Państwu na sprzedaż mieszkanie w Lublinie w Centrum przy ul. Staszica. Nieruchomość o...

31 m2
2 pokoje
752 850 zł
24 285 zł/m2
 Lublin

Mieszkanie 3 pokojowe z balkonem w Centrum Miasta

Lublin

Zapraszam do kontaktu telefonicznego, zapoznaj się z aktualnymi promocjami.Prestiżowa inwestycja w centrum Lublina, z pięknym widokiem na Stare Miasto i...

76 m2
3 pokoje
1 211 580 zł
15 942 zł/m2
 Lublin

3 pokoje Lublin BronowiceFelin

Lublin

Lokal inwestycyjny o pow. 41,66 m2 na 2 p. / 5 p. okolice ul. Droga Męczenników Majdanka. Zestawienie powierzchni:Pomieszczenie dziennego...

41 m2
3 pokoje
415 500 zł
10 134 zł/m2