Narożne 3-pokoje z ogródkiem 65 m² Czerwone Maki

Kraków , Jana Kantego Federowicza

Mieszkanie
55 m2
3 pokoje

755 000 zł

Treść ogłoszenia

Zakup mieszkania bez prowizji i podatku pcc.
Inwestycja jest gotowa, zapraszam na prezentację.


Oferuję do sprzedaży gotowe mieszkanie 3-pokojowe w 3-piętrowym budynku z windą zlokalizowanym na Ruczaju.
Inwestycja ulokowana jest na kameralnym i cichym osiedlu z doskonałym dostępem do komunikacji miejskiej i pełnej infrastruktury a także wygodnym dojazdem do pozostałych dzielnic Krakowa.


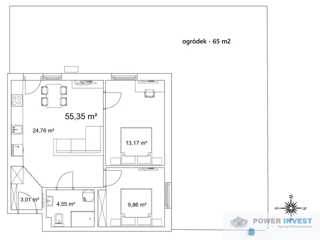
Mieszkanie znajduje się na parterze. Lokal ma powierzchnię 55,35 m² powierzchni użytkowej i składa się z:

- salonu z aneksem kuchennym
- dwóch sypialni
- łazienki
- przedpokoju
- ogródka o powierzchni 65 m²


Mieszkanie jest w stanie deweloperskim, do własnej aranżacji*
*Współpracujemy z renomowanymi firmami wykończeniowymi. Zachęcamy do skorzystania z bezpłatnej konsultacji z projektantem wnętrz.


Dodatkowe informacje:

- w każdym mieszkaniu ogrzewanie podłogowe we wszystkich pomieszczeniach, brak grzejników
- klimatyzacja wraz z jednostkami zewnętrzną oraz wewnętrzną w salonie
- cichobieżna winda w budynku
- okna 3-szybowe z filtrami antysmogowymi
- plac zabaw na terenie osiedla
- pierwszorzędny standard wykończenia części wspólnych z użyciem wysokiej jakości materiałów budowlanych
- w garażu podziemnym nie ma platform, wszystkie miejsca są wyznaczone na płycie garażowej
- osiedle monitorowane

Lokalizacja:

- doskonały dostęp do komunikacji miejskiej (200 m do przystanku autobusowego "Bunscha", 1 przystanek autobusowy do zajezdni tramwajowo-autobusowej "Czerwone Maki")
- w pobliżu liczne supermarkety - Lidl, Market Point, kompleks handlowy Atut Czerwone Maki, siłownia, restauracje, kwiaciarnia
- 4 przystanki komunikacją miejską do Kampusu UJ
- w sąsiedztwie tereny zielone oraz rekreacyjne
- cicha i spokojna okolica, w sąsiedztwie niska zabudowa mieszkalna
- w okolicy bogate zaplecze dydaktyczne - żłobki i przedszkola, szkoła podstawowa
- na terenie osiedla budynek usługowy


Do każdego mieszkania przynależy miejsce postojowe w garażu podziemnym lub miejsce zewnętrzne - zakup obligatoryjny (ceny od 36 000 zł).


Nasi eksperci finansowi z Power Finance chętnie pomogą w uzyskaniu najlepszego kredytu na rynku.

Przedstawiona oferta ma charakter informacyjny i nie stanowi oferty handlowej w rozumieniu Art.66 par.1 Kodeksu Cywilnego.

Zapraszam na prezentację,
Angelina Rojkowicz



Ogłoszenie wysłane z programu dla biur nieruchomości ASARI CRM (asaricrm.com)



Lokalizacja
Kraków
dzielnica Ruczaj
małopolskie
Informacje
Powierzchnia: 55 m2
3 pokoje
3 piętra w budynku
Rok budowy: 2025
Numer oferty: 27464/7649/OMS
Garaż
miejsce parkingowe
Zalety
domofon
teren ogrodzony
Okolica
centrum handlowe
przedszkole
plac zabaw
szkoła podstawowa
restauracja
kościół
Kuchnia
w aneksie
Przeznaczenie
mieszkalny
Dodatkowe zalety
monitoring
Kontakt
POWER HOLDING Sp. z o.o.
Angelina Rojkowicz
+48 575 222 841

Podobne oferty

 Kraków   Stanisława Lema

Park LotnikówGrzegórzki3 pokogródnowebez PCC

Kraków, Stanisława Lema

Mam przyjemność zaproponować Państwu pięknie wykończone mieszkanie w nowo powstałej inwestycji Solaris Park z bezpośrednim wyjściem do Parku Lotników. Kupujący...

51 m2
3 pokoje
1 249 000 zł
24 490 zł/m2
 Kraków   Zabłocie

Duże mieszkanie 4 pokojowe (78 85 m²) - Zabłocie

Kraków, Zabłocie

Rynek pierwotny – ukończenie inwestycji IV kwartał 2025 – stan deweloperski – zapraszam do kontaktu. Atuty nieruchomości: ·         Zabłocie -...

78 m2
4 pokoje
1 718 208 zł
22 028 zł/m2
 Kraków

4 pokoje i 3 balkony i listopad 2025r.

Kraków

Wyjątkowe mieszkanie 4-pokojowe z tarasem i 2 balkonami - ostatnie piętro!Kraków, Piaski Nowe - bez prowizji i PCCPowierzchnia: 71,65 m²Piętro:...

71 m2
4 pokoje
1 103 305 zł
15 540 zł/m2