3 pokojowe mieszkanie Czechów 2025

Lublin

Mieszkanie
69 m2
3 pokoje

675 000 zł

Treść ogłoszenia

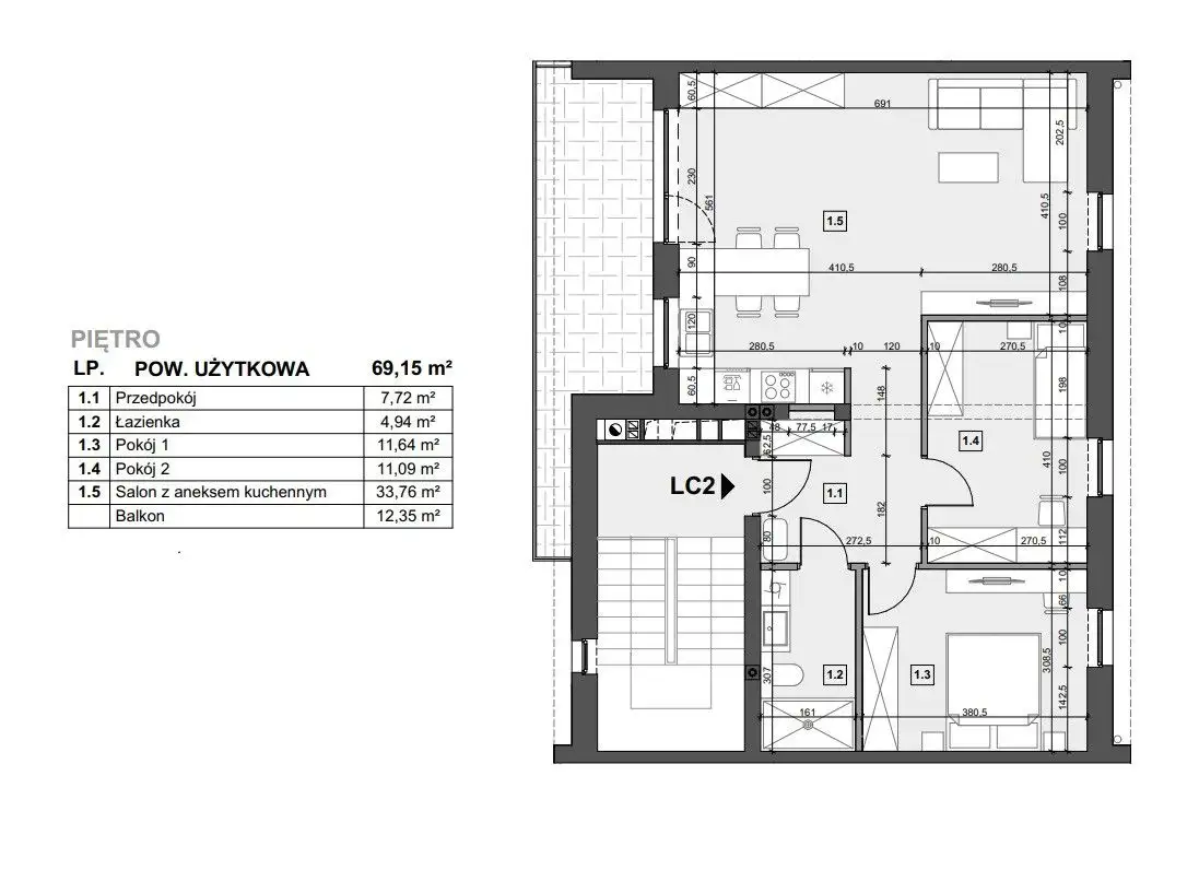
Na sprzedaż 3 pokojowe mieszkanie o powierzchni 69,15 m² na I piętrze/I  na nowym osiedlu dzielnicy Czechów - Choiny. Wystawa okien wschód, zachód.

Zestawienie pomieszczeń:
Pokój dzienny z aneksem kuchennym ( 33,76 m²) z wyjściem na balkon o powierzchni 12,35 m² 
Pokój ( 11,64 m²)
Pokój ( 11,09 m²)
Łazienka ( 4,94 m²)
Przedpokój ( 7,72 m²)

Obligatoryjnie:
Garaż z pomieszczeniem o powierzchni 32,45 m² - 70 000 zł

Atuty inwestycji:
- panele fotowoltaiczne
- CO i CW pompa ciepła (powietrze- woda)
- wentylacja z rekuperacją
- ściany tynk gipsowy i powłoka malarska
- okna PVC trzyszybowe
- parapety z konglomeratu
- wysoki standard i funkcjonalny układ pomieszczeń 
- możliwość indywidualnego zaprojektowania przestrzeni w mieszkaniu
- utrzymanie części wspólnych i prywatnych ogródków będzie w zakresie obowiązków zarządcy
- teren inwestycji w pełni zagospodarowany

Lokalizacja: Czechów Choiny, w pobliżu przystanki komunikacji miejskiej, stacja paliw, sklepy, szkoły, przedszkola, punkty usługowe.

*jeśli potrzebujesz pomocy eksperta w dobraniu finansowania zakupu nieruchomości, skontaktuj się z opiekunem oferty.
domlublin.pl

Ofertę przygotowała i prezentuje:
Patrycja Czarnik
Licencjonowany Pośrednik Nieruchomości
Franczewska Nieruchomości

Zapraszam do kontaktu oraz na prezentację nieruchomości!

Treść niniejszego ogłoszenia nie stanowi oferty handlowej w rozumieniu Kodeksu Cywilnego, ale jest zaproszeniem do współpracy. Dokładamy wszelkich starań, aby każda z ofert była rzetelnie sprawdzona oraz aktualna. Więcej unikalnych ofert w podobnych kryteriach znajdą Państwo na naszej stronie.

Lokalizacja
Lublin
dzielnica Czechów górny
lubelskie
Informacje
Powierzchnia: 69 m2
3 pokoje
1 piętro w budynku
Rok budowy: 2025
Numer oferty: 420410
Ogrzewanie
pompa ciepła
Wyposażenie
balkon/taras
Kontakt
FRANCZEWSKA NIERUCHOMOŚCI ADRIANNA FRANCZEWSKA-KRUPA SPÓŁKA KOMANDYTOWA
Patrycja Czarnik
791 689 906

Podobne oferty

 Lublin   Lwowska

Szukasz małego mieszkania w idealnej lokalizacji?

Lublin, Lwowska

Zapraszamy do zapoznania się z naszą ofertą sprzedaży tego wyjątkowego mieszkania, które łączy w sobie wszystko, co niezbędne do wygodnego...

37 m2
2 pokoje
383 010 zł
10 352 zł/m2
 Lublin

4 pokojowe mieszkanie Bazylianówka blisko Centrum

Lublin

Zadzwoń, poznaj aktualne promocję przy zakupię mieszkania i miejsca postojowego!Czterpokojowe mieszkanie o powierzchni projektowej 65,43 m2 na 1 p. /...

65 m2
4 pokoje
701 737 zł
10 796 zł/m2
 Lublin

4-pokojowe mieszkanie z ogródkiem

Lublin

Przedstawiam Państwu 4-pokojowe mieszkanie zlokalizowane przy ulicy Roztocze na Węglinie Południowym. Nieruchomość o powierzchni 67,33 m² usytuowana jest na parterze...

67 m2
4 pokoje
729 184 zł
10 883 zł/m2