Olsztyn Tracka 5 – hala magazyn biura plac

Olsztyn , Tracka

Lokal
412 m2
7 pokoi

2 150 000 zł

Treść ogłoszenia

Wyjątkowa oferta – dwa sąsiadujące ze sobą, niezależne obiekty usługowo-produkcyjne, położone w przemysłowej części Olsztyna przy ul. Tracka 5. Łączna powierzchnia użytkowa obu budynków to ponad 410 m², a całkowita powierzchnia działek to niemal 1100 m². To idealna propozycja dla firm szukających kompleksowego zaplecza operacyjnego, inwestorów lub osób planujących rozwój działalności w jednej lokalizacji.

LOKALIZACJA:
Oba lokale zlokalizowane są przy ul. Tracka 5 w Olsztynie – w obszarze o ugruntowanym charakterze przemysłowo-usługowym. W sąsiedztwie działają liczne warsztaty, hurtownie i zakłady techniczne. Dojazd do nieruchomości odbywa się drogą asfaltową, a ostatni odcinek to utwardzony wjazd z płyt betonowych – dostosowany także do pojazdów ciężarowych. Od centrum miasta dzieli je zaledwie 10 minut jazdy.

NIERUCHOMOŚCI:
- Powierzchnia użytkowa: ok. 412 m²
- Powierzchnia działek: 697 m² + 383 m² = 1080 m²
- Dwa niezależne lokale, każdy z własnym układem funkcjonalnym
- Obiekty po generalnym remoncie w 2015 r.
- Ogrodzony teren, monitoring, bramy wjazdowe, utwardzone place

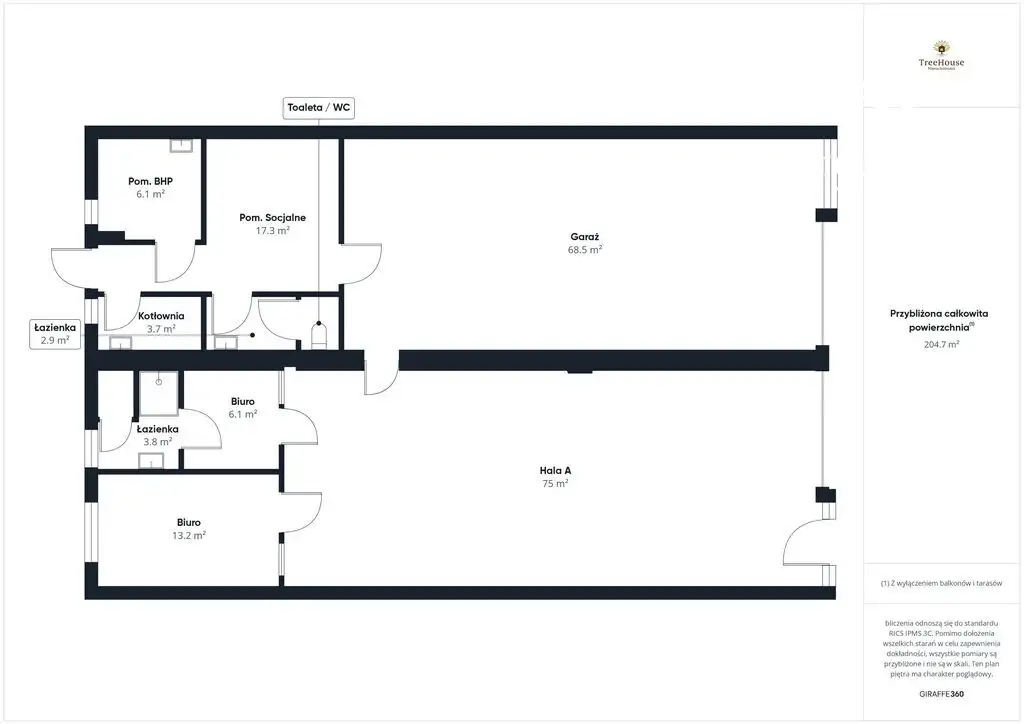
OBIEKT NR 1 - HALA PRODUKCYJNO-USŁUGOWA (204,70 m²)
- Dwie hale: ok. 75 m² i 70 m²
- Biuro główne + drugie biuro
- Strefa socjalna
- Dwie łazienki
- Kotłownia
- Pomieszczenie BHP z dużym zasobnikiem olejowym
- Garaż blaszany dwustanowiskowy na utwardzonym placu z tyłu
Budynek wyremontowany, gotowy do prowadzenia działalności bez nakładów inwestycyjnych.
Sprawdzi się jako siedziba firmy, hala magazynowa, lekka produkcja czy jako baza pod handel wysyłkowy.

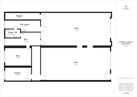
OBIEKT NR 2 – AKTUALNIE WYKORZYSTYWANY JAKO WARSZTAT SAMOCHODOWY(ok. 207 m²)
- Dwie hale warsztatowe (ok. 70 m² każda) z osobnymi bramami
- Biuro 14,5 m² + biuro 11,9 m²
- Magazyny części 8 m² i 16,8 m²
- Pomieszczenie socjalne 12 m²
- Toaleta 3,8 m²
- Utwardzony plac z przodu
– możliwość parkowania nawet 10 aut
Budynek obecnie wynajmowany, możliwość przejęcia z najemcą lub wykorzystania na własne potrzeby.
Idealny na warsztat, usługi, drobną produkcję lub magazyn.

MEDIA I INSTALACJE:
- Prąd trójfazowy
- Woda i kanalizacja miejska
- Ogrzewanie olejowe z nagrzewnicami
- Klimatyzacja w części biurowej
- Internet, monitoring
- Teren ogrodzony, z szerokimi bramami i dobrym dostępem dla pojazdów

INFORMACJE FORMALNE:
- Forma własności: pełna własność budynków
- Grunt: użytkowanie wieczyste
- Księgi wieczyste: prowadzone, bez obciążeń
- Udział w drodze dojazdowej: tak
- Dostępność: jeden lokal dostępny od zaraz, drugi po okresie wypowiedzenia umowy najmu

PODSUMOWANIE:
Dwa niezależne, funkcjonalne obiekty usługowo-produkcyjne w jednej lokalizacji, po generalnym remoncie, z pełną infrastrukturą techniczną i utwardzonym terenem. Bliskość centrum, wygodny dojazd, możliwość kontynuacji najmu lub adaptacji pod własną działalność – to propozycja idealna dla firm szukających kompleksowego zaplecza, jak i inwestorów.

Zapraszamy do kontaktu i umówienia się na prezentację!
Z przyjemnością odpowiemy na wszystkie pytania i pomożemy w przeprowadzeniu procesu zakupu.

Oferta dostępna wyłącznie w naszym biurze – TreeHouse Nieruchomości.
Współpracujemy również z innymi agencjami.

Opiekun oferty:
Adrian Gazda
Tel. 668 490 115
E-mail: [Email protected]



TreeHouse Nieruchomości - Skuteczna Sprzedaż Nieruchomości
ul. Kotańskiego 1, lok. 102, 10-166 Olsztyn
[Email protected]
www.treehouse-nieruchomosci.pl

TreeHouse Nieruchomości - nr 1 w województwie warmińsko-mazurskim w konkursie Lider Otodom 2022


"Niniejsze ogłoszenie nie stanowi oferty w rozumieniu art. 66 par. 1 Kodeksu Cywilnego i ma jedynie charakter informacyjny.
Właścicielem ogłoszenia oraz poszczególnych jego elementów jest TreeHouse Nieruchomości oraz podmioty z nim współpracujące. Wszelkie prawa są zastrzeżone. Kopiowanie, rozpowszechnianie oraz korzystanie z niniejszych materiałów w jakikolwiek inny sposób wykraczający poza dozwolony użytek określony przepisami ustawy z 4 lutego 1994 r. o prawie autorskim i prawach pokrewnych (Dz. U. 1994, nr 24 poz. 83 z późn. zm.) bez pisemnej zgody TreeHouse Nieruchomości lub podmiotów współpracujących jest zabronione i może stanowić podstawę odpowiedzialności cywilnej oraz karnej."

Ogłoszenie wysłane z programu dla biur nieruchomości ASARI CRM (asaricrm.com)



Lokalizacja
Olsztyn
warmińsko-mazurskie
Informacje
Powierzchnia: 412 m2
7 pokoje
Rok budowy: 1976
Numer oferty: 20/12272/OOS
Kontakt
TreeHouse Nieruchomości s.c.
Adrian Gazda
668490115

Podobne oferty

 Olsztyn   1 Maja

Miejsce w hali garażowej 1 Maja 5a Kopernik Park

Olsztyn, 1 Maja

Miejsce parkingowe w budynku przy ul. 1 Maja 5a (Kopernik Park) na sprzedaż o powierzchni ok. 20 m2, szerokość miejsca...

20 m2
55 000 zł
2 750 zł/m2
 Olsztyn   Tracka

Olsztyn Tracka 5 – hala magazyn biura plac

Olsztyn, Tracka

Na sprzedaż funkcjonalny obiekt produkcyjno-usługowy o powierzchni 204,70 m2 położony w dobrze skomunikowanej części przemysłowej Olsztyna – przy ul. Tracka...

205 m2
1 299 000 zł
6 337 zł/m2
 Olsztyn

Atr. obiekt siedziba firmy zakład produkcja DK16

Olsztyn

Oferta sprzedaży bardzo atrakcyjnej nieruchomości inwestycyjnej / produkcyjnej / usługowej położonej w bardzo dobrej lokalizacji w bezpośredniej bliskości Olsztyna, tuż...

1919 m2
2 950 000 zł
1 537 zł/m2