FUNKCJONALNE DOMY W LUTYNI

Lutynia

Dom
139 m2
4 pokoje

999 000 zł

Treść ogłoszenia

OFERTA DEWELOPERSKA

0% PROWIZJI
0%PCC

Zapraszam do zapoznania się z ofertą sprzedaży domów w inwestycji składającej się z dwóch budynków z zabudowie bliźniaczej w podwrocławskiej Lutyni 

Inwestycja cechuje się wysoką jakością użytych materiałów, spokojną okolicą oraz funkcjonalnym i przemyślanym układem wnętrz

Każdy segment o powierzchni 138 m² posiada ogród o powierzchni 180-250m² i garaż oraz miejsce postojowe na podjeździe

Ogrzewanie podłogowe zasilane pompą ciepła w całym domu.

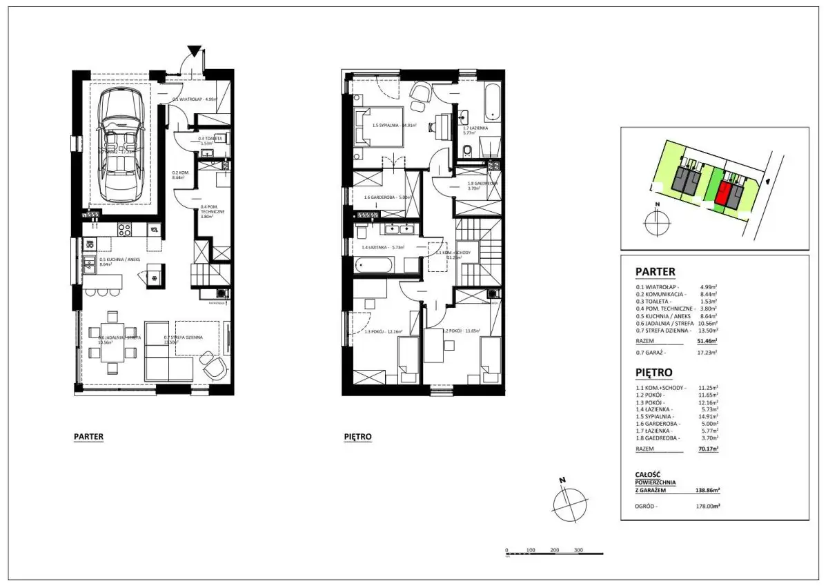
Układ lokalu:
PARTER
Wiatrołap 4,99m²
Przedpokój 8,44m²
Aneksem kuchennym 8,64m²
Jadalnia 10,56m²
Strefa wypoczynkowa 13,5m²
Spiżarnia/ kotłownia 3,80m²
Toaleta 1,53m²
Garaż 17,23m²



PIĘTRO
Korytarz 11.25m²
Pokój 14,91m²
Łazienka 5,77m²
Garderoba 5.00m²
Pokój 12,16m²
Pokój 11,65m²
Garderoba 3,70m²
Łazienka 5,73m²




Zapraszam do kontaktu i na prezentacje.
Oferujemy możliwość wykończenia pod klucz



Michał Cepuch

Tel/WhatsApp 503-365-100



...
Oferta wystawiona przez Biuro nieruchomości Falcon Estate.
Prezentowane w serwisie oferty nie stanowią oferty handlowej w rozumieniu art. 66 Kodeksu Cywilnego i mogą być nieaktualne.
Lokalizacja
Lutynia
dolnośląskie
Informacje
Powierzchnia: 139 m2
4 pokoje
2 piętra w budynku
Rok budowy: 2025
Numer oferty: FE472952
Ogrzewanie
pompa ciepła
Media
kanalizacja
Dojazd
asfalt
Kontakt
Falcon Estate
Michał Cepuch
503365100