Lokal niemieszkalny parter 25 m².

Barczewo , Armii Krajowej

Lokal
25 m2

1 500 zł

Treść ogłoszenia

Lokal handlowo-usługowy o pow. 25 m² o samodzielnym wejściem z zewnątrz. Parter Idealne miejsce pod prowadzenie działalności gospodarczej.
Obejrzyj WIRTUALNY SPACER https://sb360.online/gs5eye (jeśli nie widzisz linku skontaktuj się z pośrednikiem).

LOKALIZACJA:
Budynek położony w Barczewie, w powiecie olsztyńskim, przy jednej z głównych ulic miasta - ul. Armii Krajowej 1B oraz nad deptakiem/parkiem od strony rzeki Pisy z pięknym widokiem na rzekę.
Budynek odsunięty od głównej drogi, w drugiej linii zabudowy.
W sąsiedztwie zabudowa mieszkaniowa oraz liczne punkty handlowo-usługowe.

DZIAŁKA:
Działka o powierzchni 128 m² płaska, z dostępem do drogi publicznej asfaltowej.
Uzbrojona w prąd, (siłę), wodociąg, kanalizację miejską.

BUDYNEK:
Budynek po generalnym remoncie. Na dachu blachodachówka, okna PCV. Budynek docieplony i zrobiona elewacja.
W środku wymienione wszystkie instalacje: elektryczna miedziana, kanalizacyjna, położone ogrzewanie podłogowe z kotła elektrycznego - w każdym lokalu oddzielny kocioł elektryczny - niskie koszty eksploatacji. Kamery, zamontowana instalacja alarmowa.

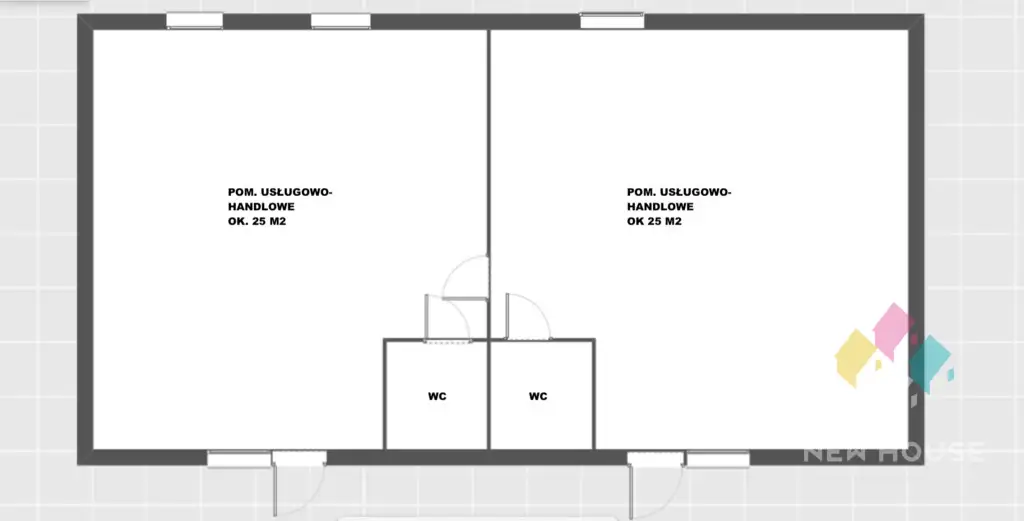
Lokal o powierzchni 25 m² (samodzielny) składa się z:
- pom. handlowo-usługowe z łazienką o pow. ok 25 m² z samodzielnym wejściem od ulicy.

II lokal, z tyłu budynku, niski parter:
- pom. usługowe o pow. ok 50 m²,
- WC,
- WC,
- pom. techniczne
+ duży taras z widokiem na rzekę i park.

STAN PRAWNY/DOSTĘPNOŚĆ:
Pełna własność z KW. Szybki termin przekazania nieruchomości.
Czynsz 1500 zł netto + 23% VAT + opłaty za media.

POŚREDNIK:
Aleksandra Kicka
tel. 512 337 881
E-mail: [Email protected]

Przedstawiona oferta cenowa ma charakter informacyjny, nie stanowi oferty handlowej w rozumieniu art. 66 § 1 Kodeksu Cywilnego.



Właścicielem ogłoszenia wraz z jej elementami jest NewHouse Łukasz Wróbel oraz podmioty współpracujące.
Wszelkie prawa są zastrzeżone, kopiowanie, rozpowszechnianie oraz korzystanie z niniejszych składowych materiałów ogłoszenia w jakikolwiek inny sposób wykraczający poza dozwolony użytek określony przepisami ustawy z 4 lutego 1994 r. o prawie autorskim i prawach pokrewnych (Dz. U. 1994, nr 24 poz. 83 z późn. zm.) bez zgody NewHouse Łukasz Wróbel lub podmiotów współpracujących jest zabronione i może stanowić podstawę odpowiedzialności cywilnej oraz karnej.
Niniejsze materiały stanowią tajemnicę firmy NewHouse Łukasz Wróbel lub podmiotów współpracujących w rozumieniu ustawy z dnia 16 kwietnia 1993 r. o zwalczaniu nieuczciwej konkurencji (Dz. U. z 2003 r., Nr 153, poz. 1503 z późn. zm.).
Niniejsze ogłoszenie nie stanowi oferty w rozumieniu Kodeksu Cywilnego, lecz ma charakter informacyjny.

Ogłoszenie wysłane z programu dla biur nieruchomości ASARI CRM (asaricrm.com)



Lokalizacja
Barczewo
warmińsko-mazurskie
Informacje
Powierzchnia: 25 m2
Rok budowy: 1970
Numer oferty: 1361/6682/OOW
Kontakt
NewHouse Łukasz Wróbel
Aleksandra Kicka
512337881