45m² 2 pokoje spokojne osiedle

Giżycko , Daszyńskiego

Mieszkanie
45 m2
2 pokoje

233 000 zł

Treść ogłoszenia

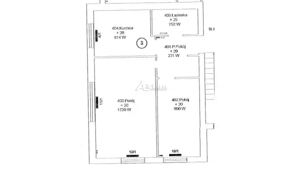
Mieszkanie 2 pokojowe o powierzchni 45 m², zlokalizowane przy ulicy Daszyńskiego 
Kupujący nie płaci prowizji.
Bardzo funkcjonalny rozkład.
Mieszkanie składa się z:
- salonu
- sypialni
- oddzielnej kuchni
- łazienki z WC
- przedpokoju 
- balkon
Do mieszkania przynależy piwnica 4m²
Miejsca parkingowe przed budynkiem.
Forma własności: odrębna własność lokalu.

Ciche i spokojne osiedle, pełna infrastruktura.
W pobliżu przedszkole, szkoła, sklepy, fryzjer.

 Zapraszam na prezentację.










--Treść niniejszego ogłoszenia nie stanowi oferty handlowej w rozumieniu Kodeksu Cywilnego--
Lokalizacja
Giżycko
warmińsko-mazurskie
Informacje
Powierzchnia: 45 m2
2 pokoje
4 piętra w budynku
Rok budowy: 1974
Numer oferty: AX012441
Zalety
domofon
Media
kanalizacja
Dodatkowe zalety
piwnica
Wyposażenie
balkon/taras
Kontakt
AXTON Nieruchomości
Mirosław Treszczyński
791333444

Podobne oferty

 Giżycko   I Dywizji Im. T. Kościuszki

Mieszkanie pod Inwestycję

Giżycko, I Dywizji Im. T. Kościuszki

Sprzedam mieszkanie-lokal  idealne na kancelarię, gabinet lub siedzibę firmy , świetna lokalizacja pierwsze piętro w małej kamienicy .Mieszkanie-lokal  składa się...

57 m2
2 pokoje
249 000 zł
4 368 zł/m2
 Giżycko   Konarskiego

Mieszkanie 2 pokojowe w centrum

Giżycko, Konarskiego

Na sprzedaż mieszkanie w kamienicy do własnej aranżacji! Przedmiotem sprzedaży jest mieszkanie w kamienicy w Giżycku przy ul. Konarskiego 9...

40 m2
2 pokoje
199 000 zł
4 975 zł/m2
 Giżycko   Daszyńskiego

Mieszkanie 2- pokojowe

Giżycko, Daszyńskiego

Rozkładowe, 2-pokojowe mieszkanie z oddzielną kuchnią!!LOKALIZACJAOferuję Państwu na sprzedaż mieszkanie po remoncie  2 - pokojowe z oddzielną kuchnią położone przy...

41 m2
2 pokoje
305 000 zł
7 439 zł/m2