Jasny dom: 5Pokoi 2łazienki pompa Góra Kalwaria

Krzaki czaplinkowskie

Dom
170 m2
5 pokoi

1 149 800 zł

Treść ogłoszenia

>Bez prowizji od Kupującego!< Nowa niższa cena! Okazja!
Szukasz wygodnego, bezpiecznego domu do, którego możesz wprowadzić się bez dodatkowych nakładów? Ten dom jest właśnie dla Ciebie.

     Zachwyć się nowoczesnym i funkcjonalnym domem, który jest wykańczany z dbałością o każdy szczegół. Prace trwające na piętrze i wokół domu sprawią, że ta oferta będzie jeszcze bardziej atrakcyjna!
 Dom jest zaprojektowany w zabudowie bliźniaczej (połączony garażami), położony niespełna 3km od centrum Góry Kalwarii.

*Przestrzeń stworzona dla Ciebie i Twojej Rodziny
Dom - 170m² pow. całkowitej, 144m² pow. mieszkalnej.
Działka-1209m² wraz z drogą dojazdową, ogród- 680m².
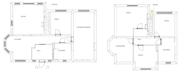
Na dom składa się:
Parter:
- Przestronny, jasny salon z wyjściem na taras i do ogrodu,
- Oddzielna, duża kuchnia z jadalnią,
- Gabinet/sypialnia jak również pokój gościnny,
- Łazienka z prysznicem i ukrytą wnęką na pralkę i suszarkę,
- Wiatrołap z częścią powitalną i miejscem na szafę,
- Korytarz, garaż/kotłownia .
Piętro:
- Sypialnia główna z garderobą i balkonem,
- Dwie sypialnie (jedna z balkonem),
- Garderoba (przy małej aranżacji może być dodatkowym pokojem),
- Łazienka z prysznicem, wanną i dwiema umywalkami,
- Hall z wejściem na strych (ocieplony strop oraz dodatkowo dach)

*Nowoczesne rozwiązania
Pompa ciepła jako źródło ogrzewania całego budynku (nowa, Panasonic do niskich temperatur z zasobnikiem na wodę 300l),  możliwość instalacji paneli fotowoltaicznych a także kominka. System alarmowy( współpraca z firmą ochroniarską). Odbiór w 2025r.

* Lokalizacja z szybkim dostępem do miejskich udogodnień
Krzaki Czaplinkowskie znajdują się zaledwie 3km od centrum Góry Kalwarii (przedszkola, szkoły, przychodnie lekarskie, apteki, liczne sklepy i restauracje oraz Miejski Zespół Rekreacyjno- Basenowy). W samej miejscowości mamy sklep spożywczy, siłownie, kompleks sportowy (boiska, korty tenisowe), KS Nadstal.

* Dogodna Komunikacja
Połączenie komunikacją miejską PKP, PKS/L25 z Górą Kalwarią i Piasecznem. Autobusy szkolne. Połączenie kolejowe z Warszawą. ZTM 742 do Konstancina. Planowana droga DK79 połączy Górę Kalwarię z S2 w Piasecznie. 

* Czy ten dom jest dla Ciebie i Twoich najbliższych?
Dla osób ceniących sobie niezależność, potrzebujących przestrzeni, kochających naturę, uwielbiających spacery po lesie lub jazdę na rowerze przez niekończącą się zieleń -TAK
Nie czekaj, już dziś umów się na prezentację!
Lokalizacja
Krzaki czaplinkowskie
mazowieckie
Informacje
Powierzchnia: 170 m2
5 pokoje
1 piętro w budynku
Rok budowy: 2025
Numer oferty: 970194
Zalety
domofon
Ogrzewanie
pompa ciepła
Wyposażenie
balkon/taras
Kontakt
Wish House
Marta Michalska
729 836 155