Baranowo 61 81 m² 3 pokoje balkon garaż

Baranowo

Mieszkanie
61 m2
3 pokoje

255 000 zł

Treść ogłoszenia

3-pokojowe mieszkanie na I piętrze, położone na trasie Mrągowo - Mikołajki. Idealne dla pary, małej rodziny. Sprawdzi się również inwestycyjnie.
Link do wirtualnego spaceru: https://sb360.online/j0cj97 (jeśli nie widzisz linku skontaktuj się z pośrednikiem).

LOKALIZACJA
Mieszkanie zlokalizowane jest w spokojnej niewielkiej miejscowości Baranowo, w gminie Mikołajki.
Miejscowość położona jest w odległości ok. 10 km od Mikołajek, ok. 13 km od Mrągowa.
Dookoła zabudowa wielorodzinna (niskie bloki) i jednorodzinna.
W pobliżu Park, szkoła, kościół, sklep spożywczy osiedlowy oraz Dino, paczkomat, przystanek autobusowy.
W najbliższej okolicy lasy, jeziora, baza turystyczna noclegowa, pełna infrastruktura miejska w Mrągowie i Mikołajkach.

BUDYNEK
Rok budowy 1985, stan techniczny budynku dobry, budynek 1 piętrowy z poddaszem użytkowym.
Budynek po termomodernizacji (ocieplenie budynku oraz wykonanie nowej elewacji).
Wokół zadbana zieleń. Miejsca parkingowe ogólnodostępne.
Sąsiedztwo spokojne.

MIESZKANIE
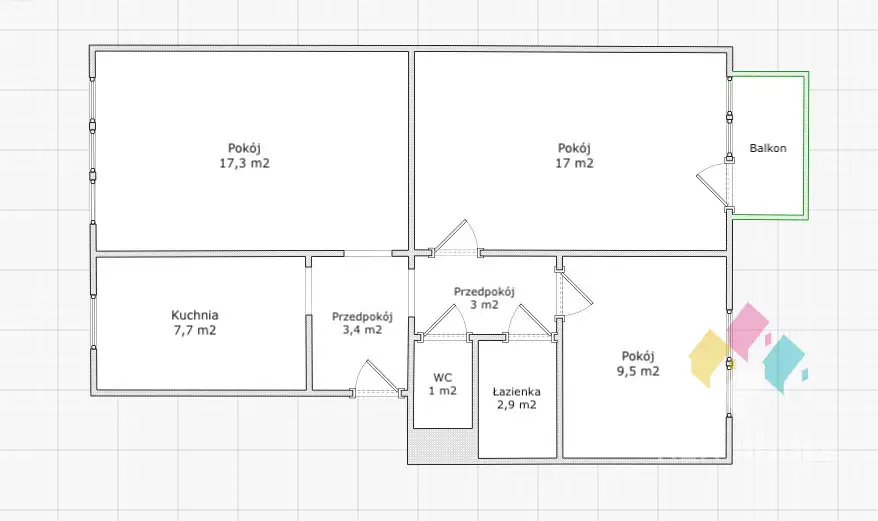
Pow. użytkowa 61,81 m², I piętro, stan techniczny mieszkania - do remontu.
Mieszkanie dwustronne, bardzo ustawne, z balkonem.
Rozkład pomieszczeń:
- 3 oddzielne pokoje (9,5 m², 17 m², 17,3 m²)
- oddzielna kuchnia (7,7 m²)
- korytarz z szafą w zabudowie (6,4 m²)
- łazienka z wanną (2,9 m²)
- WC (1 m²)
Ogrzewanie miejskie – kotłownia na osiedlu.
Okna drewniane. Na podłodze terakota oraz panele.
Do mieszkania przynależy piwnica o pow. 18,06 m² oraz pomieszczenie garażowe o pow. 17,76 m².
Duży strych - do wspólnego korzystania wraz z innymi właścicielami mieszkań w budynku.

STAN PRAWNY/DOSTĘPNOŚĆ/OPŁATY
Pełna własność z KW.
Szybki termin wydania.
Czynsz administracyjny wraz z funduszem remontowym wynosi 1050 zł.
Budynkiem zarządza Wspólnota Mieszkaniowa.
Podatek od nieruchomości ok. 450 zł rocznie.

POŚREDNIK:
Marlena Gwiazda
tel: 797-480-150
e-mail: [Email protected]
Licencja pośrednika nr 31504.

Przedstawiona oferta cenowa ma charakter informacyjny, nie stanowi oferty handlowej w rozumieniu art. 66 § 1 Kodeksu Cywilnego.



Właścicielem ogłoszenia wraz z jej elementami jest NewHouse Łukasz Wróbel oraz podmioty współpracujące.
Wszelkie prawa są zastrzeżone, kopiowanie, rozpowszechnianie oraz korzystanie z niniejszych składowych materiałów ogłoszenia w jakikolwiek inny sposób wykraczający poza dozwolony użytek określony przepisami ustawy z 4 lutego 1994 r. o prawie autorskim i prawach pokrewnych (Dz. U. 1994, nr 24 poz. 83 z późn. zm.) bez zgody NewHouse Łukasz Wróbel lub podmiotów współpracujących jest zabronione i może stanowić podstawę odpowiedzialności cywilnej oraz karnej.
Niniejsze materiały stanowią tajemnicę firmy NewHouse Łukasz Wróbel lub podmiotów współpracujących w rozumieniu ustawy z dnia 16 kwietnia 1993 r. o zwalczaniu nieuczciwej konkurencji (Dz. U. z 2003 r., Nr 153, poz. 1503 z późn. zm.).
Niniejsze ogłoszenie nie stanowi oferty w rozumieniu Kodeksu Cywilnego, lecz ma charakter informacyjny.

Ogłoszenie wysłane z programu dla biur nieruchomości ASARI CRM (asaricrm.com)



Lokalizacja
Baranowo
warmińsko-mazurskie
Informacje
Powierzchnia: 61 m2
3 pokoje
1 piętro w budynku
Rok budowy: 1985
Numer oferty: 2262/6682/OMS
Powierzchnia dodatkowa
komórka lokatorska
Okolica
szkoła podstawowa
park
kościół
Kuchnia
oddzielna
Dodatkowe zalety
piwnica
Kontakt
NewHouse Łukasz Wróbel
Marlena Gwiazda
797480150