Działka budowlana w Charbrowie 10 km od Łeby

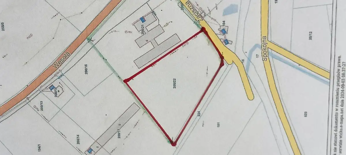
Charbrowo , Zaciszna

Działka
11394 m2

626 500 zł

Treść ogłoszenia

Nowa, niższa cena!
Działka pod zabudowę jednorodzinną, usługową położona w Charbrowie, koło Łeby, przy ulicy Zacisznej, w gminie Wicko, w powiecie lęborskim o powierzchni 11 394 m².
Możliwość dokupienia działki zabudowanej sąsiedniej, wtedy uzyskuje się obszar 24 000 m².(cena za całość 53 zł/m²)
Nieruchomość objęta jest Miejscowym Planem Zagospodarowania Przestrzennego:
- przeznaczenie podstawowe: zabudowa mieszkaniowa jednorodzinna i zabudowa usługowa;
- przeznaczenie uzupełniające: obiekty produkcyjne;
- parametry i wskaźniki kształtowania zabudowy oraz zagospodarowania terenu:
a) maksymalna powierzchnia użytkowa obiektów produkcyjnych - 500 m²,
b) zakaz realizacji produkcji związanej z przemysłem chemicznym oraz składowaniem i przetwarzaniem odpadów,
c) forma zabudowy - wolnostojąca,.
Działkę można podzielić na mniejsze budowlane!
Prąd i woda na działce, szambo o pojemności ok. 20000 m3, w roku 2025 planowana jest budowa kanalizacji.
Kształt działki to trapez prostokątny, teren równy, na części działki znajdują się 3 budynki gospodarczo-usługowe, teren prowizorycznie ogrodzony.
Do Łeby ok.9 km, do Lęborka ok.20 km.
Chętnie Cię oprowadzę i opowiem o szczegółach.
Serdecznie zapraszam na prezentację!
Pośrednik odpowiedzialny za realizację umowy upr. zaw. Nr 16346. OFERUJEMY POMOC W UDZIELANIU KREDYTÓW. PORÓWNAJ OFERTĘ 26 BANKÓW. ZADZWOŃ ! !
Lokalizacja
Charbrowo
pomorskie
Informacje
Powierzchnia: 11394 m2
Numer oferty: EC880241
Ogrodzenie
brak
Dojazd
asfalt
Kontakt
Biuro Nieruchomości Gruszka
Mariusz Gruszka
698454484

Podobne oferty

 Charbrowo

Działka budowlana w Charbrowie

Charbrowo

Nieruchomość w województwie pomorskim, w gminie Wicko w miejscowości Charbrowo.Działka o powierzchni 1138m2 położona 8 km od nadmorskiego kurortu jakim...

1139 m2
139 000 zł
122 zł/m2
 Charbrowo

Działka

Charbrowo

Na podstawie art. 38 ustawy z dnia 21 sierpnia 1997 r. o gospodarce nieruchomościami (t.j. Dz. U. z 2023 r....

m2
112 000 zł
 Charbrowo

Działka

Charbrowo

Na podstawie art. 38 oraz art. 39 ustawy z dnia 21 sierpnia 1997 roku o gospodarce nieruchomościami (t.j. Dz. U....

m2
80 000 zł