Mieszkanie 3 pokojowe na 5 piętrze7

Lublin

Mieszkanie
49 m2
3 pokoje

529 864 zł

Treść ogłoszenia

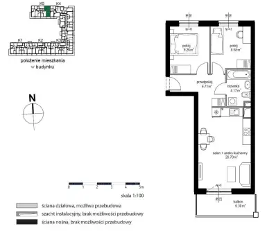
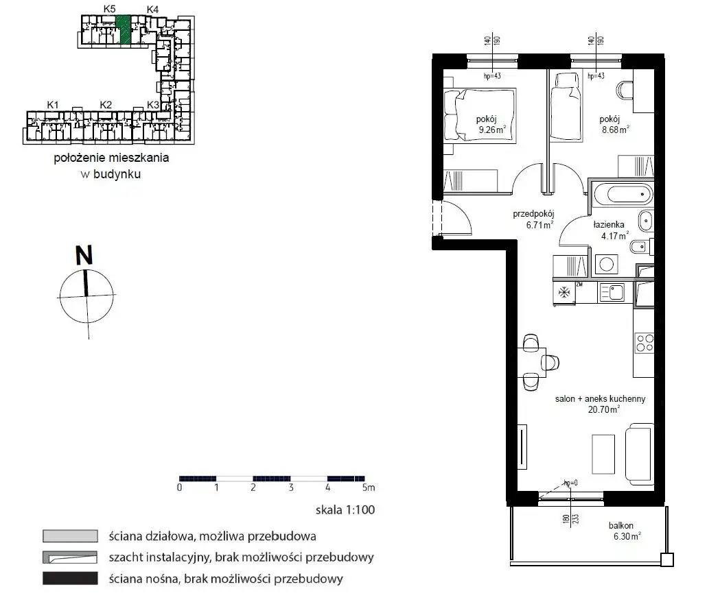
Trzypokojowe mieszkanie o powierzchni projektowej 49,52 m² na 5 piętrze w 7 piętrowym bloku na Czechowie.

Opis mieszkania:
Pokój dzienny z aneksem kuchennym o pow. 20,70 m² z wyjściem na balkon o pow. 6,30 m²,
Pokój o pow. 9,26 m² i 8,68 m²,
Łazienka o pow. 4,17 m²
Przedpokój o pow. 6,71 m²

Dodatkowe informacje:
Miejsce postojowego w garażu podziemnym w cenie 45 000 zł.
Komórka lokatorska na piętrzę 

MEDIA:
ogrzewanie sieć miejska, woda, prąd

Atuty inwestycji:
- nowoczesna architektura, technologia i ergonomiczne rozwiązanie,
- bliskość przyrody,
- plac zabaw,
- komunikacja,
- wewnętrzne patio,

Lokalizacja: bardzo dobrze rozwinięta infrastruktura osiedla, w pobliżu uczelnie wyższe, szkoły, przedszkola, żłobki, sklepy spożywcze, galerie handlowe, przychodnie lekarskie, przystanki autobusowe.

*jeśli potrzebujesz pomocy eksperta w dobraniu finansowania zakupu nieruchomości, skontaktuj się z opiekunem oferty.

Termin realizacji: grudzień 2026

Ofertę przygotowała i prezentuje:
Patrycja Czarnik 791689906
Licencjonowany Pośrednik Nieruchomości
Franczewska Nieruchomości

Zapraszam do kontaktu oraz na prezentację nieruchomości!

Treść niniejszego ogłoszenia nie stanowi oferty handlowej w rozumieniu Kodeksu Cywilnego, ale jest zaproszeniem do współpracy. Dokładamy wszelkich starań, aby każda z ofert była rzetelnie sprawdzona oraz aktualna.
W ofercie nie są przedstawione koszty obsługi transakcji, która wykonywana jest w profesjonalny sposób i zapewnia Państwu pełne bezpieczeństwo. Więcej unikalnych ofert w podobnych kryteriach znajdą Państwo na naszej stronie.
Lokalizacja
Lublin
dzielnica Czechów górny
lubelskie
Informacje
Powierzchnia: 49 m2
3 pokoje
7 pięter w budynku
Rok budowy: 2026
Numer oferty: 543627
Wyposażenie
balkon/taras
Kontakt
FRANCZEWSKA NIERUCHOMOŚCI ADRIANNA FRANCZEWSKA-KRUPA SPÓŁKA KOMANDYTOWA
Patrycja Czarnik
791 689 906

Podobne oferty

 Lublin

3 pokoje Lublin BronowiceFelin

Lublin

Lokal inwestycyjny o pow. 41,66 m2 na 2 p. / 5 p. okolice ul. Droga Męczenników Majdanka. Zestawienie powierzchni:Pomieszczenie dziennego...

41 m2
3 pokoje
415 500 zł
10 134 zł/m2
 Lublin

3 pokojowe mieszkanie Ponikwoda Dożynkowa

Lublin

Zapraszam na prezentację!Czteropokojowe mieszkanie o powierzchni projektowej 60,49 m2 na 2 piętrze w 3 piętrowym budynku. Opis mieszkania: Pokój dzienny ...

60 m2
3 pokoje
620 795 zł
10 347 zł/m2
 Lublin   Ignacego Daszyńskiego

3 pokoje balkon piwnica

Lublin, Ignacego Daszyńskiego

Oferta dostępna wyłącznie za pośrednictwem Franczewska NieruchomościPrzestronne, trzypokojowe mieszkanie o pow. 63,30m2 na III piętrze / z IV w bloku...

63 m2
3 pokoje
538 000 zł
8 540 zł/m2