Piękny dom na Kaszubach Rybaki Egiertowo

Rybaki

Dom
74 m2
4 pokoje

585 000 zł

Treść ogłoszenia

OKAZJA parterowy dom blisko Trójmiasta

PARTEROWY dom z dużą działką i słonecznym ogrodem | Rybaki, gm. Somonino

Na sprzedaż komfortowy, parterowy dom położony w malowniczej miejscowości Rybaki, w gminie Somonino, zaledwie kilka minut od Egiertowa. To idealna propozycja dla osób poszukujących spokoju, przestrzeni i bliskości natury, a jednocześnie zależy im na dobrej komunikacji z Trójmiastem - dojazd do Gdańska czy Gdyni zajmuje około 40-45 minut, co czyni tę lokalizację wyjątkowo atrakcyjną również dla osób pracujących w mieście.

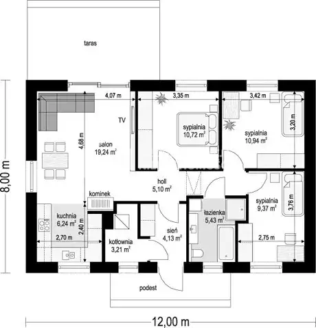
Dom został zaprojektowany z myślą o wygodzie codziennego życia. Całość znajduje się na jednym poziomie, co oznacza brak barier komunikacyjnych - to doskonałe rozwiązanie zarówno dla osób starszych, jak i rodzin z małymi dziećmi. Wnętrze składa się z trzech ustawnych sypialni, przestronnego salonu połączonego z aneksem kuchennym, funkcjonalnego przedpokoju oraz łazienki i kotłowni. Strefa dzienna została zaprojektowana z myślą o maksymalnym komforcie - z dużym przeszkleniem i wyjściem na obszerny, południowo usytuowany taras, który zapewnia mnóstwo słońca przez cały dzień. To idealne miejsce na poranną kawę, rodzinne spotkania czy popołudniowy relaks z książką.

Dom położony jest na ogrodzonej działce o powierzchni 1016 m², która daje wiele możliwości zagospodarowania - można tu stworzyć piękny ogród, miejsce zabaw dla dzieci czy strefę rekreacyjną z altaną lub letnią kuchnią. Teren jest zadbany, a dojazd odbywa się utwardzoną drogą gruntową, co zapewnia wygodny dostęp niezależnie od pory roku. Media, takie jak prąd i woda, zostały już doprowadzone do nieruchomości.

Rybaki to spokojna, zielona okolica otoczona lasami i jeziorami, które zachęcają do spacerów, jazdy na rowerze czy spędzania czasu na świeżym powietrzu. W samej miejscowości znajduje się szkoła podstawowa, co czyni tę ofertę jeszcze bardziej atrakcyjną dla rodzin z dziećmi. W niedalekim Egiertowie znajdują się sklepy, punkty usługowe oraz przystanki komunikacji publicznej.

To idealne miejsce dla osób, które pragną uciec od miejskiego zgiełku, nie rezygnując z dostępu do infrastruktury i możliwości sprawnego dojazdu do Trójmiasta. Zapraszam do kontaktu i umówienia się na prezentację!
SUPER CENA
Do ceny należy doliczyć koszt aktu notarialnego oraz koszt wynagrodzenia dla agencji.


zapraszam na prezentację
Lokalizacja
Rybaki
pomorskie
Informacje
Powierzchnia: 74 m2
4 pokoje
1 piętro w budynku
Rok budowy: 2025
Numer oferty: DJ455808
Kontakt
SIECIOWA AGENCJA NIERUCHOMOŚCI DJ Renoma
Małgorzata Chmielewska
607604603