Ogłoszenie którego szukasz jest już nieaktualne. Zapraszamy do zapoznania się z podobnymi ofertami.

 Wadowice   Jasna

Mieszkanie

Wadowice, Jasna

Planujesz zakup mieszkania? Ta oferta jest dla Ciebie! Oferujemy mieszkanie nowoczesne 2-wu pokojowe (z aneksem kuchennym, lub oddzielną kuchnią) pow....

33 m2
2 pokoje
246 000 zł
7 455 zł/m2
 Wadowice   Jasna

Mieszkanie

Wadowice, Jasna

Przytulna kawalerka w nowym budownictwie, gotowa do zamieszkania. Znakomita oferta również dla inwestorów pod wynajem. Zlokalizowane jest na IIp, składa...

26 m2
1 pokój
225 000 zł
8 654 zł/m2
 Wadowice   Jasna

Mieszkanie

Wadowice, Jasna

Planujesz zakup mieszkania? Ta oferta jest dla Ciebie! Oferujemy nowoczesne 3 pokojowe (ostatnie 3 pokojowe z 2-ma ogródkami) mieszkanie (z...

56 m2
3 pokoje
478 000 zł
8 536 zł/m2
Wadowice ,  Jana Matejki
Wadowice ,  Jana Matejki   2
Wadowice ,  Jana Matejki   3
Wadowice ,  Jana Matejki   4
Wadowice ,  Jana Matejki   5
Wadowice ,  Jana Matejki   6
Wadowice ,  Jana Matejki   7
Wadowice ,  Jana Matejki   8
Wadowice ,  Jana Matejki   9
Wadowice ,  Jana Matejki   10

Mieszkanie

Wadowice , Jana Matejki

Mieszkanie
40 m2
2 pokoje

335 000 zł

Treść ogłoszenia

Zamieszkaj na wyjątkowym osiedlu na pograniczu Wadowic i Kleczy Dln. wśród zieleni, wody w spokojnej dzielnicy na Zaskawiu. Odbiór mieszkania jeszcze w tym roku.
Pięknie położone 2-wu pokojowe z dużym balkonem od strony południowej. Mieszkanie znajduje się w przytulnym leśnym otoczeniu, jak widać na fot.
ŁADNIE I ZDROWO MIESZKAĆ, masz to u nas, budujemy z najzdrowszych materiałów (cegła, wełna mineralna skalna).
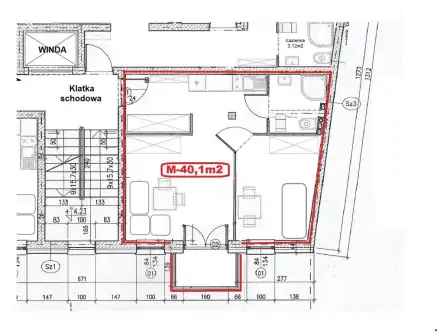
Oferta dotyczy mieszkania o pow. 40,10m² z balkonem, w ekskluzywnym segmencie nr 5, który będzie wyposażony w windę.
Oferowany lokal znajduje się na IIp. ( jest oznaczony w projekcie na czerwono). Cena mieszkania w stanie deweloperskim wynosi 335.000,-zł. Do mieszkania przynależna piwnica o pow. 5m², możliwe jest dokupienie garażu podziemnego o pow. 20m² w cenie promocyjnej 55.000,-zł (do wyczerpania). Mieszkanie niniejsze składa się z salonu z aneksem kuchennym i balkonem, przedpokoju, sypialni, i łazienki. Z własnością mieszkania wiąże się opłata eksploatacyjna za utrzymanie mieszkania, wynosi ona 340,-zł, pokrywa między innymi: ogrzewanie, opłatę remontową, konserwację, sprzątanie i oświetlenie części wspólnych. Daje ona przysłowiowy „święty spokój” dla właściciela mieszkania, a wiadomo, że koszty takie ponosi każdy właściciel mieszkania. Media płatne z indywidualnych subliczników.

Dostępne w segm. nr 5 są jeszcze mieszkania:
1-pokojowe 25,74m²
2-pokojowe, 28,67m²
2-pokojowe 42,10m²
3-pokojowe 56,2m²

Również w pobliskim APARTAMENTOWCU dostępne są:
2-pokojowe 27,2m² z ogródkiem 35m²
2-pokojowe, 40,05m²
3-pokojowe 56,5m² z ogródkiem 180m²
Cena za m² pow. mieszkania zależy od położenia, kondygnacji i powierzchni, wynosi od 7800,- do 11.000,- za m²

Zapraszamy do obejrzenia lokalizacji segmentu nr 5, lub sąsiedniego Apartamentowca, oraz infrastruktury osiedla. Znakomitym dodatkiem do całości jest możliwość korzystania w pobliskim parku z basenów dla dorosłych i dzieci (od czerwca w nowej lokalizacji w parku), stawu kąpielowego i piaszczystej plaży, oraz innych atrakcji.
ŁADNIE I ZDROWO MIESZKAĆ, masz to u nas na os. Nad Stawem, budujemy z najzdrowszych materiałów (cegła, wełna mineralna skalna, drewno).
Firmy: SORDYL 2 i WADOINWEST Sp. z o.o. realizujące budowę osiedla, posiadają ponad 20 letnie doświadczenie w budownictwie mieszkaniowym a osiedle budują wyłącznie na własnych terenach budowlanych z najzdrowszych i najnowocześniejszych materiałów budowlanych.
Prezentacja mieszkań i atrakcji osiedla w biurze inwestora (po wcześniejszym umówieniu spotkania pod tel. 504--076--794)
Oferta przeznaczona jest dla nabywców indywidualnych, oraz inwestorów pod wynajem.
Oferta niniejsza dotyczy stanu wykończenia deweloperskiego, za wykończenie pod klucz doliczana jest 15% dopłata
Oferujemy również za dodatkową odpłatnością: garaże murowane (60.000,-zł), własnościowe stanowiska parkingowe (20.000,-zł), w ramach zakupu mieszkania cena niższa o 20%.
Inne atrakcje lokalizacyjne osiedla:.
Os. Nad Stawem położone jest w idealnym miejscu do zamieszkania 2,5 km od wadowickiego rynku, co znakomicie niweluje miejski zgiełk. Rewelacją osiedla jest przyległy park wkomponowany harmonijnie w osiedle. Osiedle zostało zaprojektowane w ten sposób, aby prócz potrzeb mieszkaniowych, każdy mógł odpocząć i spędzić wolny czas przyjemnie z wykorzystaniem szeregu atrakcji które wplecione są w otoczenie osiedla. Mamy w parku do dyspozycji ścieżki: spacerowe, biegowe, rowerowe. Są miejsca do grillowania, palenia ognisk, spotkań i imprez plenerowych z przyjaciółmi. Park dysponuje własnym jeziorkiem ze źródlaną wodą i prawdziwą kameralną plażą piaszczystą. Są również baseny dla dzieci i dorosłych, co czyni to osiedle wyjątkowym. Ponadto dla wędkarzy jest staw do wędkowania. Są place zabaw dla dzieci i młodzieży, z różnymi urządzeniami zabawowymi, boiska do piłki nożnej i siatkowej, siłownia plenerowa. Funkcjonuje na osiedlu market spożywczy w którym prócz codziennych zakupów możesz w sezonie letnim kupić tradycyjne lody na gałki. Do osiedla jest bardzo dobry dojazd, dwie drogi dojazdowe, miejsca parkingowe na miejscu. Blisko jest szkoła, przedszkole, przystanek autobusowy i kolejowy (piechotą 15min.). Projektant osiedla ponadto nieustannie udoskonala tereny rekreacyjne osiedla. Mieszkając tutaj możesz zapomnieć o samochodzie, gdyż wszystko masz na miejscu w zasięgu Twoich nóg. Możesz tu doskonale spędzić czas. Tutaj masz znakomity start na weekendy, a jest gdzie jechać i wszędzie blisko. Np. wypady w góry, czy nad jezioro Mucharskie, wyjazdy: Kraków, Bielsko-B., narty w Zakopanem, Zawoi, Rzykach. Parki rozrywki: Energylandia Zator, Park miniatur i dinolandia Inwałd oraz Zator, wędkowanie nad okolicznymi stawami, no i same Wadowice, Kalwaria Zeb. Czy Sucha Besk. I wiele innych. Chcesz jechać dalej?, żaden problem, na lotnisko w Balicach masz 35min. samochodem.
Zapraszamy na wizję lokalną i prezentację osiedla do biura inwestora życząc udanych życiowych decyzji.
Biuro sprzedaży: SORDYL 2, ul. Jasna 10, 34-100 Wadowice w godz. 9:00-17:00. Prosimy o wcześniejsze umówienie wizyty pod tel. 504--076--794
Informacja doraźna możliwa od 6:00-22:00 w kasie marketu ZASKAWIAK ul. Jasna 10, tel. 504--076--794



Kontakt:
Beata Sordyl
tel: 504076794
[Email protected]


Ogłoszenie wysłane z programu dla biur nieruchomości ASARI CRM (asaricrm.com)



Lokalizacja
Wadowice
małopolskie
Informacje
Powierzchnia: 40 m2
2 pokoje
3 piętra w budynku
Rok budowy: 2024
Numer oferty: 11575/3186/OMS
Kuchnia
w aneksie
Dodatkowe zalety
piwnica