Grunt inwestycyjny - ok. 6000 PUMu

Rybnik , Narutowicza

Działka
16356 m2

2 599 000 zł

Treść ogłoszenia

Oferta skierowana dla inwestora, który poszukuje gruntu w dobrej lokalizacji, ze wszystkimi mediami.


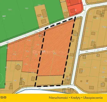
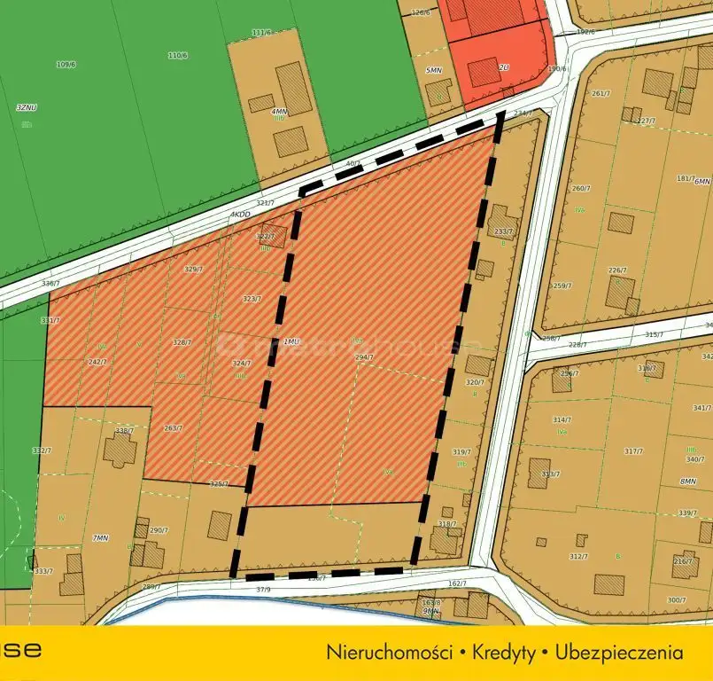
Na sprzedaż płaska działka w kształcie zbliżonym do prostokąta (213x98) o pow. 16356 m², usytuowana w dzielnicy NIEWIADOM.

Nieruchomość objęta MPZP według, którego działka składa się z:
- Terenów 1MU - teren zabudowy mieszkaniowo-usługowej
- Terenów 3.MW - tereny zabudowy mieszkaniowej jednorodzinnej.


Parcela z takimi możliwościami sprawia, że jest to świetna oferta dla inwestora, np. pod DEWELOPERKĘ.
Miejscowy plan pozwala na PUM ponad 5000 m² - według wstępnego rozrysu zabudowy jednorodzinnej bliźniaczej lub ponad 6000 m² - według wstępnego rozrysu zabudowy jednorodzinnej szeregowej.



Parcela jest zadbana, regularnie koszona oraz bez jakichkolwiek drzew, co pozwoli na ograniczenie czasu i finansów na wstępnym etapie budowy.


Dostępne są wszystkie media. W drodze dojazdowej poprowadzona jest WODA, PRĄD, GAZ i KANALIZACJA.
Dodatkowo na działce znajduje się również czynna studnia.

Dojazd odbywa się bezpośrednio z dwóch ulic publicznych:
- Od północy - Ks. Piotra Skargi
- Od południa - Narutowicza
Łącznie przygotowane zostały TRZY WJAZDY, które oszczędzą sporo formalności na start.


Korzystna lokalizacja oferuje bliskość drogi regionalnej PSZCZYNA-RACIBÓRZ, zabytkowej kopalni Ignacy oraz licznych usług i sklepów.

Czy wiesz, że możemy przygotować dla Ciebie prezentację on-line nieruchomości? Skontaktuj się z naszym Agentem i zapytaj o szczegóły.

Pomimo, iż Doradcy Metrohouse przykładają szczególną staranność do rzetelnego prezentowania informacji o nieruchomości, nie zawsze jest możliwa weryfikacja wszystkich danych przekazanych od osób trzecich. Niniejsza prezentacja oferty nie jest ofertą w rozumieniu Kodeksu Cywilnego i ma charakter wyłącznie informacyjny.
Lokalizacja
Rybnik
śląskie
Informacje
Powierzchnia: 16356 m2
Numer oferty: SGRUKO444
Ogrodzenie
mieszane
Kontakt
METROHOUSE
Jan Kazimierczak
+48699585357

Podobne oferty

 Rybnik   Jabłoniowa

Działka 2057 m² cisza zieleń świetna lokalizacja

Rybnik, Jabłoniowa

Działka budowlana 2057 m² cisza, spokój i świetna lokalizacja - ul. Jabłoniowa! Na sprzedaż atrakcyjna działka budowlana o powierzchni 2057...

2057 m2
320 000 zł
156 zł/m2
 Rybnik   Krzywa

Działka

Rybnik, Krzywa

Zapraszam Państwa do sekcji suchych faktów :) Powierzchnia: 1917 m², po odjęciu pasa technicznego przy wschodniej granicy 1622 m² (nie...

m2
350 000 zł
 Rybnik   Bratków

Parcela 800 m² blisko zalewu Orzepowice

Rybnik, Bratków

Szukasz miejsca pod budowę wygodnego domu w spokojnej, świetnie skomunikowanej części Rybnika? Ta działka to propozycja, która łączy idealny metraż,...

800 m2
264 000 zł
330 zł/m2