Działka budowlana Bysław 1111 m²

Bysław

Działka

149 000 zł

Treść ogłoszenia

Na sprzedaż działka budowlana w miejscowości Bysław, gmina Lubiewo, powiat tucholski, województwo kujawsko - pomorskie, w Borach Tucholskich.

Okolica słynie z pięknych krajobrazów, które tworzą rozległe lasy i jeziora oraz rozwiniętej infrastruktury agroturystycznej.
Świeże powietrze, bliskość natury, to wizytówka tego miejsca.

Szczegóły oferty:
- Powierzchnia działki: 1111 m²
- wydane warunki zabudowy oraz aktualne pozwolenie na budowę,
- rozpoczęta budowa - fundamenty widoczne na zdjęciach.

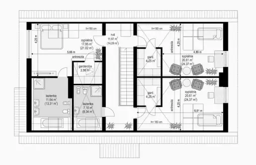
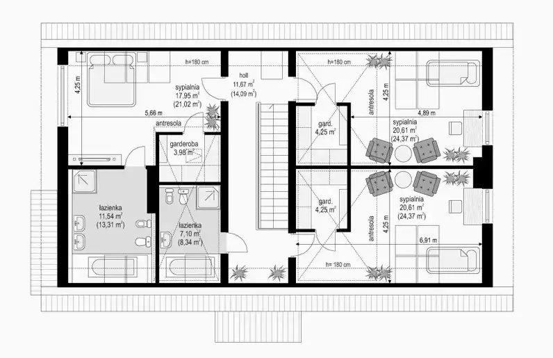
Projekt domu wykonany przez Extradom: WAH1075.

Powierzchnia projektowanego domu to: 202,94 m².

Media:
- Sieć energetyczna  na działce,
- Sieć wodociągowa w drodze przed działką,
- Sieć kanalizacyjna w drodze przed działką.

Dojazd do działki odbywa nieutwardzoną gminną.

Odległości :
• Jezioro Bysławskie 1,5 km, 
• Sklep Dino 600 m,
• Cekcyn 7 km,
• Tuchola 14 km.

Atuty prezentowanej nieruchomości:
- Doskonała lokalizacja - kameralne osiedle.
- Niewielka odległość od pełnej infrastruktury w Bysławiu, gdzie znajdują się szkoła, przedszkole, ośrodek zdrowia, sklepy spożywcze, przemysłowe, poczta oraz kościół

Zadzwoń i umów się na prezentację nieruchomości.

* Pomagamy również w formalnościach przy budowie domu, wydaniu warunków zabudowy, współpracujemy z geodetą i projektantami, kierownikiem budowy i innymi instytucjami, aby pomóc w budowie Twojego wymarzonego domu.
* Przeprowadzimy Cię przez cały proces zakupu nieruchomości, zweryfikujemy oraz przygotujemy wszystkie dokumenty potrzebne do sfinalizowania transakcji.
* Udzielamy wsparcia podczas procesu związanego z uzyskaniem kredytu.




Dodatkowe informacje:

Kurlandt Invest

Patryk Kurlandt – Licencjonowany Pośrednik Nieruchomości

tel. 500 334 331 | e-mail: [Email protected]

Biuro: ul. Myśliwska 11/1, 89-500 Tuchola

Licencja KIGN nr 1362 | NIP: 5611604273
Członek Krajowej Izby Gospodarki Nieruchomościami (KIGN)

Wszelkie informacje zawarte w ogłoszeniu mają charakter informacyjny i nie stanowią oferty handlowej w rozumieniu art. 66 §1 Kodeksu Cywilnego.

Profesjonalne wsparcie w zakupie nieruchomości. Zapraszamy do kontaktu!


Ogłoszenie wysłane z programu dla biur nieruchomości ASARI CRM (asaricrm.com)



Lokalizacja
Bysław
kujawsko-pomorskie
Informacje
Numer oferty: 190/14365/OGS
Okolica
szkoła podstawowa
Media
prąd
Kontakt
Kurlandt Invest Patryk Kurlandt
Patryk Kurlandt
500334331

Podobne oferty

 Bysław

Działki budowlane Bysław 821-1062 m²

Bysław

Na sprzedaż 7 działek zlokalizowanych w kameralnym kompleksie w miejscowości Bysław, gmina Lubiewo, powiat tucholski, województwo kujawsko - pomorskie, w...

m2
119 000 zł
 Bysław

Działka inwestycyjna Bysław 2196 m²

Bysław

Oferujemy Państwu atrakcyjną działkę inwestycyjna, ulokowaną w miejscowości Bysław, gmina Cekcyn. Grunt o powierzchniach 2196 m² to doskonała okazja do ...

m2
189 000 zł
 Bysław

Działka inwestycyjna Bysław 2196 m²

Bysław

Oferujemy Państwu atrakcyjną działkę inwestycyjna, ulokowaną w miejscowości Bysław, gmina Cekcyn. Grunt o powierzchniach 2196 m² to doskonała okazja do...

m2
189 000 zł