Lokal 32 m² 1 piętro 2 pomieszczenia

Olsztyn , Westerplatte

Lokal
32 m2

1 300 zł

Treść ogłoszenia

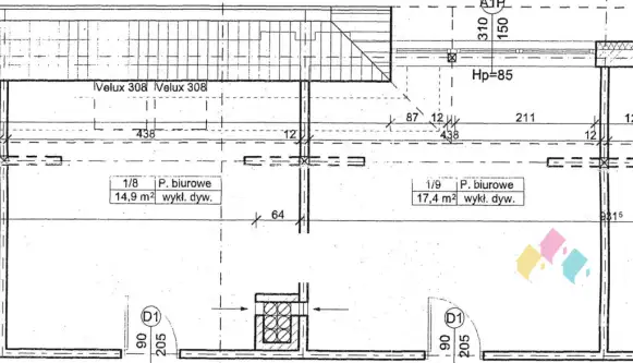
Do wynajęcia lokal usługowy o pow. 32,3 m², na osiedlu Pojezierze przy ul. Westerplatte w Olsztynie, w bardzo dobrej lokalizacji, blisko centrum, komunikacji miejskiej i szkoły TEB Edukacja. Lokal składa się z dwóch oddzielnych pokoi z osobnymi wejściami z korytarza, połączonych wewnętrznym przejściem – idealny na start działalności usługowej, biurowej lub gabinetowej. Znajduje się w jednopiętrowym, ocieplonym budynku z monitoringiem, parkingiem i dostępem do zaplecza sanitarnego na korytarzu.

LOKALIZACJA
Olsztyn, osiedle Pojezierze, ul. Westerplatte okolicy ul. Kołobrzeskiej.
Bardzo dobra lokalizacja, pomiędzy ważnymi ulicami Olsztyna: Kościuszki a Dworcową.
W pobliżu Filharmonia, Spółdzielnia Pojezierze, szkoły, przedszkola. Blisko komunikacja miejska. Obok w bydynku znajduje się szkoła- TEB Edukacja. Blisko do centrum miasta.

BUDYNEK
Jednopiętrowy, ocieplony budynek. Zadbana klatka schodowa. Posesja ogrodzona, monitorowana, przed budynkiem miejsca parkingowe. Dostęp do utwardzonego placu przed budynkiem. WC dla pracowników i klientów znajdują się na korytarzu.

LOKAL
Do wynajęcia lokal usługowy o pow. 32.3 m² składający się z dwóch oddzielnych pokoi z niezależnymi wejściami z korytarza, dodatkowo połączonych wewnętrznym przejściem. Lokal pusty, gotowy do aranżacji według własnych potrzeb. Idealny na start działalności usługowej, biurowej lub gabinetowej. Możliwość elastycznego wykorzystania przestrzeni – dwa niezależne pomieszczenia lub jeden większy lokal z przejściem. Atrakcyjna opcja dla osób szukających funkcjonalnego miejsca na rozpoczęcie własnej działalności.

OPŁATY:
Najem lokalu- 1300 zł netto.
Koszt na pokrycie ogrzewania, prądu, wody, ścieków, śmieci oraz opłaty administracyjne - 153,50 zł netto.
Podsumowanie ceny najmu- 1453,50 zł netto/miesiąc.
Jednorazowa kaucja 3576 zł.
Najemca pokrywa część prowizji biura nieruchomosci.

POŚREDNIK
Mikołaj Matejko
tel. 518266096
email: [Email protected]

Przedstawiona oferta cenowa ma charakter informacyjny, nie stanowi oferty handlowej w rozumieniu art. 66 § 1 Kodeksu Cywilnego.



Właścicielem ogłoszenia wraz z jej elementami jest NewHouse Łukasz Wróbel oraz podmioty współpracujące.
Wszelkie prawa są zastrzeżone, kopiowanie, rozpowszechnianie oraz korzystanie z niniejszych składowych materiałów ogłoszenia w jakikolwiek inny sposób wykraczający poza dozwolony użytek określony przepisami ustawy z 4 lutego 1994 r. o prawie autorskim i prawach pokrewnych (Dz. U. 1994, nr 24 poz. 83 z późn. zm.) bez zgody NewHouse Łukasz Wróbel lub podmiotów współpracujących jest zabronione i może stanowić podstawę odpowiedzialności cywilnej oraz karnej.
Niniejsze materiały stanowią tajemnicę firmy NewHouse Łukasz Wróbel lub podmiotów współpracujących w rozumieniu ustawy z dnia 16 kwietnia 1993 r. o zwalczaniu nieuczciwej konkurencji (Dz. U. z 2003 r., Nr 153, poz. 1503 z późn. zm.).
Niniejsze ogłoszenie nie stanowi oferty w rozumieniu Kodeksu Cywilnego, lecz ma charakter informacyjny.

Ogłoszenie wysłane z programu dla biur nieruchomości ASARI CRM (asaricrm.com)



Lokalizacja
Olsztyn
warmińsko-mazurskie
Informacje
Powierzchnia: 32 m2
1 piętro w budynku
Rok budowy: 1960
Numer oferty: 1374/6682/OOW
Przeznaczenie
mieszkalny
Kontakt
NewHouse Łukasz Wróbel
Mikołaj Matejko
518266096

Podobne oferty

 Olsztyn   Dąbrowszczaków

Prywatna winda prestiżowy lokal top lokalizacja

Olsztyn, Dąbrowszczaków

Unikatowa oferta wynajmu lokalu na ostatniej kondygnacji, z prywatną windą, w obiekcie pełniącym dotąd funkcję prestiżowego butikowego hotelu. Znakomita lokalizacja...

81 m2
3 pokoje
2 900 zł
36 zł/m2
 Olsztyn   Lubelska

Hala magazynowo - produkcyjna 820m²

Olsztyn, Lubelska

Do wynajęcia obiekt o przeznaczeniu magazynowo-produkcyjnym w Olsztynie przy ul. Lubelskiej, niedaleko wlotu na obwodnicę i DK16. LOKALIZACJA Olsztyn ul....

820 m2
18 000 zł
22 zł/m2
 Olsztyn   Jagiellońska

Lokal handlowo-usługowy parter witryny parking

Olsztyn, Jagiellońska

Do wynajęcia lokal handlowo - usługowy 76m2 na parterze z witrynami, przy dużym natężeniu ruchu - skrzyżowanie ulicy Żeromskiego z...

75 m2
3 pokoje
3 000 zł
40 zł/m2