Dom niedaleko Głowna blisko trasy Łódź-Warszawa

Wola lubiankowska

Dom
135 m2
2 pokoje

599 000 zł

Treść ogłoszenia

Oferujemy nieruchomość w miejscowości Wola Lubiankowska. Położona 10 km od Głowna i 35 km od Łodzi, kilka kilometrów od autostrady A2 jest bardzo dobrze skomunikowana.
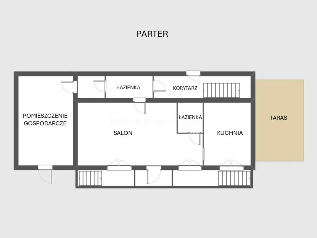
Na działce o powierzchni 450 m² znajduje się dom o powierzchni 135 m² (parter i poddasze użytkowe). Wybudowany w 2021 roku. Na parterze mieści się przestronny salon, duża kuchnia, łazienka i korytarz. Piętro to otwarta przestrzeń, którą można podzielić na pokoje. Na piętro doprowadzona jest instalacja wodno-kanalizacyjna. Można tam urządzić kuchnię i/lub łazienkę.
Dodatkową przestrzeń stwarza duży, zadaszony taras.
Na działce szambo.
Ogrzewanie elektryczne centralne (kaloryfery w poszczególnych pomieszczeniach). W drodze znajduje się nitka gazu ziemnego – istnieje możliwość zmiany rodzaju ogrzewania.
Właściciel bierze pod uwagę przyjęcie w rozliczeniu transakcji mieszkania w Łodzi.
Zapraszam do kontaktu, na prezentację i do zakupu.
Osobom kupującym na kredyt zapewniamy obsługę i doradztwo przy jego uzyskaniu.
Pełna oferta kredytowa, sprawdzenie zdolności bez ponoszenia dodatkowych kosztów.


Czy wiesz, że możemy przygotować dla Ciebie prezentację on-line nieruchomości? Skontaktuj się z naszym Agentem i zapytaj o szczegóły.

Pomimo, iż Doradcy Metrohouse przykładają szczególną staranność do rzetelnego prezentowania informacji o nieruchomości, nie zawsze jest możliwa weryfikacja wszystkich danych przekazanych od osób trzecich. Niniejsza prezentacja oferty nie jest ofertą w rozumieniu Kodeksu Cywilnego i ma charakter wyłącznie informacyjny.
Lokalizacja
Wola lubiankowska
niewybrano
Informacje
Powierzchnia: 135 m2
2 pokoje
Rok budowy: 2021
Numer oferty: SDBUBA162
Kontakt
METROHOUSE
Monika Siemieniecka
+48699585257