Hala 1423m² z zapleczem biurowym 197m² Lublin

Lublin

Komercyjne
1638 m2

8 909 000 zł

Treść ogłoszenia

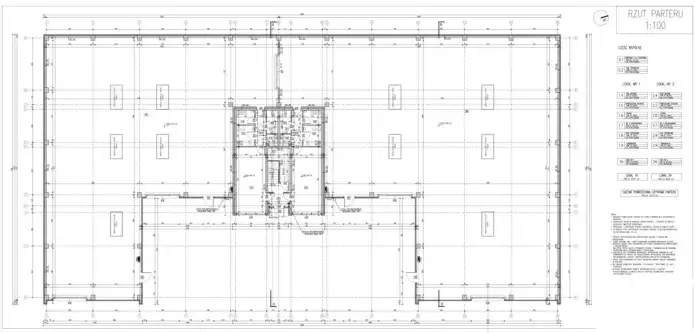
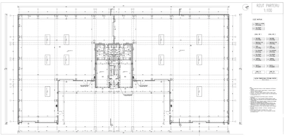
Oferujemy na sprzedaż nowoczesny, dwusekcyjny kompleks magazynowo-biurowy o łącznej powierzchni użytkowej 1638,89 m² (w tym 1423,85 m² hali i 197,42 m² biura), zlokalizowany w rejonie strategicznej ul. Mełgiewskiej w Lublinie, w dzielnicy Zadębie. Inwestycja realizowana jest na działce o powierzchni 3525 m² i stanowi idealne rozwiązanie dla przedsiębiorstw poszukujących obiektu o najwyższych parametrach technicznych, z terminem oddania do użytku w II/III kwartale 2026 roku.

Najważniejsze Atuty Inwestycji
• Zrównoważony Rozwój: Obiekt wyposażony w instalację fotowoltaiczną (w części biurowej) oraz innowacyjny system grzania/chłodzenia VRF (biuro i hala) minimalizujący koszty eksploatacji.
• Bezpieczeństwo Pożarowe: Spełnienie rygorystycznych norm bezpieczeństwa - obciążenie ogniowe 4000 MJ/m²i System Sygnalizacji Pożaru (SSP) na całym obiekcie.
• Strategiczna Lokalizacja: Bezpośredni dostęp do głównych dróg i węzła obwodnicy (S12/S17).
• Stan Deweloperski Biura: Przestrzeń biurowa w standardzie deweloperskim, gotowa do pełnej, indywidualnej aranżacji pod konkretne potrzeby administracyjno-socjalne.
• Potencjał Skalowania: Możliwość zakupu całego kompleksu lub jego niezależnych sekcji, co zapewnia elastyczność inwestycyjną.

Lokal Sprawdzi Się Idealnie Dla
• Operatorów Logistycznych i Dystrybutorów: Z uwagi na dużą powierzchnię składowania i doskonałe połączenie komunikacyjne.
• Przedsiębiorstw Produkcyjnych: Poszukujących nowoczesnej, wydajnej hali z posadzką przemysłową i odpowiednim zasilaniem elektrycznym (2x33 kW z możliwością zwiększenia).
• Dużych Hurtowni: Wymagających połączenia wysokiej klasy zaplecza biurowego (dwa biura po 98,71 m²) z funkcjonalną przestrzenią magazynową.

Szczegóły Budynku i Standard Wykończenia
Budynek składa się z dwóch niezależnych modułów (Lokal 1 i Lokal 2) z dostępem przez wspólną klatkę schodową (17,62 m²).
Hala: Jest w pełni wykończona. Posiada posadzkę przemysłową o wysokiej wytrzymałości oraz kompletną instalację elektryczną z oprawami. Przygotowano również instalację elektryczną pod system grzewczo-chłodzący VRF.
Biuro (2x 98,71 m²): Oferowane jest w stanie deweloperskim, co daje pełną swobodę aranżacji wnętrza. Wyposażenie obejmuje: aluminiową stolarkę okienną, rozprowadzoną instalację elektryczną (w tym fotowoltaiczną), wodno-kanalizacyjną, gotowe tynki i posadzki oraz zaawansowany system grzania/chłodzenia VRF. Klatka schodowa jest wykończona.
Media i Dojazd: Obiekt jest uzbrojony w przyłącza wody i kanalizacji. Zasilanie elektryczne to 2x33 kW. Dojazd do działki odbywa się drogą asfaltową, a teren wokół budynku wykończony jest kostką brukową i trawnikami.

Informacje Finansowe i Opcja Zakupu Części
Podana cena 8 909 000 PLN Netto dotyczy zakupu całości inwestycji (1638,89 m²). Do ceny należy doliczyć podatek VAT.
Dla inwestorów poszukujących mniejszej powierzchni, istnieje również możliwość zakupu poszczególnych, niezależnych modułów:
• LOKAL NR 1: Powierzchnia całkowita 721,17 m² (hala 622,46 m² + biuro 98,71 m²). Cena: 3 962 225 PLN Netto.
• LOKAL NR 2: Powierzchnia całkowita 900,10 m² (hala 801,39 m² + biuro 98,71 m²). Cena: 4 946 775 PLN Netto.

Lokalizacja:
Nieruchomość zlokalizowana jest przy ul. Mełgiewskiej, w strefie aktywności gospodarczej dzielnicy Zadębie w Lublinie.
• Centrum Miasta: Odległość do ścisłego centrum (Plac Litewski) wynosi około 8 km, co gwarantuje szybki dojazd w czasie 15-20 minut.
• Obwodnica: Bardzo szybki dojazd (ok. 3-5 minut) do kluczowego Węzła Lublin Hajdów (trasy S12/S17/DK17), umożliwiający efektywny transport krajowy.
• Lotnisko: Port Lotniczy Lublin (Świdnik) oddalony o około 15-20 minut jazdy.
• Transport Publiczny: Przystanek autobusowy znajduje się w bezpośredniej bliskości nieruchomości.

Pomagamy przy uzyskaniu finansowania komercyjnego oraz preferencyjnych funduszy unijnych. Zapewniamy kontakty do projektantów, architektów, geodetów, doradców podatkowych, notariuszy, ekip remontowych i wielu innych sprawdzonych specjalistów.

Ofertę przygotował i prezentuje: Daniel Bondarenko
Licencjonowany Pośrednik Nieruchomości PFRN i Certyfikowany Negocjator

Zapraszam do kontaktu i na prezentację oferty!

Treść niniejszego ogłoszenia nie stanowi oferty handlowej w rozumieniu Kodeksu Cywilnego, ale jest zaproszeniem do współpracy. Zespół ekspertów z Franczewska Nieruchomości dokłada starań, aby każda z ofert była rzetelnie sprawdzona oraz aktualna. Jako agencja nieruchomości pobieramy za usługę pośrednictwa wynagrodzenie. Usługa jest wykonywana w profesjonalny sposób i zapewnia Państwu pełne bezpieczeństwo. Więcej unikalnych ofert w podobnych kryteriach znajdą Państwo na naszej stronie.
Lokalizacja
Lublin
dzielnica Hajdów
lubelskie
Informacje
Powierzchnia: 1638 m2
1 piętro w budynku
Rok budowy: 2026
Numer oferty: 691871
Ogrodzenie
siatka
Dojazd
utwardzony
Umiejscowienie
magazyn
Kontakt
FRANCZEWSKA NIERUCHOMOŚCI ADRIANNA FRANCZEWSKA-KRUPA SPÓŁKA KOMANDYTOWA
Daniel Bondarenko
530350726

Podobne oferty

 Lublin   Krasińskiego

Lokal na sprzedaż

Lublin, Krasińskiego

NOWOCZESNY OBIEKT W DOSKONAŁEJ LOKALIZACJI Lokale biurowe (ew. gabinety medyczne) o łącznej powierzchni ok. 160m2 na 2 piętrze budynku z...

157 m2
1 800 000 zł
11 465 zł/m2
 Lublin

Lokal z witrynami parter 223m² - Lublin Czechów

Lublin

Oferta dostępna wyłącznie za pośrednictwem Franczewska Nieruchomości.Prezentujemy na sprzedaż lokal handlowo-usługowy o powierzchni 223,70 m², położony na parterze nowoczesnego apartamentowca...

223 m2
3 579 200 zł
16 050 zł/m2

Lokal na sprzedaż

Lublin, Lubartowska

Lokal handlowo-usługowy o powierzchni 140,48m2, na parterze XIX-wiecznej kamienicy. Dobra lokalizacja w rejonie Starego Miasta, zadbane, wysokie wnętrza, na podłodze...

140 m2
1 545 280 zł
11 038 zł/m2