Działka z MPZP pod osiedle domów

Zielona Góra

Działka
35300 m2

27 400 000 zł

Treść ogłoszenia

Na sprzedaż atrakcyjna Działka Inwestycyjna - Zabudowa Jednorodzinna

Powierzchnia: 35 300 m²
Cena netto: 7 900 000 zł 
Cena 30 domów modułowych - 19 500 00 zł*

Nowość w ofercie!

Istnieje możliwość podpisania umowy z naszym partnerem na kompleksową realizację osiedla 30 nowoczesnych domów modułowych. To innowacyjne rozwiązanie pozwala na szybkie i efektywne zagospodarowanie terenu przy zachowaniu wysokiej jakości i estetyki zabudowy.

*Cena za 30 domów modułowych (19 500 000 zł netto) ma charakter orientacyjny - ostateczny koszt inwestycji zależy od wybranych rozwiązań projektowych, standardu wykończenia oraz warunków technicznych i zostanie ustalony indywidualnie z naszym partnerem realizującym budowę.

Oferujemy na sprzedaż działkę inwestycyjną o powierzchni 35 300 m², przeznaczoną pod zabudowę jednorodzinną. Działka znajduje się w spokojnej okolicy, otoczona pięknymi lasami co sprzyja odpoczynkowi. W sąsiednich miejscowościach jest wiele pięknych jezior, które pozwalają się zrelaksować nie tylko w letnie dni. To wszystko niewątpliwie podnosi potencjał inwestycyjny tej nieruchomości.

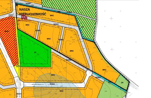
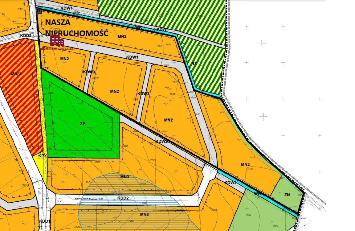
Plan zagospodarowania przestrzennego. Zgodnie z  MPZP, powierzchnia pojedynczej działki nie może być mniejsza niż 950   m², co daje możliwość utworzenia od 20 do 35 działek na indywidualną zabudowę.
Wyznacza się tereny zabudowy mieszkaniowej jednorodzinnej, oznaczone na rysunku
planu symbolem MN2, dla których ustala się przeznaczenie:
1) podstawowe - zabudowa mieszkaniowa jednorodzinna wolnostojąca;
2) uzupełniające - usługi.
2. Dla terenów, o których mowa w ust.1:
1) nakazuje się uwzględnienie wskazanych na rysunku planu nieprzekraczalnych linii zabudowy
w odległości:
a) 3 m od linii rozgraniczającej tereny WR,
b) 4 m od linii rozgraniczającej teren ZP,
c) 6 m oraz zgodnie z rysunkiem planu od pozostałych linii rozgraniczających;
2) dopuszcza się realizację przeznaczenia uzupełniającego wyłącznie w budynku przeznaczenia
podstawowego.
3. Określa się następujące parametry i wskaźniki zabudowy i zagospodarowania terenu:
1) maksymalny wskaźnik powierzchni zabudowy - 25%;
2) minimalny wskaźnik powierzchni biologicznie czynnej - 40%;
3) wskaźnik intensywności zabudowy - od 0,01 do 0,8;
4) wysokość zabudowy:
a) dla obiektów z dachem spadzistym - do 2 kondygnacji nadziemnych, nie większa niż 9 m,
b) dla obiektów z dachem płaskim - do 2 kondygnacji nadziemnych, nie większa niż 8 m;
5) w zakresie geometrii dachów - dachy:
a) dwu- lub wielospadowe o kącie nachylenia głównych połaci od 35º do 45º,
b) płaskie;
6) minimalna powierzchnia nowo wydzielanych działek budowlanych - 950 m²

Na działce wyznaczone zostały również tereny pod drogi wewnętrzne KDW1 (10m) i KDW3 (6m) oraz tereny przeznaczone na zieleń naturalną ZN



Dla działek została wydana decyzja o Uwarunkowaniach Środowiskowych stwierdzająca brak potrzeby przeprowadzenia oceny oddziaływania na środowisko.

Media zgodnie z projektem MPZP:
- Energia elektryczna: Stacja transformatorowa na działce sąsiadującej( Możliwość stosowania odnawialnych źródeł energii).
- Woda: Przyłącze w drodze; (dopuszcza się indywidualne ujęcia wody).
- Ścieki: Odprowadzenie ścieków do szczelnych zbiorników bezodpływowych do czasu podłączenia do kanalizacji.

Dodatkowe Informacje:
Na sąsiedniej działce została postawiona stacja transformatorowa. Działka jest idealna dla inwestorów poszukujących terenów pod zabudowę jednorodzinną w spokojnej okolicy.
Dostępny jest również wstępny plan podziału nieruchomości. 

Kontakt
Aneta Klorek-Górna
LDK Nieruchomości
tel. 881 593 557

Zapraszamy do kontaktu po więcej szczegółów. To wyjątkowa okazja dla inwestorów szukających atrakcyjnie położonej działki pod zabudowę jednorodzinną.

---

Nota prawna: Powyższe ogłoszenie nie stanowi oferty w rozumieniu Kodeksu Cywilnego, a dane w nim zawarte mają jedynie charakter informacyjny i mogą ulec zmianie.
Lokalizacja
Zielona Góra
lubuskie
Informacje
Powierzchnia: 35300 m2
Numer oferty: LDK144723
Ogrodzenie
brak
Kontakt
LDK NIERUCHOMOŚCI
Aneta Klorek-Górna
881593557

Podobne oferty

 Zielona Góra   Zielonogórska

Teren pod inwestycje usługowo-mieszkaniową

Zielona Góra, Zielonogórska

LDK przedstawia unikalną nieruchomość gruntową pod inwestycje usługowo-mieszkaniową! Lokalizacja:Nieruchomość o powierzchni 3.6 ha  położona jest w urokliwym Droszkowie koło Zielonej...

36791 m2
11 037 300 zł
300 zł/m2
 Zielona Góra

PRZETARG

Zielona Góra

UNIWERSYTET ZIELONOGÓRSKI 65-417 Zielona Góra, ul. Licealna 9 ogłasza pisemny przetarg nieograniczony na sprzedaż części nieruchomości gruntowych niezabudowanych, zlokalizowanych na...

m2
2 058 050 zł
 Zielona Góra   Przylep-Solidarności

Przetarg - ul. Przylep-Solidarności 6B

Zielona Góra, Przylep-Solidarności

UNIWERSYTET ZIELONOGÓRSKI 65-417 Zielona Góra, ul. Licealna 9 ogłasza pisemny przetarg nieograniczony na sprzedaż nieruchomości gruntowej niezabudowanej, zlokalizowanych na działce...

m2
1 766 980 zł