Nowe gotowe do wprowadzenia faktura VAT garaż

Warszawa

Mieszkanie
29 m2
1 pokój

469 000 zł

Treść ogłoszenia

MDP Partners prezentuje


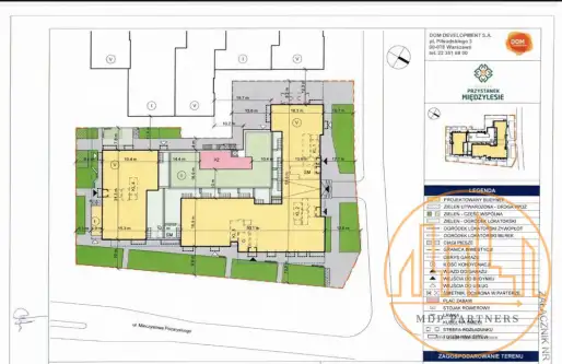
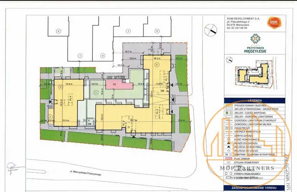
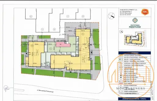
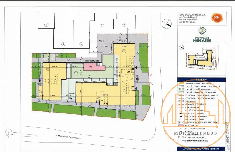
Mieszkanie 1-pokojowe 29,69 m² z balkonem w inwestycji Przystanek Międzylesie, Wawer, Warszawa

Na sprzedaż nowoczesne, jasne mieszkanie o powierzchni 29,69 m², położone na 4. (ostatnim) piętrze nowego budynku z windą, wybudowanego w 2024 roku. Lokal znajduje się w cenionej inwestycji Przystanek Międzylesie przy ul. Mieczysława Pożaryskiego w warszawskim Wawrze.

Kluczowe cechy mieszkania:
Powierzchnia mieszkania: 29,69 m²

Balkon: 4,79 m² - idealny na poranną kawę lub relaks po pracy

Piętro: 4 z 4 (winda)

Stan: deweloperski, gotowy do aranżacji według własnych potrzeb

Media: w pełni doprowadzone (prąd, woda, ogrzewanie)

Miejsce postojowe w garażu podziemnym: dodatkowo płatne 40 000 zł

Forma zakupu: faktura VAT - brak podatku PCC dla kupującego

Cena mieszkania: 469 000 zł

Lokalizacja i otoczenie:
Inwestycja „Przystanek Międzylesie” to idealne miejsce dla osób ceniących spokój, wygodę i bliskość natury, a zarazem szybki dojazd do centrum Warszawy. W bezpośrednim sąsiedztwie znajdują się:

Ferio Wawer - centrum handlowe z bogatą ofertą sklepów i usług
Wiele restauracji 
Supermarket - Lidl
Szkoła podstawowa i przedszkole
Stacja SKM Międzylesie oraz liczne linie autobusowe - zapewniają sprawną komunikację

Osiedle jest nowoczesne, bezpieczne i oddane do użytku, co oznacza, że mieszkanie jest gotowe do zamieszkania lub wynajmu.


Zapraszam do kontaktu i na prezentacje mieszkania.


Karol Kałużny


MDP Partners



MDP Partners oferuje nabywcom obsługę prawną transakcji i jej bezpieczną finalizację, oraz pomoc w sfinansowaniu każdego rodzaju nieruchomości.
Lokalizacja
Warszawa
dzielnica Wawer
mazowieckie
Informacje
Powierzchnia: 29 m2
1 pokoje
4 piętra w budynku
Rok budowy: 2024
Numer oferty: 117393
Zalety
domofon
Media
kanalizacja
Wyposażenie
balkon/taras
Kontakt
MDP Partners
Karol Kałużny
531 620 270

Podobne oferty

 Warszawa   Saska

Mieszkania

Warszawa, Saska

Praga-Południe Saska Kępa 27m2 kawalerka, kuchnia z prześwitem na pokój, mieszkanie ciche, okno PCV na zachód, jest balkon 1m2, na...

27 m2
1 pokój
565 000 zł
20 926 zł/m2
 Warszawa   Konstruktorska

Piękne mieszkanie w idealnej lokalizacji

Warszawa, Konstruktorska

Mamy do zaoferowania Państwu dwu-pokojowe mieszkanie zlokalizowane na Mokotowie przy ul. KonstruktorskiejNIERUCHOMOŚĆMieszkanie o powierzchni 48,60 m2 składa się z:-salonu z...

48 m2
2 pokoje
1 180 000 zł
24 583 zł/m2
 Warszawa   Artura Malawskiego

Świetna lokalizacja 2 pok 28m² Po remoncie

Warszawa, Artura Malawskiego

Na sprzedaż świeżo wyremontowane mieszkanie o powierzchni 27,9m2, lokal składa się z:- salonu z balkonem,- pół otwartej kuchni,- łazienki- korytarza,-...

27 m2
2 pokoje
519 000 zł
19 222 zł/m2