UMOWA NA WYŁĄCZNOŚĆ

Dobiesz

Dom
249 m2
6 pokoi

2 300 000 zł

Treść ogłoszenia

UMOWA NA WYŁĄCZNOŚĆ!

KUPUJACY NIE PŁACI PROWIZJI!

NOWY DOM DO WPROWADZENIA!

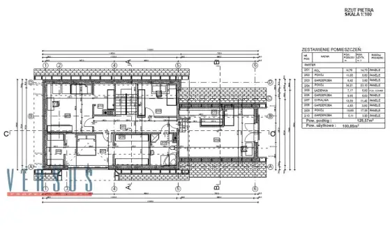
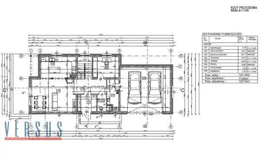
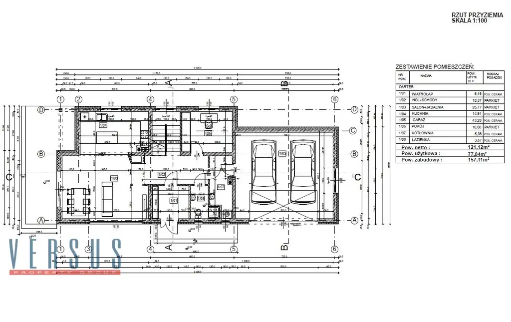
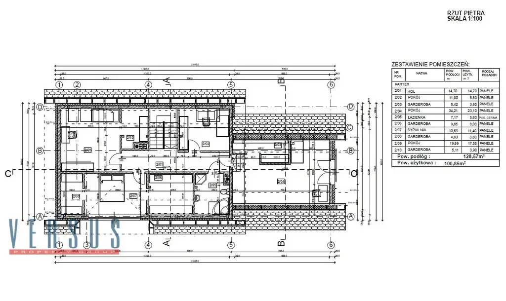
Dom o powierzchni użytkowej 180m² + garaż 40 m², gotowy do zamieszkania (bez mebli ruchomych). Nieruchomość została wykonana z materiałów wysokiej klasy: cegła POROTHERM, ogrzewana Pompa ciepła. Dom wyposażony w instalacje alarmową, antenową TV, elektryczną, CO, wodnokanalizacyjną (szambo). Działka o powierzchni 1500 m², ogrodzona, furtka, brama, kostka podjazdy. Okna plastikowe 3 szybowe. Dach balchodachówka, Ocieplenie styropian grafit 20 cm, strop piętra piana PUR. Media: energia elektryczna, woda miejska, szambo 10m3, studnia głębinowa. Podłogi terakota - gres (ogrzewanie podłogowe), alarm z monitoringiem, rolety zewnętrzne anty włamaniowe, podlewanie ogrodowe, liczne nasadzenia (drzewa owocowe).

WIĘCEJ ZDJĘĆ NA (100) NA STRONIE VERSUSGROUP PL


Komunikacja i zagospodarowanie przestrzenne: -w pobliżu przystanek autobusowy
-blisko do Centrum Piaseczna
-blisko do pociągu ok 4,5 km
-szkoły i przedszkola ok 6 km
-do budowanej Puławskiej BIS ok 18 km

DANE TECHNICZNE BUDYNKU JEDNORODZINNEGO WOLNOSTOJĄCEGO W MIEJSCOWOŚCI DOBIESZ .

SPECYFIKACJA ROBÓT BUDOWLANYCH


ŚCIANY ZEWNĘTRZNE
- Murowane Wienerberger i bloczek H+H
- Elewacja ocieplona styropianem gr. 20 cm w technologii lekka-mokra , okładziny drewnopodobne , i
Imitacja kamienia
- Płyta żelbetowa nad parterem monolityczna
- Dach dwuspadowy pokryty dachówką modułową w kolorze grafit
- Ocieplenie poddasza pianą poliuretanową
- Okna dachowe

IZOLACJE TERMICZNE
- Izolacja fundamentów pozioma i pionowa
- Styropian gr. 15 cm
- Folia kubełkowa
- Ocieplenie posadzki parteru

SCHODY
- Schody zewnętrzne
- Schody wewnętrzne żelbetowe

OKNA
- PCV trzy szybowe w środku kolor biały na zewnątrz złoty dąb .
- Brama garażow firmy Hormann z napędem elektrycznym sterowanie pilotem kolor złoty dąb

DRZWI WEJŚCIOWE
- Drewniane firmy WIATRAK

PODŁOGI
-Izolacja przeciw wilgociowa pozioma parteru folia budowlana , styropian
- wylewka

ŚCIANY WEWNĘTRZNE
- Konstrukcyjne murowane
- Działowe murowane
- Tynk gipsowy maszynowy

INSTALACJE
-Instalacja elektryczna wewnętrzna , ułożone przewody do instalacji alarmowej i kamer
- Doprowadzona instalacja domofonowa i zasilanie do furtki i bramy

OGRZEWANIE BUDYNKU
-Pompa ciepła , zasobnik na ciepła wodę 120 , ogrzewanie podłogowe w całym budynku

INSTALACJA KANALIZACYJNA
- Rozprowadzona pod posadzką parteru i piętra
- Odprowadzenie do szamba 10 m3

INSTALACJA WENTYLACYJNA
- wentylacja grawitacyjna

DZIAŁKA
- Przygotowana pod humusowanie oczyszczona
-Kostka brukowa wykonana w zakresie podjazd i dojście do domu
- Cały teren nieruchomości ogrodzony panelami systemowymi FI 4 na słupkach stalowych brama i furtka





Zapraszamy do naszego biura w Piasecznie, ul. Pomorska 22. Nasi pracownicy są do Państwa dyspozycji od 9:00 do 20:00 (pon-pt), w sobotę od 10:00 do 17:00.

Kontakt telefoniczny w sprawie ofert codziennie od godziny 8:00 do 22:00 tel. 664 476 532

W celu zapoznania się z naszą pełną ofertą nieruchomości zapraszamy na naszą stronę www.versusgroup.pl

Niniejsze ogłoszenie nie stanowi oferty w rozumieniu przepisów Kodeksu Cywilnego oraz innych właściwych przepisów prawnych, a dane w niej zawarte mają jedynie charakter informacyjny.

Ogłoszenie wysłane z programu dla biur nieruchomości ASARI CRM (asaricrm.com)



Lokalizacja
Dobiesz
mazowieckie
Informacje
Powierzchnia: 249 m2
6 pokoje
1 piętro w budynku
Rok budowy: 2022
Numer oferty: 4202/1880/ODS
Ogrzewanie
pompa ciepła
Wyposażenie
balkon/taras
zmywarka
Instalacje
elektryczna
wodna
Kontakt
VERSUS PROPERTY GROUP S.C.
Jacek Gawin
664 476 532