4 pokojowe mieszkanie z dużym ogródkiem w Poznaniu

Poznań , Jasielska

Mieszkanie
73 m2
4 pokoje

737 761 zł

Treść ogłoszenia

Ogłoszenie sprzedaży 4 pokojowego mieszkania z dużym ogrodem w Poznaniu


Zadzwoń i umów się na obejrzenie inwestycji +48798601102




  • Bezpośrednio od dewelopera

  • Brak PCC

  • Bez prowizji





Lokalizacja

Podolany, to lokalizacja zapewniająca bliskość terenów zielonych, a jednocześnie jest dobrze skomunikowana z centrum.



  • autobus - 1 minuta

  • przychodnia - 5 minut

  • tereny zielone - 5 minut

  • szkoła - 5 minut

  • sklepy - 1 minuta





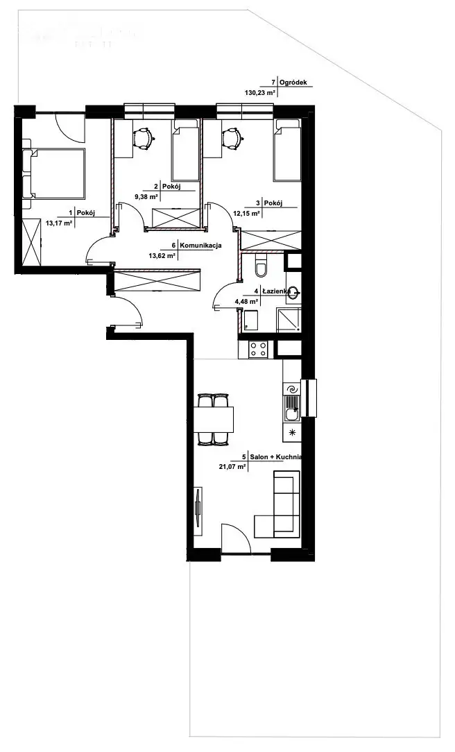
Układ mieszkania



  • Salon + Kuchnia 21,07 m²

  • Pokój 13,17 m²

  • Pokój 12,15 m²

  • Pokój 9,38 m²

  • Przedpokój 13,62 m²

  • Łazienka 4,48 m²

  • Ogródek 130,23 m²




w inwestycji



  • windy

  • domofon

  • monitoring

  • wewnętrzny plac zabaw

  • CO miejskie






To miejsce, które daje Ci spokój, komfort i codzienną wygodę.



Termin oddania: IV kwartał 2025
Do ceny należy doliczyć miejsce postojowe w hali garażowej.




Spełnij marzenia o nowym mieszkaniu.
Zainteresowany? Zarezerwuj mieszkanie już teraz.


Monika Skotarczak. +48798601102

ZERO prowizji, brak PCC

...
Oferta wystawiona przez Biuro nieruchomości Falcon Estate.
Prezentowane w serwisie oferty nie stanowią oferty handlowej w rozumieniu art. 66 Kodeksu Cywilnego i mogą być nieaktualne.
Lokalizacja
Poznań
dzielnica Podolany
wielkopolskie
Informacje
Powierzchnia: 73 m2
4 pokoje
5 pięter w budynku
Rok budowy: 2025
Numer oferty: FE268631
Zalety
domofon
Media
kanalizacja
Kontakt
Falcon Estate
Monika Skotarczak
798601102

Podobne oferty

 Poznań   Naramowicka

Nowa inwestycja na Winogradach

Poznań, Naramowicka

Naramowicka 172 to wyjątkowy projekt, który oferuje mieszkania idealne zarówno dla singli, jak i rodzin. Wybierz spośród funkcjonalnych kawalerek, mieszkań...

29 m2
1 pokój
335 000 zł
11 552 zł/m2
 Poznań

Apartamenty w Centrum Poznania

Poznań

Apartamenty Premium.Najwyższa jakość wykonania, otoczenie pełne zieleni oraz ekskluzywne wnętrza.Odnajdź harmonię i spokój w samym centrum miasta. Nasza propozycja to...

70 m2
3 pokoje
1 225 350 zł
17 505 zł/m2
 Poznań

Mieszkanie 3 pokojowe z dużym tarasem

Poznań

Ogłoszenie sprzedaży 3 pokojowego mieszkania z tarasem w Poznaniu Bezpośrednio od dewelopera Brak PCC Bez prowizji LokalizacjaNaramowice, to doskonale miejsce,...

60 m2
3 pokoje
900 300 zł
15 005 zł/m2