Okazja Osiedlu na Wzgórzu 5 min od Stargardu

Kiczarowo

Dom
120 m2
4 pokoje

520 000 zł

Treść ogłoszenia

NOWA cena! Zadzwoń dziś jutro ta oferta może być już nieaktualna.

Zamieszkaj w miejscu, gdzie każdego dnia możesz zaczynać od spojrzenia na zieleń i wsłuchiwania się w ciszę.
W Kolonii Kiczarowo, zaledwie kilka minut od Stargardu, czeka na Ciebie dom w stanie surowym zamkniętym gotowy, by nadać mu charakter i uczynić go swoim miejscem na ziemi.

Położony w spokojnej, nowoczesnej dzielnicy domów jednorodzinnych, w otoczeniu dwóch jezior, ten dom oferuje coś więcej niż tylko mury,  daje przestrzeń do życia w harmonii z naturą.

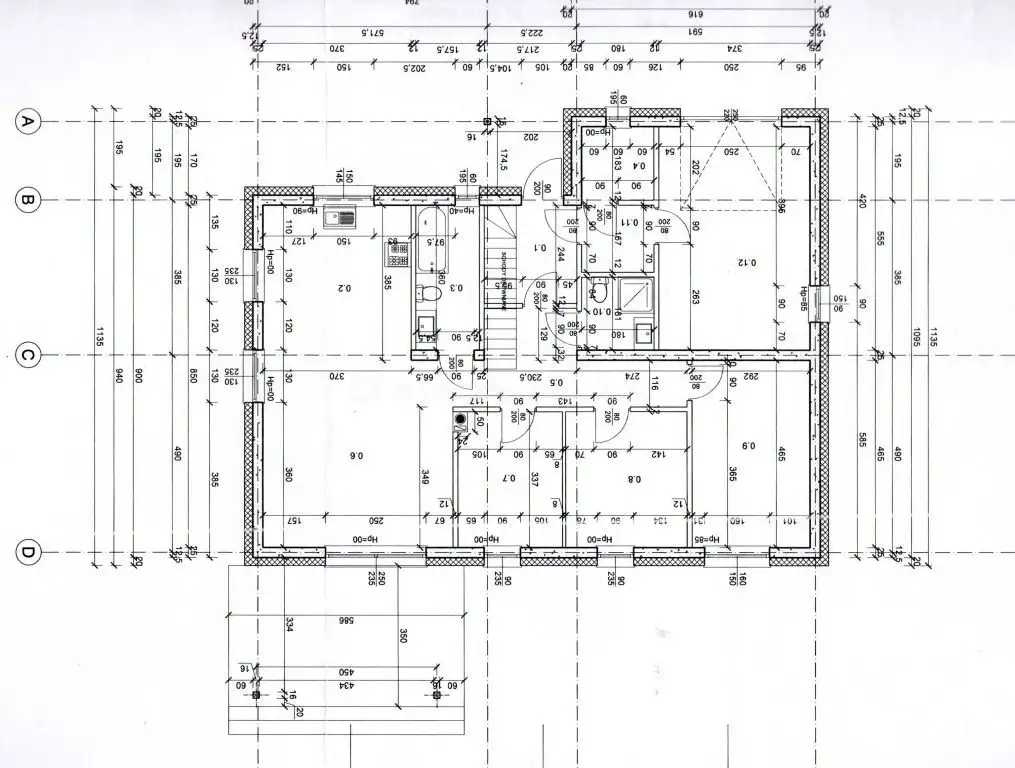
Zaprojektowany dom zachwyca przemyślanym rozkładem:

Strefa dzienna to jasna, przestronna przestrzeń otwarta kuchnia 14 m² z oknem łączy się z salonem o powierzchni ponad 22 m². To tu będą toczyły się rozmowy i gromadziły się wspomnienia.
Trzy niezależne pokoje (8,64 m², 10,18 m², 13,58 m²) dają komfort każdemu domownikowi idealne na sypialnie, gabinet lub pokoje dziecięce.
Dwie łazienki zapewniają wygodę na co dzień.
Dodatkowe przestrzenie jak garderoba, kotłownia czy hall dopełniają funkcjonalność domu.
Wiatrołap pozwala na wygodne wejście i separację od części mieszkalnej.
Garaż (20,76 m²).

Dbałość o jakość i detale:
Dom powstał z materiałów, które gwarantują trwałość i energooszczędność od solidnych fundamentów, przez bloczki Solbet, po dach z wiązarów z certyfikowanego drewna C24 i dachówkę ceramiczną firmy Roben.

Zastosowano stolarkę okienną najwyższej klasy: nowoczesne okna Drutex IGLO EDGE 3-szybowe, 7-komorowe, o doskonałym współczynniku cieplnym, w eleganckim, geometrycznym kształcie. Przesuwne drzwi tarasowe HST bez progów dodają przestrzeni światła i stylu.

Wnętrze zyskało już instalację elektryczną i hydrauliczną (wykonane w ok. 80%). To doskonały moment, by dopasować dom do własnych potrzeb bez kompromisów, z myślą o swoim komforcie i stylu życia.

Działka o powierzchni 958 m² daje wiele możliwości od ogrodu marzeń po miejsce na letnie popołudnia z rodziną.

To dom, który ma wszystko, czego trzeba, by stać się Twoim miejscem wystarczy nadać mu indywidualny rytm.


Czy wiesz, że możemy przygotować dla Ciebie prezentację on-line nieruchomości? Skontaktuj się z naszym Agentem i zapytaj o szczegóły.

Pomimo, iż Doradcy Metrohouse przykładają szczególną staranność do rzetelnego prezentowania informacji o nieruchomości, nie zawsze jest możliwa weryfikacja wszystkich danych przekazanych od osób trzecich. Niniejsza prezentacja oferty nie jest ofertą w rozumieniu Kodeksu Cywilnego i ma charakter wyłącznie informacyjny.
Lokalizacja
Kiczarowo
niewybrano
Informacje
Powierzchnia: 120 m2
4 pokoje
Rok budowy: 2024
Numer oferty: SDDOCU556
Ogrzewanie
pompa ciepła
Kontakt
METROHOUSE
Urszula Bukała
+48699585048