Nowa inwestycja wśród zieleni

Szczecin

Mieszkanie
64 m2
3 pokoje

639 900 zł

Treść ogłoszenia

Blue Real Estate z dumą przedstawia atrakcyjne mieszkanie o powierzchni 64,5 m², zlokalizowane na I pietrze nowoczesnej inwestycji mieszkaniowej zaprojektowanej z myślą o komforcie,
funkcjonalności i wysokim standardzie życia!

Lokal idealny zarówno dla singla, pary, jak i jako świetna lokata kapitału pod wynajem. Mieszkanie usytuowane na jednej z kondygnacji nowoczesnego budynku,
z dostępem do windy. Do lokalu przynależy indywidualne miejsce postojowe w hali garażowej oraz komórka lokatorska.

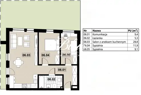
W skład mieszkania o powierzchni 54 m² wchodzą:
- przestronny salon z aneksem kuchennym
- dwie ustawne sypialnie
- łazienka z wc
- przedpokój
- balkon lub ogródek w zależności od kondygnacji

Budynek zaprojektowany z dbałością o każdy detal, z wykorzystaniem nowoczesnych technologii i trwałych materiałów.
Konstrukcja posadowiona na stopach i ławach fundamentowych z betonu klasy C20/25.
Ściany nośne z bloczków silikatowych o grubości 24 cm, wzmacniane trzpieniami żelbetowymi.
Stropy, wieńce, schody, balkony i tarasy w technologii żelbetowej.
Dach dwuspadowy o nachyleniu 35°, konstrukcja z drewna C24, pokrycie dachówką cementową.

Wykończenie i izolacja:
- tynki gipsowe w pomieszczeniach suchych
- tynki cementowe w łazienkach
- posadzki betonowe z izolacją cieplną i akustyczną
- drzwi wejściowe do mieszkań
- okna PCV trzyszybowe, profil 6-komorowy, montaż warstwowy z taśmami paroszczelnymi i paroprzepuszczalnymi
- instalacja elektryczna wraz z osprzętem
- instalacja wodno–kanalizacyjna
- grzejniki panelowe
- kominy wentylacyjne

Ogrzewanie i wentylacja:
- kotłownia z nowoczesnym piecem gazowym
- system wentylacji grawitacyjnej

Informacje dodatkowe:
- winda osobowa obsługująca wszystkie kondygnacje, przystosowana dla osób z niepełnosprawnościami
- hala garażowa pod budynkiem
- ogrodzenie stalowe na murze
- nowoczesna bryła budynku

Teren wokół budynku:
- drogi wewnętrzne i dojścia piesze z kostki brukowej
- oświetlenie zewnętrzne ciągów komunikacyjnych
- starannie zaprojektowana zieleń niska
- prywatne ogródki dla mieszkań na parterze

Kupujący jest zwolniony z opłaty podatku PCC w wysokości 2%!

Blue Real Estate oferuje również szeroki zakres usług dodatkowych, m.in.: współpracę z architektem, usługi remontowo–wykończeniowe, usługi budowlane oraz instalacje fotowoltaiczne – dzięki czemu stworzą Państwo wymarzoną przestrzeń idealnie dopasowaną do własnych potrzeb.

Z Blue Real Estate Twoje wymarzone mieszkanie jest na wyciągnięcie ręki!



Blue Real Estate is proud to present an attractive apartment with an area of 64.5 m² , located on the first floor of a modern residential investment designed with comfort in mind,
functionality and high standard of living!

This property is ideal for singles and couples, as well as a great rental investment. The apartment is located on one floor of a modern building,
with elevator access. The unit comes with a private parking space in the garage and a storage unit.

The 54 m² apartment includes:
- spacious living room with kitchenette
- two well-arranged bedrooms
- bathroom with toilet
- hall
- balcony or garden depending on the floor

The building was designed with attention to every detail, using modern technologies and durable materials.
The structure is based on footings and foundations made of C20/25 class concrete.
Load-bearing walls made of 24 cm thick silicate blocks, reinforced with reinforced concrete pins.
Ceilings, beams, stairs, balconies and terraces in reinforced concrete technology.
Gable roof with a slope of 35°, C24 timber structure, covered with cement tiles.

Finishing and insulation:
- gypsum plasters in dry rooms
- cement plasters in bathrooms
- concrete floors with thermal and acoustic insulation
- entrance doors to apartments
- triple-glazed PVC windows, 6-chamber profile, layered assembly with vapor-tight and vapor-permeable tapes
- electrical installation with accessories
- water and sewage installation
- panel radiators
- ventilation chimneys

Heating and ventilation:
- boiler room with a modern gas furnace
- gravity ventilation system

Additional information:
- a passenger elevator serving all floors, adapted for people with disabilities
- garage under the building
- steel fence on the wall
- modern building structure

The area around the building:
- internal roads and pedestrian access roads made of paving stones
- external lighting of communication routes
- carefully designed low greenery
- private gardens for ground floor apartments

The buyer is exempt from paying the 2% PCC tax!

Blue Real Estate also offers a wide range of additional services, including: cooperation with an architect, renovation and finishing services, construction services, and photovoltaic installations – allowing you to create your dream space, perfectly tailored to your needs.

With Blue Real Estate, your dream apartment is at your fingertips!

Treść niniejszego ogłoszenia nie stanowi oferty handlowej w rozumieniu Kodeksu Cywilnego. Treść ma charakter informacyjny i zalecamy ich osobistą weryfikację.
Bezpłatnie pomagamy w uzyskaniu kredytu.

Ogłoszenie wysłane z programu dla biur nieruchomości ASARI CRM (asaricrm.com)



Lokalizacja
Szczecin
dzielnica Podjuchy
zachodniopomorskie
Informacje
Powierzchnia: 64 m2
3 pokoje
3 piętra w budynku
Rok budowy: 2026
Numer oferty: 685/14664/OMS
Okolica
plac zabaw
szkoła podstawowa
restauracja
jezioro
park
las
Kuchnia
w aneksie
Przeznaczenie
mieszkalny
Kontakt
Blue Real Estate Bogacka & Gołębiowska
Luis Hermański
786999904

Podobne oferty

 Szczecin

Słoneczne dwupokojowe mieszkanie na Os. Majowym

Szczecin

Na sprzedaż dwupokojowe mieszkanie, znajdujące się na Osiedlu Majowym. Nieruchomość o powierzchni około 47 m2 usytuowana na II piętrze w...

47 m2
2 pokoje
460 000 zł
9 787 zł/m2
 Szczecin

Piękny apartament - Gumieńce - tarasparking

Szczecin

Blue Real Estate ma okazję zaprezentować zjawiskowy apartament znajdujący się w urokliwej dzielnicy Szczecina - Gumieńce. Prezentowana nieruchomość o powierzchni...

100 m2
4 pokoje
1 155 000 zł
11 550 zł/m2
 Szczecin

Top cena Piętro domu 74m². z ogrodem Podjuchy

Szczecin

Nowa super cena!!! Na sprzedaż piętro domu przedwojennego, dwulokalowego z dużym ogrodem, znajdujący się na prawobrzeżu Szczecina, w Podjuchach. Prezentowana...

72 m2
3 pokoje
399 900 zł
5 554 zł/m2