2 pok. z ogródkiem dobry dojazd do centrum

Poznań , Jasielska

Mieszkanie
36 m2
2 pokoje

432 988 zł

Treść ogłoszenia

Ogłoszenie sprzedaży 2 pokojowego mieszkania z ogródkiem w stanie deweloperskim, Poznań


Zadzwoń i umów się na obejrzenie inwestycji +48798601102




  • Bezpośrednio od dewelopera

  • Brak PCC

  • Bez prowizji





Lokalizacja

Podolany, to lokalizacja zapewniająca bliskość terenów zielonych, a jednocześnie jest dobrze skomunikowana z centrum.



  • autobus - 1 minuta

  • przychodnia - 5 minut

  • tereny zielone - 5 minut

  • szkoła - 5 minut

  • sklepy - 1 minuta




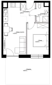
Układ mieszkania



  • Salon + Kuchnia - 17,70m²

  • Sypialnia - 11,09 m²

  • Łazienka - 3,69 m²

  • Przedpokój - 4,09 m²

  • Ogródek - 18,95 m²




w inwestycji



  • windy

  • domofon

  • monitoring

  • wewnętrzny plac zabaw

  • co miejskie





To miejsce, które daje Ci spokój, komfort i codzienną wygodę.

Mieszkania będzie gotowe w I kwartale 2026


Spełnij marzenia o nowym mieszkaniu.
Nie czekaj. Zarezerwuj mieszkanie już teraz

Dodatkowo

pomagamy bezpłatnie w uzyskaniu najkorzystniejszej oferty kredytu hipotecznego
możliwość wykończenia mieszkania pod klucz


Monika Skotarczak. +48798601102

ZERO prowizji, brak PCC

...
Oferta wystawiona przez Biuro nieruchomości Falcon Estate.
Prezentowane w serwisie oferty nie stanowią oferty handlowej w rozumieniu art. 66 Kodeksu Cywilnego i mogą być nieaktualne.
Lokalizacja
Poznań
dzielnica Podolany
wielkopolskie
Informacje
Powierzchnia: 36 m2
2 pokoje
5 pięter w budynku
Rok budowy: 2026
Numer oferty: FE146502
Zalety
domofon
Media
kanalizacja
Kontakt
Falcon Estate
Monika Skotarczak
798601102

Podobne oferty

 Poznań

Stara Cegielnia - dostępne ostatnie mieszkania

Poznań

Inwestycja składa się z czterokondygnacyjnych budynków, wyposażonych w windy. Klienci mogą wybierać z szerokiej gamy mieszkań - od dwu po...

82 m2
4 pokoje
850 059 zł
10 367 zł/m2
 Poznań   Izaaka Newtona

Mieszkanie

Poznań, Izaaka Newtona

Rozkład mieszkania przedstawia załączony rysunek. Do mieszkania przynależy balkon oraz komórka w piwnicy. Podłogi w pokojach i przedpokoju wyłożone parkietem...

42 m2
2 pokoje
440 000 zł
10 476 zł/m2

Apartament w zabytkowej kamienicy Poznań

Poznań

Apartament w zabytkowej kamienicy, Centrum Poznania Zapraszam do poznania wyjątkowej inwestycji w sercu Poznania – luksusowych mieszkań w stanie deweloperskim....

69 m2
3 pokoje
1 243 435 zł
18 021 zł/m2