Nowe mieszkania z dala od hałasu

Mierzyn

Mieszkanie
68 m2
3 pokoje

739 368 zł

Treść ogłoszenia

Blue Real Estate z dumą przedstawia wyjątkową ofertę mieszkań położonych w malowniczym Mierzynie!

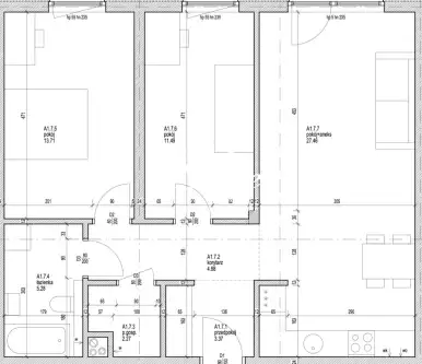
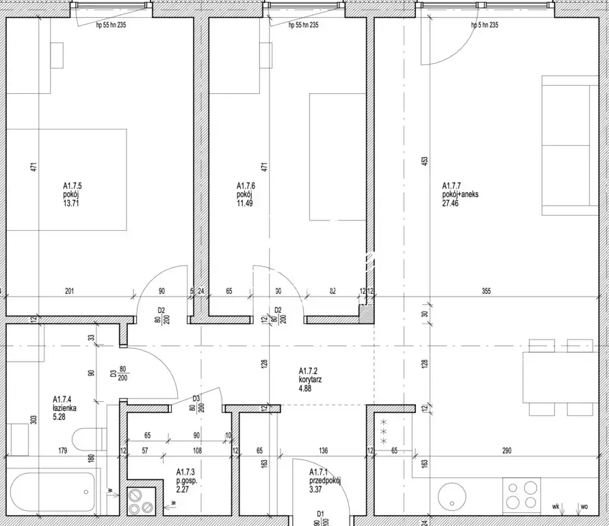
Prezentowane mieszkanie o powierzchni 68,46 m², które zapewni Państwu komfort i wygodę na najwyższym poziomie usytuowane jest na parterze
nowoczesnego apartamentowca i posiada ogród o powierzchni ok. 60m².

W skład nieruchomości wchodzi:
- Przestronny salon z aneksem kuchennym
- Słoneczna sypialnia, gdzie wypoczęty będziesz zaczynał każdy dzień.
- Gabinet lub dodatkowa sypialnia, które pozwolą Ci samemu zaprojektować swoje miejsce do życia
- Łazienka z wc
- Przedpokój z miejscem na dużą szafę na kurtki oraz inne części garderoby.
- Pomieszczenie gospodarcze dające możliwość ukrycia przechowywanych rzeczy.

Budynek został zaprojektowany z dbałością o każdy szczegół, łącząc nowoczesne rozwiązania z trwałymi materiałami.
Konstrukcja wykonana metodą mieszaną, obejmuje stropy i ławy z żelbetu oraz murowane ściany zewnętrzne i wewnętrzne z cegły typu silka.

Wykończenie i izolacja:
- Tynki gipsowe bez szpachlowania.
- Drzwi antywłamaniowe zapewniające bezpieczeństwo.
- Instalacja elektryczna wysokiego i niskiego napięcia.
- Okna PCV, trzyszybowe z nawiewnikami.

Ogrzewanie i wentylacja:
- Ogrzewanie i ciepła woda z sieci miejskiej SEC.
- System wentylacji grawitacyjnej w całym budynku.

Informacje dodatkowe:
- Przestronna klatka schodowa z cichobieżną windą.
- Elewacja budynku tynkowana i malowana.
- Możliwość zakupu miejsca postojowego w parkingu podziemnym pod budynkiem.

Teren wokół budynku:
- Pełen zieleni, obsadzony trawą, niską roślinnością okrywową, krzewami i drzewami, wyposażony w elementy małej architektury
oraz plac zabaw dla najmłodszych.
- Kilka ogólnodostępnych miejsc parkingowych.

Kupujący jest zwolniony z opłaty podatku PCC w wysokości 2%!

Blue Real Estate oferuje również szeroki zakres usług dodatkowych np.: współpraca z architektem, usługi remontowo-wykończeniowe,
usługi budowlane oraz instalacje fotowoltaiczne dzięki czemu stworzą Państwo wymarzoną przestrzeń, idealnie dopasowaną do swoich potrzeb.

Z Blue Real Estate Twoje wymarzone mieszkanie jest na wyciągnięcie ręki!



Blue Real Estate is proud to present a unique offer of apartments located in picturesque Mierzyn!

The presented apartment with an area of 68.46 m² , which will provide you with comfort and convenience at the highest level, is located on the ground floor.
modern apartment building and has a garden with an area of approx. 60 m².

The property includes:
- Spacious living room with kitchenette
- A sunny bedroom where you can start each day rested.
- A study or extra bedroom that will allow you to design your own living space
- Bathroom with toilet
- Hallway with space for a large wardrobe for jackets and other items of clothing.
- Utility room allowing for hiding stored items.

The building was designed with attention to every detail, combining modern solutions with durable materials.
The structure was constructed using a mixed method and includes reinforced concrete ceilings and footings, as well as external and internal walls made of Silka bricks.

Finishing and insulation:
- Gypsum plasters without spackling.
- Burglar-proof doors ensuring security.
- High and low voltage electrical installation.
- PVC windows, triple-glazed with air vents.

Heating and ventilation:
- Heating and hot water from the SEC municipal network.
- Gravity ventilation system throughout the building.

Additional information:
- Spacious staircase with a quiet elevator.
- The building facade is plastered and painted.
- Possibility to purchase a parking space in the underground parking lot under the building.

The area around the building:
- Full of greenery, planted with grass, low ground cover, shrubs and trees, equipped with small architectural elements
and a playground for the youngest.
- Several public parking spaces.

The buyer is exempt from paying the 2% PCC tax!

Blue Real Estate also offers a wide range of additional services, e.g.: cooperation with an architect, renovation and finishing services,
construction services and photovoltaic installations, thanks to which you will create your dream space, perfectly tailored to your needs.

With Blue Real Estate, your dream apartment is at your fingertips!

Treść niniejszego ogłoszenia nie stanowi oferty handlowej w rozumieniu Kodeksu Cywilnego. Treść ma charakter informacyjny i zalecamy ich osobistą weryfikację.
Bezpłatnie pomagamy w uzyskaniu kredytu.

Ogłoszenie wysłane z programu dla biur nieruchomości ASARI CRM (asaricrm.com)



Lokalizacja
Mierzyn
zachodniopomorskie
Informacje
Powierzchnia: 68 m2
3 pokoje
3 piętra w budynku
Rok budowy: 2025
Numer oferty: 405/14664/OMS
Garaż
miejsce parkingowe
Zalety
domofon
Okolica
fitness
centrum handlowe
plac zabaw
szkoła podstawowa
restauracja
kościół
Kuchnia
w aneksie
Przeznaczenie
mieszkalny
Kontakt
Blue Real Estate Bogacka & Gołębiowska
Luis Hermański
786999904

Podobne oferty

 Mierzyn

Słoneczna Kawalerka na Mierzynie

Mierzyn

Na sprzedaż słoneczna kawalerka o powierzchni 34 m2, znajdująca się w miejscowości Mierzyn. W skład nieruchomości wchodzi: - Pokój dzienny...

34 m2
1 pokój
359 000 zł
10 559 zł/m2
 Mierzyn

Dwupokojowe mieszkanie po remoncie na Mierzynie

Mierzyn

Na sprzedaż słoneczne dwupokojowe mieszkanie po remoncie o powierzchni 34 m2, znajdująca się w miejscowości Mierzyn. W skład nieruchomości wchodzi:...

34 m2
2 pokoje
375 000 zł
11 029 zł/m2
 Mierzyn

Nowe mieszkania na Gumieńcach

Mierzyn

Blue Real Estate ma przyjemność zaprezentować nową inwestycję znajdującą się w dzielnicy Gumieńce. Prezentowana nieruchomość o powierzchni 60,70m2., usytuowana na...

60 m2
3 pokoje
594 860 zł
9 914 zł/m2