duże ciche biuro metro Dworzec Gdański

Warszawa , Zygmunta Słomińskiego

Komercyjne
743 m2

13 000 000 zł

Treść ogłoszenia

Duży lokal biurowy gotowy do rozpoczęcia pracy.
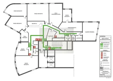
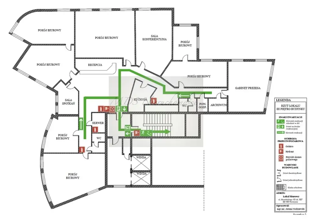
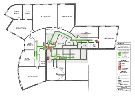
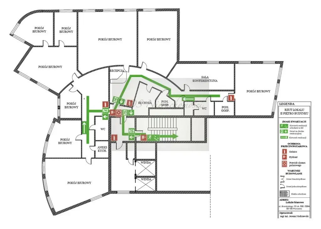
Powierzchnia łączna 743 m², składa sie z dwóch niezależnych lokali użytkowych o powierzchni: 366 m² na drugim piętrze budynku oraz 377 m² na trzecim pietrze budynku.

Na każdym piętrze znajduje sie tylko jeden lokal użytkowy, dwie windy i klatka schodowa, wejście bezpośrednio od ulicy Słomińskiego na wprost Arkadii, tylko dla lokali użytkowych.

Powierzchnia obu lokali podzielona została stałymi ścianami działowymi na duże pomieszczenia biurowe, możliwość modyfikacji istniejącego podziału odpowiednio do potrzeb.

Duże, otwierane okna skierowane na południowy wschód i zachód zapewniają dobre nasłonecznienie, ulica Słomińskiego nie generuje dużego hałasu, wiec w biurze jest cisza nawet przy otwartych oknach. Sufity podwieszane z oprawami oświetleniowymi.
Klimatyzacja indywidualnie sterowana, kontrola dostępu dla każdego z lokali odrębnie, - karty dostępu, alarm wewnętrzny, domofon.
Duże witryny od ulicy Słomińskiego pozwalają na widoczne umiejscowienie nazwy firmy.
Przy wejściu do budynku, które służy wyłącznie części biurowej znajduje sie recepcja/ochrona oraz domofon umożliwiający kontakt bezpośrednio z lokalem.

Lokalizacja doskonale skomunikowana - w pobliżu stacji metra Dworzec Gdański ( 650 metrów, 9 min spacerem), liczne linie autobusowe (przystanek przy budynku) oraz tramwajowe w Alei Jana Pawła II,
na wprost wejścia do budynku znajduje się centrum handlowe Arkadia z dużym parkingiem dostępnym w ciągu dnia oraz miejscami parkingowymi przed budynkiem, objętymi strefą płatnego parkowania.

Do lokalu przynależy 10 miejsc w garażu podziemnym, dodatkowo płatne 50.000 zł za każde z miejsc.

Osiedle Prezydenckie wybudowane w 2000 roku przez SBM Dembud i nadal przez nią administrowane.

Pełna własność z księgą wieczystą umożliwia zakup kredytowy.

Lokale można zakupi w całości lub odrębnie, 366 m² na II pietrze, oraz 377 m² na trzecim piętrze.

Dostępny także wynajem długoterminowy powierzchni: 734 m² lub 377 m² lub 366 m² lub 208 m².
Zapraszam na prezentację.

Large office space ready to start work.
The total area of 743 m² consists of two independent commercial premises with an area of: 366 m² on the second floor of the building and 377 m² on the third floor of the building.

On each floor there is only one commercial premises, two elevators and a staircase, entrance directly from Słomińskiego Street opposite Arkadia, only for commercial premises.

The area of both premises has been divided into large office spaces by permanent partition walls; the existing division can be modified to suit your needs.

Large, opening windows facing south-east and west provide good sunlight, Słomińskiego Street does not generate much noise, so the office is quiet even with open windows. Suspended ceilings with lighting fixtures.
Individually controlled air conditioning, access control for each apartment separately, - access cards, internal alarm, intercom.
Large shop windows on Słomińskiego Street allow for the visible placement of the company name.
At the entrance to the building, which serves exclusively the office part, there is a reception/security desk and an intercom enabling direct contact with the premises.

The location is perfectly connected - close to the Dworzec Gdański metro station (650 meters, 9 minutes walk), numerous bus lines (stop next to the building) and tram lines in Aleja Jana Pawła II,
Opposite the entrance to the building there is the Arkadia shopping centre with a large car park available during the day and parking spaces in front of the building, covered by the paid parking zone.

The premises include 10 spaces in the underground garage, additionally paid PLN 50,000 for each space.

The Presidential Estate was built in 2000 by SBM Dembud and is still administered by it.

Full ownership with land and mortgage register allows for credit purchase.

The premises can be purchased as a whole or separately, 366 m² on the second floor, and 377 m² on the third floor.

Also available for long-term rental of space: 734 m² or 377 m² or 366 m² or 208 m².
I invite you to the presentation.




Large office space ready to start work.
The total area of 743 m² consists of two independent commercial premises with an area of: 366 m² on the second floor of the building and 377 m² on the third floor of the building.

On each floor there is only one commercial premises, two elevators and a staircase, entrance directly from Słomińskiego Street opposite Arkadia, only for commercial premises.

The area of both premises has been divided into large office spaces by permanent partition walls; the existing division can be modified to suit your needs.

Large, opening windows facing south-east and west provide good sunlight, Słomińskiego Street does not generate much noise, so the office is quiet even with open windows. Suspended ceilings with lighting fixtures.
Individually controlled air conditioning, access control for each apartment separately, - access cards, internal alarm, intercom.
Large shop windows on Słomińskiego Street allow for the visible placement of the company name.
At the entrance to the building, which serves exclusively the office part, there is a reception/security desk and an intercom enabling direct contact with the premises.

The location is perfectly connected - close to the Dworzec Gdański metro station (650 meters, 9 minutes walk), numerous bus lines (stop next to the building) and tram lines in Aleja Jana Pawła II,
Opposite the entrance to the building there is the Arkadia shopping centre with a large car park available during the day and parking spaces in front of the building, covered by the paid parking zone.

The premises include 10 spaces in the underground garage, additionally paid PLN 50,000 for each space.

The Presidential Estate was built in 2000 by SBM Dembud and is still administered by it.

Full ownership with land and mortgage register allows for credit purchase.

The premises can be purchased as a whole or separately, 366 m² on the second floor, and 377 m² on the third floor.

Also available for long-term rental of space: 734 m² or 377 m² or 366 m² or 208 m².
I invite you to the presentation.


Ogłoszenie wysłane z programu dla biur nieruchomości ASARI CRM (asaricrm.com)



Lokalizacja
Warszawa
dzielnica śródmieście
mazowieckie
Informacje
Powierzchnia: 743 m2
15 pięter w budynku
Rok budowy: 2000
Numer oferty: 11/11430/OLS
Kontakt
MDS Nieruchomości
Małgorzata Szymańska
881155866

Podobne oferty

 Warszawa   Grzybowska 61

LUX KLIMATYZOWANE 86 m BIURO z GARAŻEM W PLATINIUM

Warszawa, Grzybowska 61

Gotowy do sprzedaży w ciągu 1-3 miesięcy od momentu podpisania umowy kupna - sprzedaży z potencjalnym nowym właścicielem (lub do...

86 m2
3 pokoje
2 000 000 zł
23 256 zł/m2
 Warszawa   Stoczniowców

NOWOCZESNY BUDYNEK KOMERCYJNY

Warszawa, Stoczniowców

Oferujemy na sprzedaż nowoczesny budynek komercyjny w stanie surowym zamkniętym, położony w jednej z najlepiej rozwijających się dzielnic Warszawy -...

340 m2
5 200 000 zł
15 294 zł/m2
 Warszawa

Prestiżowy lokal 180 m² – idealny na klinikę biur

Warszawa

Biuro Nieruchomości MDP Partners przedstawia:Prestiżowy lokal użytkowy - Śródmieście Północne, Warszawa - 180 m²Idealny pod biuro, usługi, handel, gastronomię, placówkę...

180 m2
5 389 000 zł
29 939 zł/m2