Dom energooszczędny z ogrodem - Juszkowo

Gdańsk

Dom
200 m2
5 pokoi

939 000 zł

Treść ogłoszenia

Dom energooszczędny w zabudowie szeregowej, narożny z ogródkiem i niepowtarzalnym widokiem.

LOKALIZACJA
Juszkowo, szybko rozbudowująca się okolica obok Pruszcza Gdańskiego.
Ul. Pogodna, boczna ul. Firmowej. lokalizacja poniżej
https://maps.app.goo.gl/FZgHnWf4Sz9hEHey6

Bardzo spokojna okolica, działka od strony ogródka graniczy z wolną przestrzenią -  dzięki temu można poczuć dużą prywatność.

NIERUCHOMOŚĆ
Dom solidnie zbudowany w technologii żelbetowej. Energooszczędny, okna aluminiowe 3 szybowe, w salonie HST, 
Dom w zabudowie szeregowej (segment środkowy) 200 m² pow. użytkowej z ogrodem 50 m².

TECHNOLOGIA BUDOWY
Dom posadowiony jest na płycie fundamentowej ocieplonej 20 cm xps.
Elewacja 20 cm styropian grafitowy lambda 0,33
Ocieplenie poddasza 25 cm wełny (możliwość wykonania dodatkowego natrysku pianą pur)
Ściany żelbetowe wykonane z betonu architektonicznego co zapewnia efekt dekoracyjny.
Strop i balkony monolit.
Okna przesuwne HST aluminiowe.
(wszystkie okna wyposażone w ciepłą ramke).
Na balkonie od strony drogi dojazdowej dodatkowo okno PSK
Budynek doposażony w standardzie premium +


Segment częściowo wykończony
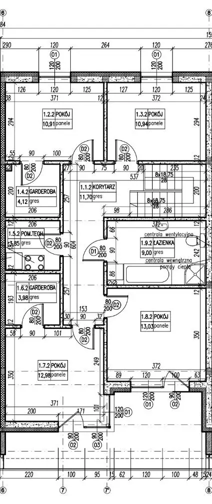
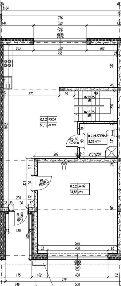
dom składa się na:

PARTER
1 pokój z aneksem kuchennym 50,13m²
2. łazienka         5,75m²
3. garaż             31,56m²

PIĘTRO
1. korytarz        11,70m²
2. pokój            10,94m²
3. pokój            10,91m²
4. garderoba     4,12m²
5. pom. techniczne 3,85m²
6. garderoba     3,98m²
7. pokój             12,98m²
8. pokój             13,03m²
9. łazienka         9,00m²

INSTALACJE 
Pompa ciepła (Panasonic/Mitsubishi) 7kW:
Ogrzewanie powietrzne
Klimatyzacja
Rekuperacja

Zainstalowana instalacja fotowoltaiczna 8 kW
Ogrzewanie nadmuchowe, klimatyzacją i rekuperacją sterowane z centrali (możliwość podłączenia aplikacji z poziomu smartfona)

Garaż na dwa stanowiska
Brama garażowa Wiśniowski z automatyką.

Cena 939.000 zł cena do negocjacji
zapraszam do kontaktu i na prezentację
Przemysław Daćko
533021120

Powyższa oferta ma charakter informacyjny i nie stanowi oferty handlowej w rozumieniu art. 66 §1 Kodeksu Cywilnego.
Lokalizacja
Gdańsk
dzielnica Juszkowo
pomorskie
Informacje
Powierzchnia: 200 m2
5 pokoje
2 piętra w budynku
Rok budowy: 2025
Numer oferty: 557851
Zalety
domofon
Ogrzewanie
pompa ciepła
Wyposażenie
balkon/taras
Kontakt
Trygon Nieruchomości
Przemysław Daćko
533021120

Podobne oferty

 Gdańsk

Działka rekreacyjna z domkiem Górki Zachodnie

Gdańsk

Na sprzedaż działka rekreacyjno-mieszkaniowa ROD o powierzchni 458,15 m2 z postawionym domkiem wielkości 45/50m2,  (parter z poddaszem), 3 pokojowym z...

45 m2
3 pokoje
185 000 zł
4 111 zł/m2
 Gdańsk   Lubczykowa

Dom szeregowy na zamkniętym osiedlu Karczemki

Gdańsk, Lubczykowa

Dom jednorodzinny w zabudowie szeregowej z ogródkiem I Kameralne, zamknięte osiedle domów PARK BRZOZOWY | Przestronne poddasze | Wykończony w...

117 m2
5 pokoi
1 849 000 zł
15 803 zł/m2
 Gdańsk

Dom energooszczędny z ogródkiem - Juszkowo

Gdańsk

Dom energooszczędny w zabudowie szeregowej z ogródkiem.Termin Oddanie II kw 2025  //   Bez podatku PCCLOKALIZACJABardzo spokojna okolica, działka od strony...

167 m2
5 pokoi
1 099 000 zł
6 581 zł/m2