Sprzedam dochodowy lokal w miejscowości Płośnica.

Płośnica , Dworcowa

Komercyjne
408 m2
1 pokój

450 000 zł

Treść ogłoszenia

Zachęcam do osobistego zapoznania się z tą wyjątkową ofertą.
Lokal położony jest w miejscowości Płośnica gmina wiejska w województwie warmińsko-mazurskim, w powiecie działdowskim.
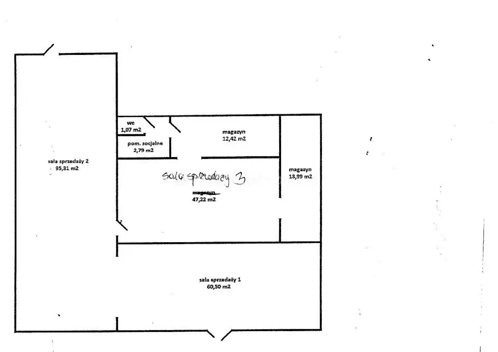
Lokalu usługowo -handlowy  sprzedawany jest za cenę 450 000 PLN,  o całkowitej pow. użytkowej ca. 408 m² co czyni go również doskonałą inwestycją. Obecnie w budynku znajduje się sklep Lewiatan. Bardzo dobry punkt w inwestycji. Dobrze widoczny lokal narożny z dwustronną ekspozycją. Powierzchnia działki 0,0701 ha. Atuty nieruchomości : Paczkomat na parkingu przy lokalu, doskonała lokalizacja z dużym ruchem pieszym i samochodowym,  parking dla klientów. Możliwość podziału i sprzedaży lokalu, część lokalu obecnie sklep Lewiatan przy ul. Dworcowej o pow. 233,3 m² w kwocie dostępnej 350 000 zł, oraz lokal   od ul. Kościelnej  o pow.175 m² w kwocie 100 000 zł. z możliwością ewentualnego  również wynajmu lokalu. Nie zwlekaj, skontaktuj się ze mną, aby umówić się na pokaz nieruchomości i przekonać się na własne oczy o jej wyjątkowości.

W lokalu zastosowano dwa rodzaje ogrzewania: na koks oraz gaz miejski, również panele fotowoltaiczne   co pozwala na wybór najbardziej efektywnego i ekonomicznego rozwiązania w zależności od potrzeb inwestora. Prosta, ale elegancka architektura budynku w połączeniu z funkcjonalnym rozkładem pomieszczeń sprawia, że jest to idealne miejsce dla inwestora szukającego bezpiecznej lokaty kapitału i stałego dochodu pasywnego.

Zapraszam do zapoznania się z wyjątkową ofertą sprzedaży przestronnego lokalu, którego konstrukcja oparta jest na pustaku, zapewniając nie tylko trwałość, ale również doskonałą izolację.
Podana cena zakupu jest ceną Brutto.


Czy wiesz, że możemy przygotować dla Ciebie prezentację on-line nieruchomości? Skontaktuj się z naszym Agentem i zapytaj o szczegóły.

Pomimo, iż Doradcy Metrohouse przykładają szczególną staranność do rzetelnego prezentowania informacji o nieruchomości, nie zawsze jest możliwa weryfikacja wszystkich danych przekazanych od osób trzecich. Niniejsza prezentacja oferty nie jest ofertą w rozumieniu Kodeksu Cywilnego i ma charakter wyłącznie informacyjny.
Lokalizacja
Płośnica
niewybrano
Informacje
Powierzchnia: 408 m2
1 pokoje
1 piętro w budynku
Rok budowy: 1975
Numer oferty: SLJEGI391
Kontakt
METROHOUSE
Katarzyna Fritzsche
+48699585479