Dom 232 7 m² -działka 1148 m² - DO NEGOCJACJI

Mikołów , Reta Śmiłowicka

Dom
232 m2
6 pokoi

890 000 zł

Treść ogłoszenia

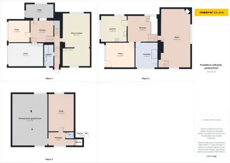
Na sprzedaż dom  wybudowany w latach 1980 o powierzchni użytkowej 232,7 m² na działce 1148 m².


Dom składa się z 4 kondygnacji. 


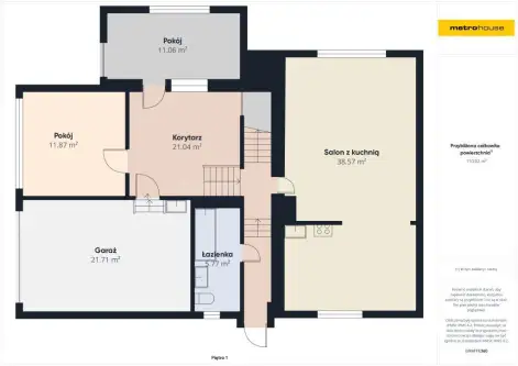
Parter: 
- duży, przestronny salon połączony z kuchnią, 
- 2 duże pokoje, 
- łazienka, 
- garaż jednostanowiskowy z kanałem oraz przedpokój. 


I piętro: 
- salon z kominkiem, 
- 2 pokoje, 
- łazienka oraz przedpokój. 


II Piętro/Poddasze: 
- przestronny pokój - na dzień dzisiejszy tzw. pokój rozrywki (stół bilardowy), 
- pomieszczenie gospodarcze(strych), 
- łazienka oraz półpiętro. 


Dom częściowo podpiwniczony.


Ogrzewanie - 3 letni piec na ekogroszek, ciepła woda - bojler elektryczny. 


Działka zadbana, zabudowana 2 garażami oraz domkiem rekreacyjnym. 


Dom w sąsiedztwie zabudowy jednorodzinnej, otoczony lasami oraz polami, z dala od jakichkolwiek dróg ruchliwych, co niewątpliwie zapewnia spokój i ciszę podczas codziennego wypoczynku. Wokół nieruchomości zielona okolica z czego słynie Reta(lasy, pola, tereny zielone, itp.).


Szybki dojazd do centrum Mikołowa, Tychów oraz Katowic. W pobliżu nieruchomości przystanek autobusowy.


Czy wiesz, że możemy przygotować dla Ciebie prezentację on-line nieruchomości? Skontaktuj się z naszym Agentem i zapytaj o szczegóły.

Pomimo, iż Doradcy Metrohouse przykładają szczególną staranność do rzetelnego prezentowania informacji o nieruchomości, nie zawsze jest możliwa weryfikacja wszystkich danych przekazanych od osób trzecich. Niniejsza prezentacja oferty nie jest ofertą w rozumieniu Kodeksu Cywilnego i ma charakter wyłącznie informacyjny.
Lokalizacja
Mikołów
śląskie
Informacje
Powierzchnia: 232 m2
6 pokoje
Rok budowy: 1980
Numer oferty: SDNOTO993
Kontakt
METROHOUSE
Damian Młynarczyk
+48699585373

Podobne oferty

 Mikołów   Leśna

Dom wolnostojący z garażem

Mikołów, Leśna

SPRZEDANENA SPRZEDAŻ Dom wolnostojący z garażem w bryle budynkuJeśli szukasz pięknego nowoczesnego domu gotowego do wprowadzenia ,ta oferta jest dla...

138 m2
5 pokoi
1 095 000 zł
7 935 zł/m2
 Mikołów   Jasna

Dom do zamieszkania z fotowoltaiką

Mikołów, Jasna

Zdjęcia mebli w ofercie są wizualizacją stworzoną przez sztuczną inteligencje.Dom sprzedawany z zabudową kuchenną i pojemną szafą w sypialni. KUPUJĄCY...

134 m2
3 pokoje
845 000 zł
6 306 zł/m2
 Mikołów   Podleska

Dom

Mikołów, Podleska

Oferuję do sprzedania nowy budynek mieszkalny jednorodzinny dwukondygnacyjny. Wysoki standard wykończenia. Rok budowy – 2023 Rozkład pomieszczeń Parter: - przedpokój...

98 m2
4 pokoje
1 350 000 zł
13 776 zł/m2